von Rudolf Gerer
zurück
Inhaltsverzeichnis
Grußworte
von Herbert Schamper, Schulamtsdirektor
von Dekan Josef Schneider
von Martin Esterl, Bürgermeister
Schulverhältnisse in Glonn um 1900
Ursprünge des Glonner Schulwesens
Ein Schulhaus für 120 Jahre
Lehrer in Glonn
Schüler und Schülerzahlen
Zur Person: Geistlicher Rat Joseph Späth
Bau der Mädchenschule
Ein Bauplatz wird gesucht
Die Finanzierung des Vorhabens
Ein Bauplan wird erstellt
Ein Schulhaus wird gebaut
Prüfung und Genehmigung des Baus
Eine Mädchenschule mit klösterlichen Lehrkräften wird errichtet
„Real- und Personalexigenz“ – Sicherung des Unterhalts von Schule und Lehrkräften
Die Schule in der Obhut der Klosterfrauen
Der Orden: Kloster Maria Stern in Augsburg
Die ersten Lehrkräfte
Die Zeit der Weimarer Republik
Die Zeit der nationalsozialistischen Diktatur
Schule und Nationalsozialismus
Abberufung der klösterlichen Lehrkräfte
Schulverhältnisse während des 2.Weltkrieges
Neuanfang 1945
Das Schulleben blüht wieder auf
Wem gehört die Mädchenschule?
Endlich: Die Gemeinde baut ein neues Schulhaus
Beide Schulen wachsen zusammen
Die Landschulreform
Vereinigung der beiden Schulen – 1. Erweiterungsbau
Abschied von den klösterlichen Lehrkräften
Erwerb der Klosterschule durch die Gemeinde – 2. Erweiterungsbau
Die Klosterschule bleibt ein Haus der Kultur
Kultur-und Vereinsleben in der Klosterschule
Kultur- und Verschönerungsverein – Heimatmuseum
Schulkinder beleben wieder das Haus
Lehrkräfte an der Mädchenschule
Oberinnen des Hauses Maria Stern
Oberin M. Electa Schilling
Oberin M.Bernardine Ausberger
Chronologie der Klosterschule (Haus „Maria Stern“)
Erinnerungen ehemaliger Schülerinnen und Schüler
Rosa Koop
Michael Singer (ehem.Bürgermeister)
Brief aus der Schweiz
Ergänzende Beiträge von Hans Obermair
Die Familie Wenig
Das Grundstück zur Klosterschule
Geleitwort
Durch die Beschäftigung mit der Vergangenheit des alten Mädchenschulhauses in Glonn wird auch ein Teil der eigenen Geschichte lebendig. Ein Stück der erlebten Zeitgeschichte wird in Erinnerung gerufen. Für viele Glonner, insbesondere für viele Frauen, die diese Schrift in die Hand nehmen und die Geschichte des ehemaligen Mädchenschulhauses Revue passieren lassen, werden sicher viele Erinnerungen an die eigene Schulzeit in diesem Gebäude, an Kindheit und Jugend, an die Kindheit der Eltern und Großeltern und an noch heute nachwirkende Veränderungen der engeren Heimat Gestalt annehmen. Insbesondere auch die den Text veranschaulichenden photographischen Darstellungen regen zum Suchen nach Personen und nach Gebäuden an, die zum Teil heute schon in der Erinnerung verblasst sind und die nun wieder zum Leben erweckt werden können.
Auch die Schule allgemein hat sich in den letzten einhundert Jahren deutlich verändert, räumlich, organisatorisch und inhaltlich. Die kleinen Schuleinheiten der oft ein- und zweiklassigen. konfessionell geprägten Dorfschulen mit den jahrgangsübergreifenden Klassen und einer Lehrkraft für alle Fächer wurden aufgelöst. Größere Schulen mit überkonfessionell christlichem Charakter, mit Jahrgangsklassen und mit Lehrern als Fachspezialisten entstanden und können den gestiegenen Anforderungen unserer Wissensgesellschaft besser gerecht werden, im Zusammenhang damit ging auch die Zahl der von der katholischen Kirche betriebenen Schulen zurück. Aber auch der Rückgang des (pädagogisch ausgebildeten) Ordenspersonals war mit Grund dafür, dass von kirchlichen Kräften geprägte Schulen schließen mussten. ist Entwicklung, ist Veränderung – mag man sie mit Wehmut ob des Vergangenen betrachten oder im, dass Leben Ver-, dass nichts bleibt wie es momentan ist.
Trotz der Veränderungen von Schule sind ihre Aufgaben im Wesen nach über all die Jahrzehnte hinweg jedoch dieselben geblieben: Junge Menschen in Zusammenarbeit mit dem Elternhaus auf das eigenständige Leben in und für die Gesellschaft vorzubereiten. die Entwicklung der eigenen Persönlichkeit anzubahnen, diese zu fördern und die eigene Weiterentwicklung als ständige Aufgabe erkennen zu lassen.
Die Erziehungs- und Bildungsarbeit der Schule ist von den Grundvoraussetzungen her schwieriger geworden, mehr und mehr auch im ländlichen Bereich. Die Zahl der Kinder, die sich im außerschulischen Umfeld großen Problemen gegenübersehen, die diesen gegenüber oft auf sich alleine gestellt sind und die daher Probleme bereiten hat deutlich zugenommen. Die Akzeptanz allgemein verbindlicher moralischer Werte als Grundlage von Erziehung schwindet. Der Einfluss des Konsum- und Genussstrebens, der von der Werbung vorgespielten Ideale, der vom Fernsehen tagtäglich angebotenen und vom Kind nicht zu reflektierenden Verhaltensmuster, ein zunehmender Zusammenbruch von intakten Familienbanden und damit verbunden die an Kinder weitergegebenen zwischenmenschlichen Probleme Erwachsener haben das Leben unserer jungen Menschen erschwert. Gerade
die schrecklichen Ereignisse der jüngsten Zeit machen uns dies schmerzlich bewusst. Es wird nach Verantwortlichen gesucht – dabei wird von einem abgelenkt: wir alle sind mit verantwortlich für den Werteverfall, für die Hervorhebung materieller Werte, für den Rückgang des Verantwortungsbewusstseins und der Verantwortungsübernahme für unsere Kinder und Jugendlichen durch die Gesellschaft. Eines muss wieder klar werden: wir alle müssen unsere gemeinsame Verantwortung für unsere Kinder und Jugendlichen wieder bejahen, wir müssen den allgemeinen Erziehungsauftrag für die rechte Entwicklung unserer Jugend wieder bewusst annehmen und müssen versuchen, diesen zu realisieren. Dabei spielt die Familie eine tragende Rolle.
Die hier dargestellte Geschichte des Alten Mädchenschulhauses in Glonn kann Anlass und Hilfe sein zum Innehalten, zum Nachdenken über das was war und wie es wohl mit uns weitergehen wird und damit zum bewussteren Leben in der Gegenwart. Dem Verfasser dieser Schrift, Herrn Rektor a.D. Gerer, sei herzlich gedankt für viel mühevolles Suchen und Zusammentragen und für ein lebendiges Darbieten eines bedeutenden Teils der Vergangenheit vieler Bewohnerinnen und Bewohner Glonns.
Ebersberg im Juni 2002
Herbert Schamper
Schulamtsdirektor
Leiter des Staatlichen Schulamts im Landkreis Ebersberg zurück
Grußwort zum 100-jährigen Bestehen der „Klosterschule“
„Die Weisheit hat sich ein Haus gebaut“. Dieses Wort aus dem Alten Testament scheint den Initiator für den Schulhausbau bewogen zu haben, damals 1899.
Von Natur aus ist der Mensch auf Wissen und Erkenntnis, also auf Weisheit angelegt. Um dies vermitteln zu können, braucht man Häuser, Schulen. Schulen sind Stätten der Wissensvermittlung, vor allem aber auch Orte der Erziehung.
Charakterliche Formung nach dem christlichen Menschenbild war die Jahrhunderte hindurch eine wesentliche Aufgabe der katholischen Kirche. Pfarrer Joseph Späth hat sich mit dem Bau der Mädchenschule in diese segensreiche Tradition gestellt. Mit großem persönlichem Engagement, auch unter Beisteuerung persönlicher finanzieller Mittel, hat er für damalige Zeiten ein stattliches Schulhaus gebaut – zum Wohle der Kinder. Respekt vor soviel Einsatz für die Erziehung der Kinder !
Die Kirche ist diesem Auftrag immer treu geblieben, den Kindern und Jugendlichen die bestmögliche Ausbildung mit auf den Lebensweg zu geben.
Gegenwärtig ist beispielsweise unsere Erzdiözese Trägerin von 17 Schulen: 11 Realschulen, 5 Gymnasien und Volksschule. 7200 Schüler und Schülerinnen finden hier täglich Lern- und Lebensraum (Internate). Die Nachfrage nach christlicher Erziehung ist unvermindert hoch und sogar im Steigen begriffen.
Ähnliches gilt auch für kirchliche Kindergärten.
Wenngleich heute das Mädchenschulhaus nicht mehr den ursprünglichen Aufgaben dient, so bleibt dieses Haus für die Glonner eine anregende Mahnung, für die Erziehung der Kinder alles nur Erdenkliche zu tun.
Glonn im Juli 2002, Josef Schneider Dekan .
Liebe Glonnerinnen und Glonner, liebe ehemalige Schülerinnen 
der markante gelb-weiße Bau, zwei Steinwürfe südlich des Marktplatzes, hat der Straße, an der er liegt, ihren Namen gegeben: die Klosterschule am Klosterweg. Sieben Jahrzehnte lang waren in diesem Haus ein Kloster der Sternschwestern und eine Mädchenschule untergebracht, die von den Ordensfrauen geführt wurde. Heute ist die Klosterschule ein Haus für die Vereine, für Senioren und Kinder und für die Kunst und Kultur geworden.
Rotes Kreuz und Wasserwacht haben hier ein Zuhause gefunden, das Büro unseres Jugendsozialarbeiters und der Hort unter Leitung des KiJuFa sind ebenso in diesem einhundertjährigen Gemäuer untergebracht wie eine Schulklasse; die Altenstube öffnet wöchentlich einmal die Pforten, Kultur- und Verschönerungsverein sowie die Fotofreunde nutzen das Haus mit Ausstellungen in den ehemaligen Sakralräumen des Klosters und mit einem Heimatmuseum im Dachgeschoss. Viel Geld wurde in den vergangenen Jahren in die Renovierung und Modernisierung der Räume gesteckt.
Es ist auch Dank zu sagen an meine Vorgänger im Amt. Martin Sigl und Michael Singer. Ihnen war dieser Bau immer wichtig, um Kunst, Kultur und Geschichte unseres Ortes präsentieren zu können.
Wir fühlen uns in ihrer Pflicht, wenn wir dafür Sorge tragen, dass dieses Haus nicht nur seiner Zweckbestimmung erhalten bleibt, sondern immer wieder mit neuem Leben erfüllt wird. Ein besonderer Dank gilt an dieser Stelle dem Hausmeisterehepaar Hellinger das die dort beheimateten Gruppen jederzeit tatkräftig unterstützt.
Ich heiße alle Glonner Bürgerinnen und Bürger herzlich willkommen, wenn wir im Oktober mit einem bunten Strauß an Veranstaltungen das Hundertjährige der Klosterschule begehen. Kommen Sie! Es ist für jeden was dabei!
Martin Esterl Bürgermeister .
Vorwort
Beobachtet man den Verkehr auf der innerörtlichen Hauptverkehrsachse in Glonn, der Prof.-Lebsche und der Münchner Straße, in der Zeit vor 8 Uhr morgens, so kann man feststellen, dass um diese Zeit mehrere Busse in Höhe der Pfarrkirche in eine nach Süden abzweigende Straße abbiegen. Ein deutliches Schild „Schulbus“ zeigt ihr Ziel an. Gleichzeitig kommen aus verschiedenen Richtungen Buben und Mädchen den Schulranzen auf dem Rücken oder die Schultasche inder Hand, die kleineren z.T. noch in Begleitung ihrer Väter oder Mütter, und streben, mit freudiger Erwartung oder auch eher gemischten Gefühlen demselben Ziel zu: der Volksschule Glonn – Grund- und Hauptschule, wie es ein Wegweiser am Beginn der Straße nennt.
Das Straßenschild selbst freilich lässt für den Ortsunkundigen einige Fragen offen: „Klosterweg“? Sieht dieser „Weg“ nicht eher wie eine ordentlich ausgebaute Erschließungsstraße aus?
Die Hauptzufahrt zur Schule eben. – Und wo findet man hier ein „Kloster“? Nichts deutet auf ein Kloster im überkommenen Sinn hin.
Einheimische mittleren und gesetzteren Alters freilich können den Fragenden schnell aufklären. Sie weisen auf ein schon von weitem ins Blickfeld tretendes, charakteristisches Gebäude am östlichen Straßenrand etwa gegenüber der Volksschule gelegen, hin: die ehemalige „Klosterschule“.
Eine Klosterschule beherbergt das Gebäude allerdings nicht mehr. Da es sich aber in diesen Monaten zum hundertsten Male fährt, dass dieses Haus gebaut und die Schule errichtet wurde, so ist es wert, verschiedenen Fragen nachzugehen, nämlich:
Wie kam es zur Errichtung einer Klosterschule in einem Ort ohne Klostertradition?
Wer waren die Personen, von denen die wirkenden Impulse ausgingen?
Wie hat sich die Existenz und die Arbeit der Klosterschule auf das örtliche Leben ausgewirkt?
Aus welchen Gründen musste schließlich die Klosterschule ihre „Tore schließen“?
Welche Aufgaben kann das Haus „Klosterschule“ heute in der Gemeinde erfüllen?
Viele von der älteren Generation Glonner Frauen und auch Männer kennen die Schule und damit zum Teil auch die Antworten auf die genannten Fragen aus eigenem Erleben. Aber auch für die Jüngeren kann es von Interesse sein, zu wissen, wie Schule vor 100 oder vor 50 Jahren in der konkreten örtlichen Wirklichkeit ablief.
Glonn, im Oktober 2002
Rudolf Gerer .
Schulverhältnisse in Glonn um 1900
Ursprünge des Glonner Schulwesens
Als man um die Jahrhundertwende in Glonn daran ging, ein neues Schulhaus für eine klösterliche Mädchenschule zu bauen, blickte der Ort bereits auf eine Schulgeschichte zurück, die sich über mehr als 3 Jahrhunderte erstreckte.
Waren es im Mittelalter vorwiegend die Klöster, die sich um Schule und Bildung annahmen, so erkannten in der Zeit der Reformation und Gegenreformation auch die Fürsten in der Förderung des Schulwesens eine Aufgabe der Landesobrigkeiten. Ihre „Geistlichen Räte“ („Minister“ für kirchliche und kulturelle Angelegenheiten) arbeiteten Schulordnungen aus, die sich mit der Aufnahme geeigneter „Schulmeister“, der Verwendung von Büchern, der religiös-sittlichen Erziehung u.a. befassten: So unser Herzog Albrecht V. die „Schulordnung der Fürstenthumb Obern und Nidern Baiernlands“, die älteste staatliche Urkunde für „Deutsche Schulen“ im alten Herzogtum Bayern. Schon 1558 waren Visitationen angeordnet worden, um einen Überblick über das Schulwesen zu erhalten. Dieser Anordnung verdanken wir die erstmalige Erwähnung einer Schule in Glonn. Denn bei der ersten Visitation 1560 wurde in Glonn zwar kein Lehrer festgestellt: doch wird versichert, dass es im Ort schon oft einen Lehrer gegeben habe, allerdings meist nicht sehr lang.
Der erste namentlich bekannte Lehrer ist im Sterbebuch der Pfarrei 1642 eingetragen: Balthasar Kazmair, „Cantor et Ludimagister“ (Organist und Lehrer). Ungefähr in die gleiche Zeit fällt auch die Errichtung eines ersten Schulhauses in Glonn. Wir kennen keine genauen Einzelheiten, es gibt kein Bild, keinen Plan, keine eingehende Beschreibung. Dass Glonn aber, gemessen an der damaligen Größe des Ortes, schon sehr früh ein Schulhaus hatte, geht daraus hervor, dass es aus dem Baumaterial von im „Schwedenkrieg“ abgebrannten Häusern erbaut wurde. Der Dreißigjährige Krieg dauerte bis 1648. Die Schweden – wohl ein marodierender Haufen des schwedischen Heeres – kamen 1632 nach Glonn und brannten das Dorf fast vollständig nieder. 1636 ist dann „der große Sterb“ gewesen, Glonn wurde von der Pest nicht verschont. Die Häuser in Schutt und Asche, die Bewohner – vor allem Frauen und Kinder – aus Angst in entlegene Verstecke geflüchtet, lag wohl Glonn – wie viele andere Dörfer, Märkte und auch Städte – zeitweise verödet. Es war die Zeit, in der Johann Schmalzmair, 1634 – 44 Pfarrer in Glonn, schrieb:
„Deß Clagens werdt khein endt
Wan Gott den Krieg nit wendt.
Der ander Leith Getrost soll haben,
Thuet ietzt am maisten selbst verzagen.“
Als die größte Kriegsgefahr vorbei war, gingen die übriggebliebenen Bewohner daran, ihre Häuser wieder aufzubauen. Es ist wohl der Initiative von Johann Schmalzmair oder seines Bruders Melchior, der nach ihm Pfarrer in Glonn war, zu verdanken, dass in all der Not auch ein Schulhaus gebaut wurde. Die genaue Jahreszahl ist nicht bekannt. Über den Standort der Schule schreibt Dunkes, um die Mitte des 19. Jahrhunderts Lehrer in Glonn, dass sie „dem jetzigen Krämer zum Steinberger vis a vis“ stand, also zwischen dem Kaufhaus und der damals sicher schmäleren Straße (heute Prof.- Lebsche-Str.). Diese Lage lässt sich auch aus einer Flurkarte aus dem Jahr 1812 entnehmen.
Als sich in der anschließenden Friedenszeit die wirtschaftliche Lage wieder besserte und sich langsam auch das Bild des Ortes in seiner Bauweise wandelte, nahm sich das Schulhaus darin, wohl aus einer einzigen „Schulstube“ bestehend, die zugleich die Wohnstube des Lehrers war, immer unansehnlicher aus. So spricht 1801 Distriktschulinspektor Pfarrer Schranner aus Aying von der „Glonner Schulhütte, welche für einen Schmierbrenner zu schlecht wäre.“ Und Dunkes nennt sie eine „elende Hütte“. Die Frage wurde immer drängender, wie lange diese inzwischen mehr als 150 Jahre alte Hütte noch als Schule dienen könne.
Einen wichtigen Einschnitt in der bayerischen Schulgeschichte brachte das Jahr 1802 mit der Einführung der allgemeinen Schulpflicht. Sie brachte auch in Glonn eine starke Zunahme der Schülerzahl. Bisher waren meist weniger als die Hälfte der Kinder zum Unterricht erschienen, davon nur ein Teil regelmäßig. Der Schulbesuch schwankte nach Jahreszeiten. Das zu zahlende Schulgeld (Kinder aus ärmeren Familien waren befreit) und die Arbeit am elterlichen Hof beeinflussten die Zahl der Kinder, die zur Schule kamen. – Nun. 1803, wurden etwa 120 schulpflichtige Kinder aus der Pfarrgemeinde Glonn und den damals zur Pfarrei Egmating gehörendenOrten Schlacht, Reinstorf. Kreuz, Münster festgestellt. Das Schulhaus aus der Zeit des Dreißigjährigen Krieges konnte den neuen
Anforderungen nicht mehr genügen. Nach langwierigen Überlegungen über eine eventuelle Erweiterung des alten Hauses, über einen neuen Standort, über die Frage der Finanzierung wurde endlich 1811 mit dem Bau begonnen. 1813 stand das neue Schulhaus, nun an der Straßenkreuzung zwischen der (heutigen) Wolfgang- Wagner-Sraße und der Prof.-Lebsche-Sraße. im Anschluss an ein bereits bestehendes ehemaliges Kooperatorenhaus auf Pfarrgrund erbaut. Endlich hatten die Glonner Schulkinder – sicher noch recht eng beieinander – ein, wie in den Bauauflagen gefordert, „gefälliges und einladendes“ Schulhaus, in dem auch Platz war für die 1803 eingeführte „Feiertagsschule“ (Vorläufer der Berufsschule) und eine „Industrieschule“ (Handarbeitsraum) im Dachgeschoß.
Das Schulhaus von 1831 neben dem alten Steinbergerhaus zurück
Ein Schulhaus für 120 Jahre
Eine Schulstube von 33 x 20 Schuh (ca. 11 x 6.5 m) für 120 Kinder und mehr – es war abzusehen, dass das „Schulhäusl“ nicht auf allzu lange Dauer ausreichen würde. Bereits 1837 ging die seit 1808 bestehende politische Gemeinde daran, ein neues Schulhaus zu bauen. Vom Maurermeister Sarreiter aus Ebersberg wurden die Kosten auf 8000 fl (Gulden) berechnet. Die königliche Regierung (heute Bezirksregierung) von Oberbayern genehmigte den Bauplan. Doch offenbar kannten die Menschen vor Ort die schulische Lage und ihre Notwendigkeiten besser, denn der Bauausschuss, „bestehend aus dem Wirthe Joseph Wagner, Furtmüller Joseph Wiesböck und Färber Donatus Daxenberger erlaubten sich sogar – die Form des Bauplanes beibehaltend – das Schulhaus der Länge und Breite nach zu vergrößern “(Dunkes). Und der Chronist fügt hinzu: „Und sie hatten vollkommen recht“ und weist auf die weiter gestiegene Kinderzahl hin. 1838 war das Haus fertiggestellt, „geräumig und schön“, zu dem „von vielen Gemeindegliedern kein Opfer gescheut“ wurde, um es „für alle Zeiten dauerhaft zu bauen“. Der ganze Stolz über ein gelungenes Gemeinschaftswerk, zu dem wohl viele durch „Hand- und Spanndienste“ beigetragen hatten, klingt in diesen Sätzen des Chronisten.
Im oberen Stockwerk hatte das zweistöckige, ganz aus Stein erbaute Haus zwei geräumige Schulzimmer von je 33 x 28 Schuh (ca. 11 x 9 m), im Erdgeschoß eine bequeme Wohnung für den Lehrer und seinen Gehilfen.
Das neue Schulhaus stand südlich der Pfarrkirche an der Stelle, an der heute die Kreissparkasse ihr Haus hat. Das Grundstück hatte die Pfarrpfründe zur Verfügung gestellt. Das Haus sollte für 120 Jahre der Schule als Heimstatt dienen. .
Lehrer in Glonn
Mit der Errichtung dieses Schulhauses, der Kirche vis a vis, konnten nun die Schüler in zwei Abteilungen unterrichtet werden. Dazu war es notwendig, dass ein zweiter Lehrer verpflichtet wurde. Meist blieben diese als „Schulgehilfe“, später als „Hilfslehrer“ bezeichneten Lehrkräfte nur für wenige Jahre an der Schule, war es doch ihr Ziel, möglichst bald eine feste Anstellung als Lehrer zu erhalten.
Als Lehrer wirkten in der 2. Hälfte des 19. Jahrhunderts an der Glonner Schule:
Johann B. Dunkes 1840 – 1868
Theodor Kolmsberger 1868 – 1876
Otto Ebner 1876-1877
Joseph Hecht 1877-1884
Alexius Strauß 1884-1904
Nicht nur wegen seiner langen Tätigkeit nimmt Dunkes in der Reihe eine Sonderstellung ein. Geboren in Freising, wirkte er zunächst in Berchtesgaden, bevor er 1840 nach Glonn kam. Trotz anfänglicher Schwierigkeiten erwarb er sich bald Anerkennung, auch bei seinen Vorgesetzten.
Der Distriktschulinspektor bewertete seine Leistungen mit hervorragend und auch der damalige Glonner Pfarrer Vordermair war voll des Lobes. Seine Wertschätzung in der Bevölkerung ist auch daraus zu ersehen, dass er 1848 bei der Bildung der Frankfurter Nationalversammlung, des ersten frei gewählten Parlaments in Deutschland, eine Rolle spielte, ob als Abgeordneter oder als Wahlmann (in einigen Ländern, so auch in Bayern, wurden die Abgeordneten indirekt durch vorher nominierte „Wahlmänner“ bestimmt) ist freilich offen. – Dunkes ist für Glonn aber noch aus einem anderen Grund von Bedeutung: Er schrieb einen „Lagebericht“ über Glonn, über die umliegenden Dörfer und Weiler in der Zeit um die Mitte des 19. Jahrhunderts. Darin beschreibt er vieles über die Landschaft, über Gewerbe und Wirtschaft, über Sitten und Gebräuche seiner Glonner Zeit.
Um die Jahrhundertwende wirkte Alexius Strauß in Glonn. 1844 geboren, stammte er wie Dunkes aus Freising. Noch im Ruhestand versah er bis 1919 den Gemeindeschreiberdienst, wurde 1929 zum Glonner Ehrenbürger ernannt und starb 1936 im gesegneten Alter von 92 Jahren. Pfarrer Niedermair schreibt in seiner Chronik: „Er war uns allen ein lieber Lehrer, war eifrig im Organistendienst, ging fleißig auf die Jagd und war ein recht ruhiger und bescheidener Mann.“
Schüler und Schülerzahlen
Gegen Ende des Jahrhunderts wurde es in dem einst als „geräumig und schön“ gepriesenen Schulhaus aus dem Jahre 1838 eng. Die Schülerzahlen waren im Laufe der Jahrzehnte weiter gestiegen: Glonn stand um 1890 unter den Landkreisgemeinden nach der Bevölkerungszahl an 4. Stelle (nach Ebersberg, Grafing und Markt Schwaben).
1883 listete die „Lokalschulinspektion“ für die vorausgegangenen Schuljahre folgende Entwicklung auf:
1879/80 180 Werktagsschüler
1880/81 196 Werktagsschüler
1881/82 197 Werktagsschüler
1882/83 197 Werktagsschüler
derzeit 205 Werktagsschüler
Auf 2 Klassen bzw. Lehrer aufgeteilt, war das ein kaum noch ertragbarer Zustand.
In der am 3.3.1898 aufgestellten „Frequenz der Volksschule Glonn“ (Entwicklung der Schülerzahlen) bewegen sich die Zahlen von 1892 bis 1898 zwischen 194 und 204. Für die kommenden Jahre wird vorausberechnet:
1889 206
1899/1900 206
1900/1901 212
1901/1902 214
Am 6.5.1902 meldet die „Kgl. Lokalschulinspektion Glonn“ an das Bezirksamt für die vorausgegangenen Jahre:
1898/1899 98 Knaben 110 Mädchen Gesamt: 208
1899/1900 108 Knaben 99 Mädchen Gesamt: 207
1900/1901 124 Knaben 107 Mädchen Gesamt: 231
1901/1902 122 Knaben 119 Mädchen Gesamt: 241
Die tatsächliche Entwicklung hatte also die vorausberechneten Zahlen deutlich übertroffen. Und für die nachfolgenden Jahre wurde ein weiterer Anstieg auf 265 Schüler (1907) errechnet. Es herrschte eine sich von Jahr zu Jahr verschlimmernde Schulraumnot. In dieser Situation ergriff ein Mann die Initiative zur Notwende: Geistlicher Rat Josef Späth, Pfarrer von Glonn. .
Zur Person: Geistl. Rat Joseph Späth
Joseph Späth wurde am 23. Dezember 1825 als Sohn eines Bäckermeisters in München geboren.Während seines Studiums war er u.a.auch Schüler des Publizisten und Politikers Johann Joseph von Görres (1776 – 1848), der seit 1827 in München lehrte. 1837 war Görres maß-geblich am „Kölner Kirchenstreit“ beteiligt, bei dem es um die Rechte der Kirche im (preußischen) Staat ging, der die Gebiete am Rhein wenige Jahrzehnte vorher erworben hatte.
Am 24 .Juni 1850 wurde Späth zum Priester geweiht. Als Kaplan wirkte er in Moosen (bei Taufkirchen/Vils), Altomünster, Schnaitsee. Reichenhall – St. Zeno, Forstenried und Holzen. Am 24.12.1869 wurde er zum „vicarius parochiae Glonn“ berufen und schließlich am 9.2.1970 zum Pfarrer bestellt. Von 1892 – 1908 war er Dekan und wurde zum Geistlichen Rat ernannt.
Schon in seinen ersten Glonner Jahren sorgte er sich um die Sanierung des Kirchturms und die Erneuerung der Kirche. Die Restauration der Kirche begann 1893: Erneuerung des Daches, Stückarbeiten, Deckengemälde. Hochaltar u.v.a. gaben der Kirche ein neues, freundliches Gesicht. Niedermair schreibt: „Man wird in der Umgebung kaum eine Kirche finden, die die Glonner Kirche an Schönheit und künstlerischer Pracht übertreffen würde.“
Neben den Aufgaben als Seelsorger war Pfarrer Späth auch für die Schule mitverantwortlich. Bis zum Ende des 1. Weltkrieges gab es in Bayern und anderen Ländern die „geistliche Schulaufsicht“.
Der Pfarrer am Ort hatte das Amt des „Lokalschulinspektors“ und damit die Verantwortung für einen geregelten Schulbetrieb. Darüber gab es den „Distriktschulinspektor“. Für den südwestlichen Bereich des Bezirksamts Ebersberg war das bis 19-LU J. Lochner. danach Paul Scherrer, Pfarrer in Zorneding. Der Distriktschulinspektor führte in dei Regel die jährlichen Prüfungen zum Schulabschluss durch, bei denen auch Vertreter der Schulsprengelverwaltung (Bürgermeister und einige Gemeinderäte) anwesend waren.
ln die Zeit von 1897 bis 1902 fielen die Bemühungen von Pfarrer Späth, die Schulraumnot in Glonn zu beheben. Am Ende stand ein neues Schulhaus, die Mädchenschule, ein stattliches Haus, das in den ersten Jahrzehnten des 20. Jahrhunderts „das schönste und gepflegteste Schulhaus im ganzen Bezirksamt Ebersberg“ (Koller) war.
40 Jahre hat Geistl. Rat Joseph Späth „in Glonn segensreich gewirkt, und sein Andenken wird bei allen, denen er so lange Zeit ein eifriger Seelsorger war, unsterblich sein“ (Niedermair). Am 9. Januar 1910 starb er; schon am 7.10.1877 hatte ihn die Gemeinde Glonn zu ihrem Ehrenbürger ernannt.
In einer Ergänzung zur Pfarrchronik heißt es:
„Ein guter Pfarrer ist ein Gottessegen. Als in der Winterkälte des 9. Jan. 1910 das Sterbeglöckchen den Tod des Hochw. Herrn Pfarrers Joseph Späth der erschrockenen Gemeinde kündete, wussten alle: Mit ihm ging ein Teil aller Glonner Tradition verloren. Wir haben einen Vater verloren. 40 Jahre hindurch trug
sein sorgend Herz mit seinen Pfarrkindern Freud und Leid. Er kannte jeden einzelnen, kargte nicht mit seinem Rat, sprang helfend ein, wo er konnte, seine frohen Augen leuchteten, wenn er bei den Kindern war, er fand das rechte Wort am Krankenbett, war menschlich fühlend und erbarmend, wo Seelen elend und Seelennot aus tiefsten Abgründen in Verzweiflung schrie.
Er war der Nimmermüde, war Trost und Halt. Er war Bruder Immerfroh, dessen Nähe Fröhlichkeit verströmte.“ .
Bau der Mädchenschule
Am 14. November 1883 schreibt Pfarrer Späth: „Durch Gemeinde-Visitations-Bescheid des kgl. Bezirksamtes Ebersberg ist wegen Schüler- Zuwachs zur Schule Glonn die Errichtung einer 3. Lehrstelle in Aussicht gestellt worden.“
Um die Voraussetzungen für die Verwirklichung dieser dringend notwendigen Lehrstelle zu schaffen, sei eine „Erweiterung des gegenwärtigen Schulhauses“ zu prüfen, um Räumlichkeiten für ein „Schullokal“ und die Lehrerwohnung zu schaffen.
Nun waren jedoch die finanziellen Möglichkeiten der ländlichen Gemeinden damals noch sehr begrenzt; sie verfügten nur über geringfügige regelmäßige Einkünfte. Kleinere Maßnahmen, wie Straßenausbesserungen. wurden meist durch freiwillige Hand- und Spanndienste bewältigt. Größere Vorhaben dagegen konnten in der Regel nur durch besondere Umlagen finanziert werden. Die Bereitwilligkeit, solche Umlagen zu tragen, hielt sich wohl in Grenzen.
In einer Schulsprengelversammlung stellte Späth daher die Frage, ob es nicht ratsam wäre, Knaben- und Mädchenschule zu trennen und die Mädchenschule „mit allerhöchster Genehmigung“ einem weiblichen Orden zu übergeben. Zwei Drittel der Kosten für den Bau sollten durch freiwillige Beiträge aufgebracht werden, das eine Drittel würde er selbst aufbringen. In der Versammlung wurde dieser Vorschlag mit großem Beifall aufgenommen.
Doch es sollte noch Jahre dauern, bis an eine Verwirklichung des Vorhabens gedacht werden konnte. In Glonn waren inzwischen andere Pläne auf getaucht. Eine Bahnverbindung von Grafing über Glonn nach Bruckmühl bzw. Aibling wurde diskutiert und bewegte die Gemüter.
Im Jahre 1897 startete Pfarrer Späth einen neuen Versuch, wie „den beschränkten Schulverhältnissen des Schulsprengels Glonn abgeholfen werden“ könnte. Doch nun geriet er in die Mühle der Bürokratie. Zwischen dem ersten Schreiben von Späth an das „Königliche Bezirksamt“ (26.9.1897) und der Eröffnung des Schulbetriebs in der neuen Mädchenschule (6.11.1902) umfasst der Bauakt 77 Vorgänge: Schreiben, die zwischen Pfarrer Späth, dem Bezirksamt, der „Königlichen Regierung von Oberbayern“ und – in bescheidenem Umfang – der Gemeinde hin und her gingen.
Neben Pfarrer Späth war auf Seiten des Bezirksamtes Hauptbeteiligter Bezirksamtmann Franz Xaver Wagner. Sein Amt entsprach in etwa der des heutigen Landrats. Wagner stammte aus Neunburg v.W. Seine Laufbahn als juristischer Beamter führte ihn von Neunburg über Mallersdorf, Stadtamhof (Regensburg). Beilngries nach Regensburg. Anlässlich einer Inspektion durch den kgl. Regierungsdirektor Graf von Fugger wird bestätigt, dass Wagner „ein praktischer, gewandter und gut unterrichteter Beamter“ sei. „der seinen Dienst mit großem Eifer versieht. Wagner hält große Ordnung, diese Seele jeder guten Geschäftsführung“.
Vertreter der Gemeinde und des Schulsprengels war von 1887 – 99 Bürgermeister Sebastian Türk. Türk stammte aus dem Allgäu, war gelernter Käser und ließ sich in Glonn nieder, um hier im Haus Feldkirchnerstr. 4, dem späteren Welzmülleranwesen, eine Käserei einzurichten, ln seine Amtszeit fiel 1894 die Eröffnung der Lokalbahnlinie Grafing-Glonn. – Seit 1899 war der Gastwirt. August Lanzenberger Bürgermeister, ln dem umfangreichen Schriftverkehr und den dazugehörigen Gesprächen und Verhandlungen ging es hauptsächlich um die Fragen:
Wo kann eine neue Schule gebaut werden? Wie läßt sich der Bau finanzieren?
Wie sehen die Pläne aus?
Wie wird der Bau durchgeführt?
Woher kommen die Lehrkräfte?
Wie wird der Unterhalt der Schule gesichert? .
Ein Bauplatz wird gesucht
In seinem Schreiben vom 26.9.1897 teilte Späth mit: „Um die Gemeindekasse zu schonen, hat der Unterzeichnete, weil von verschiedenen Wohltätigkeit sich schon zur Verfügung gestellt, die Ausführung auf eigene Kosten übernommen.“
Diese Eigeninitiative begann schon bei der Suche nach einem geeigneten Bauplatz. Dafür bot sich am besten ein Acker südlich der bestehenden Schule an. Doch das Grundstück war im Besitz der Pfarrpfründe. Grundstücke der Pfarrpfründe, einst Grundstock der Pfarrökonomie, die den Lebensunterhalt des Pfarrers sicherte, konnte auch ein Pfarrer nicht ohne weiteres ihrem Zweck entfremden. Daher hatte Späth vorsorglich zwei Grundstücke an der Moosacher Straße, am Rand der Adlinger Filzen (Pl.Nr.365 und 365 1/2), erworben. Diese Grundstücke wurden nun gegen das für den Bau in Aussicht genommene Grundstück südlich der Schule (PI.Nr. 211) eingetauscht.
Von den „Eidlich verpflichteten Schätzmannern“ Johann Beham und Balthasar Killi wurden die Grundstücke wie folgt bewertet:

Situationsplan der beiden Grundstücke an der Moosacher Straße Schätzung der Tauschgrundstücke
Nach den heutigen Verhältnissen wurde also ein Baugrundstück in bester Ortslage (Größe nach heutigem Flächenmaß 0.562 ha) gegen ein Wiesengrundstück am Rande einer moorigen Räche (1.704 ha) eingetauscht – für die Pfarrpfründe ein sicher nicht sehr vorteilhafter Tausch. Damals war das Grundstück Nr. 211 aber ein Acker am Rande des Ortes, an einem Feldweg gelegen, wie der Situationsplan vom 5.5.1899 ausweist. Die Bewertung der Grundstücke erfolgte nach ihrem landwirtschaftlichen Ertrag (Bonität).
Der Wert des zu bebauenden Grundstücks wurde mit 10 M je Dezimal eingeschätzt. 1 Tagwerk entspricht 100 Dezimalen, bzw. 0.34 ha nach heutigem Maß. Der Quadratmeterpreis wurde also mit 0.29 M taxiert.
Dass das Grundstück für den Bau einer Schule genau der richtige Platz war, ist leicht einsehbar. Und so stellte denn auch Bezirksamtmann Wagner am 27.2.1899 fest: „Dieses Grundstück erscheint für den Zweck, welchem das zu bauende Haus dienen soll, in vorzüglicher Weise geeignet.“
Mit Schreiben vom 2.5.1899 wurde durch die Kgl. Regierung von Oberbayern – Kammer des Innern – „im Einverständnis mit der oberhirtlichen Stelle“ der Grundtausch genehmigt. Vorsorglich wurde angefügt, dass damit „der Bescheidung des Projekts der Errichtung einer Mädchenschule in keiner Weise vorgegriffen wird.“ .
Finanzierung des Vorhabens
Am 9.2.1896 hatte der Gemeindeausschuss (Gemeinderat) beschlossen: „In der Erwägung, daß eine Erweiterung oder ein Anbau am hiesigen Schulhause nicht möglich erscheint, und darum, um der gegenwärtigen Überfüllung der hiesigen Schule abhelfen zu können, die Erbauung eines weiteren Schulgebäudes stattfinden müsste, dagegen nach Ausspruch des hiesigen Herrn Pfarrers und Dekans Joseph Späth für Erbauung eines Klosters und Übertragung des Unterrichts der weiblichen Jugend an klösterliche Lehrkräfte der Gemeinde bereits eine Summe von 15 000 M zur Verfügung gestellt werden könne und ferner noch namhafte Legate für diesen Zweck in sicherer Aussicht stehen: so sei die Erbauung einer Klosterschule der Verwirklichung entgegenzuführen. Die Gemeinde sah sich jedoch nicht in der Lage, selbst einen „entsprechenden Kapitalbetrag“ beizusteuern. Die „Erträgnisse des Lokal-, Malz- und Bieraufschlags waren zusätzlich einer Kapitalaufnahme von 2000 M für die „Deckung der Grunderwerbskosten für die Lokalbahn und verschiedene Verpflichtungen lieh der Anschaffung von Feuerlöschgeräten u.dgl. bereits verplant. Die Bahn war bereits 1894 eröffnet worden, die Grundabtretungsverhandlungen aber waren noch nicht zu Ende geführt und für die Grunderwerbskosten war eine „weit bedeutendere Summe“ zu erwarten als veranschlagt. Die Gemein e bat deshalb für den Schulhausbau um eine Frist is nach dem Abschluss des Grunderwerbs für die Lokalbahn. Wie lange sich diese Verhandlungen noch hinziehen würden, war nicht abzusehen.
Ein Jahr später erklärte sich, wie schon ausgeführt, Pfarrer Späth bereit, den Bau auf eigene Kosten zu übernehmen. Er baute dabei auch auf den „Opfersinn“ der Gemeindebürger. Die in Aussicht gestellten Legate bestanden vor allem in einer Erbschaft, die Späth von seinen Geschwistern zufiel.
Die Behörden jedoch waren zunächst noch skeptisch. Die Kgl. Regierung will u.a. wissen, worin die zur Verfügung gestellten Mittel bestehen, ob Verwendbarkeit zu dem genannten Zweck genügend gesichert ist“ und ob für die „von Gemeindegliedern in Aussicht gestellte unentgeltliche Lieferung von Baumaterialien“ rechtliche Sicherheit bestehe (12.2.1898). Und das Bezirksamt verlangt, für diese freiwilligen Verpflichtungen „diesfallsige Erklärungen zu Protokoll zu nehmen, damit auf Grund dieser Erklärungen wenigstens eine annäherungsweise Werth-Schätzung stattfinden kann.“ (27.1.1898). – Wie ungewohnt solche bürokratischen Maßnahmen dem praktisch denkenden und auf ein gegebenes Wort vertrauenden Späth wohl waren, ist aus seiner Antwort ersichtlich, wenn er schreibt: „…die Antwort (des Bezirksamtes) führt die Sache in ein anderes Stadium; und sind so viele Punkte zur Beantwortung aufgegeben, die mir (auf Anhieb) unmöglich ist.“
Die reinen Baukosten für das neue Schulhaus betrugen 64 000 RM. Unter den „namhaften Legaten“, die dem Bau gewidmet wurden, ist vor allem ein Nachlass von 6 032,63 RM zu nennen, den der Privatier Koloman Wenig aus Mattenhofen in seinem Testament vom 5.9.1896 dem Schulbau vermachte. Diese „Wenig’sehe Schulstiftung“ wurde jedoch für die Baumaßnahme selbst nicht eingesetzt, heißt es doch im Protokoll der Schulpflegschaftssitzung vom 12.1.1902:
„Hier sei vermerkt, daß noch die Gartenumzäumung herzustellen, der Garten angelegt, Lehrmittel zu kaufen, Haus und Kapelle einzurichten sind, und dürfte hierzu das Wenigische Kapital mit ca. 7000 M sicher aufgebraucht werden.“ .
Ein Bauplan wird erstellt
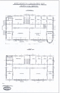
Schon in seinem Schreiben vom 26.9.1897 hatte Späth mitgeteilt: „Über einen Bauplan wurde lange beraten, und nun die Anfertigung eines bezüglichen Bauplanes dem in derartigen Bauten erprobten Baumeister Matth. Steinbrecher in München übertragen.“ Es wurde also nicht ein Baumeister aus der näheren Umgebung gewählt; der Planfertiger sollte Erfahrungen in ähnlichen Bauten mitringen. Die von Steinbrecher gefertigten Pläne, die Späth mit dem genannten Schreiben einreichte, sahen drei Lehrsäle von je 63.7 qm und einen gleich großen Raum für einen Kindergarten vor. Daneben waren Wohnräume für die klösterlichen Lehrkräfte eingeplant.
Wie aus dem Lageplan vom 5.5.1899 hervorgeht, sollte das Schulhaus ursprünglich in Nord – Süd – Richtung entlang des (heutigen) Klosterwegs gebaut werden. Der Klosterweg ist noch als Feldweg (Breite 3.30 m) eingetragen; eine Verbreiterung auf ca. 7 m ist eingeplant. (Abbildungen Seite 22/23)
Da die Entscheidung über die Genehmigung noch immer auf sich warten ließ, legte Späth den Plan dem Bezirksamt am 24.11.1898 erneut vor mit der Bemerkung, dass der Plan von einem „anerkannt tüchtigen Baumeister gefertigt“, dass „keine Gegenerinnerungen abgegeben“ wurden und dass er selbst, „der Unterfertigte nicht für sich einen Nutzen und Gewinn sucht“. Für den Fall, dass die „Revision (Prüfung) des Planes “ noch einige Zeit dauere, bat er um die Erlaubnis, „in der noch milden Jahreszeit mit der Grundgrabung beginnen zu dürfen, damit bei Eintritt der Frühlingszeit der Bau selbst begonnen werden kann.“ Und er ergänzt, dass das eine Herzensangelegenheit eines alten Mannes sei, dessen Jahre gezählt sind. Späth war zu dieser Zeit 73 Jahre alt.
Am 16.12.1898 berichtete Bezirksamtmann Wagner an die Kgl. Regierung, die Erklärungen Späths erschienen ihm „nicht genügend“. Zwar könne eine baupolizeiliche Genehmigung kaum vorenthalten werden.
Doch fehle noch eine Prüfung vom schulaufsichtlichen Standpunkt. Er bestätigt freilich, dass „die Schulverhältnisse in Glonn dringend einer Verbesserung“ bedürften, „da der seit dem Jahr 1893 bestehende Abtheilungsunterricht auf den Unterrichtsstand ungünstig einwirken muß“.
Die Genehmigung verzögerte sich weiter. Die Regierung von Oberbayern antwortete am 30.3.1899, dass zur Zeit keine Veranlassung bestehe, den Bau einer Mädchenschule einer „schulaufsichtli- che Würdigung“ zu unterziehen, solange nicht „bezüglich der Frage einer Veränderung in der Organisation der Schule in Glonn die erforderliche Instruktion durchgeführt ist“. Es ging um die Frage, ob eine eigenständige Mädchenschule errichtet werden sollte.

Ursprüngliche Pläne : Grundrisse und Ansichten
Wagner beauftragte daher am 5.4.1899 die Gemeinde, die bereits 1897 abgegebene Einwilligung der Grundnachbarn nochmals unterschriftlich festzustellen, und teilte mit, dass die Pläne nun der Regierung zur schulaufsichtlichen Prüfung vorgelegt würden.
Am 6. Juli 1899 heißt es in einem Schreiben Wagners an Späth: „Wie ich gelegentlich des letzten Amtstages in Glonn wahrgenommen habe, ist die Situation des von Herrn Adressaten zu erbauenden Hauses gegenüber dem baupolizeilich genehmigten Bauplan vollständig verändert.“ – Der Bau war also inzwischen genehmigt; die neue „Situation“ bestand darin, dass nun das Gebäude in Ost-West-Richtung gelegt werden sollte. Wagner ersucht deshalb um die „beschleunigte Vorlage eines neuen Situationsplanes“. Noch im Juli wurde dieser Plan zusammen mit neuen Grundriss- und Ansichtsplänen vom Baumeister erstellt. Sie weisen im Inneren eine Umgliederung der einzelnen Räume auf. Der langwierige Weg bis zum Beginn des Baues war bewältigt.

Ursprünglicher Lageplan
.
Ein Schulhaus wird gebaut
Am 24. Juni, dem Johannitag des Jahres 1899, wurde der Grundstein für das neue Haus gelegt. Wenn erst zwei Jahre später der Abschluss der Baumaßnahme gemeldet werden konnte, bedeutet das für heutige Verhältnisse eine relativ lange Bauzeit für ein zwar großes, aber doch in herkömmlicher Bauweise erstelltes Gebäude. Man darf dabei aber nicht vergessen, dass es zu dieser Zeit noch kaum Baumaschinen heutiger Art gab, wie z.B. Kräne, Betonmischfahrzeuge. Bagger… Der größte Teil der Arbeiten musste per Hand und mit einfachen Werkzeugen ausgeführt werden.
Die Bauausführung war der Firma Braun übertragen. Doch schon bei der ersten Maßnahme ging es wohl nicht ohne die versprochenen „Hand- und Spanndienste“. Die „Grundgrabung“, von Späth noch für den Spätherbst des Vorjahres vorgesehen, konnte endlich in Angriff genommen werden. Vorher musste noch das Getreide – es stand noch am grünen Halm – gemäht und eingebracht werden. Viele fleißige Hände waren notwendig. Spatenstich um Spatenstich wurde das Erdreich ausgegraben, Fuhrwerke transportierten den Aushub ab, bis endlich die Baugrube fertiggestellt war. Nun begann das Werk der Maurer. Sie brauchten jedoch die Unterstützung durch die „Handlanger“, wie man damals Bauhilfsarbeiter nannte. Beton und später Mörtel musste gemischt und ebenso wie die Bausteine an die jeweilige Arbeitsstelle der Maurer transportiert werden, in Schubkarren oder auf der Schulter über schräge Auffahrtsrampen hinauf auf die Baugerüste. Und wenn die Zahl der Helfer nicht ausreichte, mussten (oder soll man lieber sagen „durften“?) auch die Schulbuben der höheren Jahrgänge mithelfen, so z.B. als es darum ging, die Dachziegel auf das Dach zu befördern.
Baumaterialien konnten nicht einfach beim nächsten Lagerhaus zur Lieferung bestellt werden. Auch hier waren wohl die freiwilligen „Spanndienste“ im Einsatz. Zudem wurde ein Teil der Baumaterialien gespendet: Manche Bauern der Umgebung hatten damals eigene Kiesgruben, in Glonn selbst waren noch Tuffsteinbrüche (am Steinbruchweg am heutigen Lagerhaus) in Betrieb, wo Lehmgruben zu erschließen waren, wurden in kleinem Umfang auch Ziegel gebrannt, so z.B. in Witting bei Berganger, und schließlich waren die meisten Bauern auch Waldbauern. Kies, Sand Bausteine und Bauholz waren also wohl die Baumaterialien, die die Gemeindebürger lieferten.
Diese Lieferungen, die Spanndienste ebenso wie der Arbeitseinsatz liefen sicher nicht immer reibungslos ab; die Glonner konnten schließlich ihre eigenen Arbeiten nicht vernachlässigen: auf dem Feld, im Stall oder in der Werkstatt. Der Initiator des Baues musste daher wohl immer wieder durch Überzeugungsarbeit dafür sorgen, dass der Bau nicht zu sehr verzögert oder gar zum Stillstand komme würde. Dazu kam, dass die Geldmittel nicht unerschöpflich und staatliche Zuschüsse nicht zu erwarten waren. Diese Sorgen klingen denn auch durch, wenn Späth schreibt: „Die bereits erwachsenen, aber auch schon getilgten Kosten des Mädchenschulhauses in Glonn, welches der derzeitige Pfarrer aufzuführen beabsichtigt, belaufen sich auf 25 000 Mark. Wenn nochmal so viele Kosten angewachsen sind, dann sind die verfügbaren Mittel erschöpft, und es wagt der Pfarrer nicht mehr weiterzubauen. Denn mit einem Schuldenrückfluß will er nicht von der Pfarrei abziehen. Der Bau wird eben dann später vollendet. Bis jetzt ist nur Hand- und Spanndienst geleistet und sind Baumaterialien, als Tuffstein, Ziegelstein und Holz geliefert worden. Aber die Arbeitslöhne, Holz- und Eisenbedarf und Ziegel haben große Summen aufgezehrt.“
Am 23. April 1901 konnte Pfarrer Späth dem Bezirksamt die Vollendung des Baues mitteilen. Und er vermerkt in seinen Aufzeichnungen (die er wohl auch in Schulpflegschaftsversammlungen den Glonnern gesagt hat): „Ich glaube, es sollte noch allen im Gedächtnis sein, wie ich den Schulhausbau unternommen: Nämlich im Vertrauen auf Gott, und im Hinblick auf Eure Opfer und Unterstützung. Doch sei nicht vergessen, daß es nicht mir geschenkt und geleistet wurde, sondern Ihr habt es Euch selbst gethan. Nicht für mich hab ich’s gebaut, sondern für Euch.“ .
Prüfung und Genehmigung des Baues
„Er erwarb sich den Baugrund, ließ sich durch den erfahrenen Bautechniker Matthäus Steinbrecher in München einen Bauplan fertigen, ging ans Werk und unterstützt durch bereitwilliges Entgegenkommen der Pfarrkinder steht nun der Bau vollendet da.“ So berichtete Späth am 23.4.1901 an das Bezirksamt. Er verband damit die Bitte, dass das Haus durch die Regierung möglichst bald besichtigt und auf seine Eignung für den Unterricht geprüft würde. Doch es sollte nochmals eineinhalb Jahre dauern, bis das Gebäude seinen Zweck erfüllen konnte.
In seinem Schreiben an die Regierung vom 30.April 1901 unterstützt Bezirksamtmann Wagner nachdrücklich das Anliegen, indem er erneut auf die untragbaren Schulverhältnisse hinweist: „Die Verhältnisse an der Schule in Glonn sind nicht länger mehr zu halten. Der Hilfslehrer hat für die ersten 4 Schuljahre (Jahrgänge) Abtheilungsunterricht zu ertheilen. Die ersten zwei Schuljahre zählten im abgelaufenen Schuljahr 67, die nächsten beiden Schuljahre 85, die letzten Schuljahre 80 Schüler. Die Ertheilung des AbtheilungsUnterrichts an eine so große Zahl von Schülern ist auch bei dem größten Fleiß und Eifer, der den Hilfslehrer Leopold Mayr auszeichnet, für eine längere Dauer ohne Schädigung der Gesundheit des Lehrers kaum möglich.“ Wagner hofft, dass die neue Schule „mit Beginn des Wintersemesters eröffnet werden könnte“. Und er bittet darum, dass das kgl. Landbauamt und der Bezirksarzt prüfen möge, ob das Gebäude sich zur Benutzung als Mädchenschulhaus eigne. Wenige Tage später erteilte die Regierung die Genehmigung zu dieser Prüfung.
Nach einer eingehenden Besichtigung stellte Bezirksarzt Dr. Komtheuer in seiner Stellungnahme am 8.6.1901 fest, „daß der gesamte Bau für das Land geradezu als großartig und als Musterbau, der mit allen Errungenschaften der Baukunst in der Neuzeit ausgerüstet ist, bezeichnet werden muß. Die Lage dieses Baues, der von der Hauptstraße entfernt an einem Nebenweg gelegen ist, ist eine ruhige, der Unruhe des Tagesverkehrs entrückte, in staubfreier Luft, von Gärten und Wiesen umgeben“. Er lobt den soliden Bau, die weitsichtige Planung, die mit 4 Schulsälen auch für weiter steigende Schülerzahlen ausreiche, die Beleuchtung durch große Fenster, die Beheizung durch Kachelöfen, die breiten Stiegen und viele weitere Einzelheiten und stellt fest, dass der Neubau „als vollkommen entsprechend für eine Mädchenschule, verbunden mit einer Kleinkinderbewahranstalt (Kindergarten)…bezeichnet werden muß… und kann derselbe…, weil bis dahin gut ausgetrocknet, im Herbst bezogen werden“.
Auch das kgl. Landbauamt München stellt in seiner Stellungnahme fest, dass „das Objekt mit seinen 4 geräumigen Schulsälen… und seinen Nebenlokalen vollständig als Schule geeignet ist“. Es wurde freilich nicht vergessen, kleinere Beanstandungen zu nennen: die Fenster „gehen schlecht“, die Lehrerpodien sind zu schmal, das Treppengeländer ist zu wenig stabil und die Dielen der Fußböden müssten noch ausgekittet werden.
Nach Aufforderung durch die Regierung berichtete Wagner am 23. Dez. 1901 über das Ergebnis der Prüfungen. Er ergänzt, dass „gelegentlich der am 19. November stattgefundenen außerordentlichen Schulvisitation mit dem Distriktschulinspektor“ festgestellt wurde, dass bereits 2 Schulsäle mit vorschriftsmäßigen Bänken, Schultafeln und Lehrertischen eingerichtet seien. Somit könne man „die Regelung der Angelegenheit nicht länger verzögern, damit bis zum Beginn des Schuljahres 1902/03 geordnete Schul Verhältnisse herbeigeführt würden.“ – Das Schuljahr begann zu der Zeit nicht im Herbst, sondern nach den Osterferien. .
Eine Mädchenschule mit klösterlichen Lehrkräften wird errichtet.
Von Anfang an ging es Pfarrer Späth bei seiner Schulbau-Initiative um 2 Ziele:
Verbesserung der untragbaren Schulverhältnisse in Glonn
Errichtung einer eigenständigen Mädchenschule unter klösterlicher Leitung
Schon in seinem Schreiben vom 14.11.1883 hatte er die Frage gestellt, ob es möglich wäre, Knaben- und Mädchenschule zu trennen und die Mädchenschule „mit allerhöchster Genehmigung“ einem weiblichen Orden zu übergeben. Sein Vorschlag war, Ordensfrauen vom Kloster Maria Stern in Augsburg als Lehrkräfte zu gewinnen. Auf eine diesbezügliche Rückfrage des Bezirksamtes teilte Späth mit, dass das genannte Kloster bereits an 13 Orten Mädchenschulen unterhielte. Es war die Zeit, in der sich besonders Frauenorden darum annahmen, die Schulbildung der weiblichen Jugend zu verbessern. Schulorden wie der von Therese Gerhardinger gegründete Orden der „Armen Schulschwestern“ gründeten Niederlassungen in vielen Ländern.
Als dann 1897 die Vorbereitungen für einen Schulhausbau in eine konkrete Phase kamen, wiederholte Späth in seinem Schreiben vom 26. September dieses Anliegen. Die Regierung von Oberbayern ersuchte um Auskunft über die Zahl der zu berufenden Lehrkräfte und die Höhe der „Personalexigenz“ der Ordensfrauen. In den weiteren Verhandlungen wurde die Prüfung des Projektes immer wieder mit der Errichtung einer eigenständigen Mädchenschule und damit bedingter Trennung der Geschlechter verbunden.
Als der Bau bereits seiner Fertigstellung nahe war, erinnerte Späth an den in verschiedenen SchulbauVersammlungen einstimmig gefassten Wunsch, „die Mädchenschule durch klösterliche Lehrschwestern halten zu lassen“. Bezirksamtmann Wagner verwies auf die Regierungsentschließung vom 12.1.1898, deren Bedingungen noch nicht vollständig erfüllt seien, so
die Klärung der Schenkungsfrage (Schulhaus)
die Leistungen des Schulsprengels
die Sicherung der „Realexigenz“
die Beschlüsse der Schulsprengelvertretung und des Gemeindeausschusses
sowie das Gutachten des Distriktschulinspektors.
Am 19.12.1901 erinnerte Wagner die Gemeindeverwaltung an den Zweck der Stiftung und an die noch anstehenden Beschlüsse und schreibt u.a.: „Die Schulsprengelvertretung hat sich beschlußmäßig zu erklären, ob die Schule in Glonn nach Geschlechtern getrennt und der Unterricht der hiernach zu errichtenden Mädchenschule an Schwestern des Ordens S. Fr. Maria Stern in Augsburg oder welchem anderen Orden übertragen werden soll.“
Die Gemeinde sah sich wegen der noch nicht endgültig geklärten Stiftungsangelegenheit zunächst nicht in der Lage, die geforderten Beschlüsse zu fassen. Erst nachdem durch Vermittlung und im Beisein Wagners (11.4.1902) diese Unstimmigkeiten (s.u.) beseitigt waren und dieser die Marktgemeindeverwaltung (inzwischen war Glonn zum Markt erhoben) nochmals schriftlich (23.4.1902) über die Bedingungen der Schenkung in Kenntnis gesetzt hatte, wurden die erforderlichen Beschlüsse zur Errichtung einer Mädchenschule mit klösterlichen Lehrkräften gefasst, und zwar von
der Schulsprengelvertretung am 15. Mai 1902
dem Gemeindeausschuss am 15. Mai 1902
und der Gemeindeversammlung am 19. Mai 1902.
Alle Beschlüsse fielen einstimmig.
Für die Schulsprengelvertretung Unterzeichneten:
Bürgermeister August Lanzenberger
und die Beigeordneten:
Winhart, Wimmer, Baumgartner, Esterl, Wäsler, Voglrieder, Sigl, Breit. Obermaier, Kastl
Gleichzeitig wurde zwischen der Marktgemeinde und dem Kloster Maria Stern ein Vertrag zur Übernahme der Mädchenschule geschlossen.

Vertrag zwischen der Marktgemeinde und dem Kloster Bestätigung der Entsendung der klösterlichen Lehrkräfte
Der zunächst beabsichtigte Unterrichtsbeginn im neuen Schulhaus mit Beginn des neuen Schuljahres (1.Mai) konnte also nicht eingehalten werden. – Am 2.Juni folgte die Zustimmung des Distriktschulinspektors J.Lochner. Nachdem das Staatministerium des Innern (für Kirchen- und Schulangelegenheiten) am 19. Sept. 1902 die Errichtung der Mädchenschule und die Berufung von klösterlichen Lehrkräften genehmigt hatte, bestätigte die Oberin M. Engelberta Winkler, dass das Kloster 2 Lehrkräfte, sowie eine weitere Klosterfrau zur Besorgung des Haushalts entsenden werde.
Am 16. Oktober folgte schließlich die oberhirtliche Genehmigung des erzbischöflichen Ordinariats München, dass „Sternschwestern“ aus Augsburg (also aus einer benachbarten Diözese) den Unterricht in Glonn übernehmen. Nachdem auch die Gemeinde ihre Aufgaben (Einrichtung, Beschaffung der erforderlichen Lehr- und Unterrichtsmittel) erfüllt hatte, stand – endlich – dem Beginn des Unterrichts in der neuen Schule nichts mehr im Wege. .
„Real- und Personalexigenz“ Sicherung des Unterhalts von Schule und Lehrkräften
Eine wichtige Rolle in den Überlegungen und Verhandlungen zur Errichtung einer neuen Schule spielte die Frage, wie die laufenden Aufwendungen für die Schule und der Unterhalt der Lehrkräfte auf Dauer getragen werden könnten. Aus heutiger Sich ist diese Frage klar zu beantworten: Die Gemeinde, bzw. der Schulverband, ist Sachaufwandsträger, die Lehrkräfte als Beamte werden vom Staat besoldet. Um die Wende zum 20. Jahrhundert war jedoch für den Unterhalt der Lehrkräfte immer noch die Gemeinde, bzw. die Schulsprengelverwaltung zuständig. Das Einkommen des Lehrers setzte sich gewöhnlich aus dem Entgelt für den Schuldienst, der aus der Schulumlage (Schulgeld) aufgebracht wurde, sowie aus Kirchen-
(Organisten-)dienst und seiner Tätigkeit als Gemeindeschreiber zusammen. Der Schulsprengel Glonn umfasste damals die Dörfer und Weiler des Gemeindegebietes mit Ausnahme von Schlacht (die Schlachter Kinder gingen nach Oberpframmern zur Schule), sowie ein Anwesen des Ortes Gailling (Gemeinde Baiern). Schon am 12. Jan. 1898 hatte deshalb die „Königl. Regierung von Oberbayern“ gefordert, die „Realexigenz“ der neu zu errichtenden Schule (Aufwendungen für Beheizung, Beleuchtung, Reinigung, Brandversicherung…), und die notwendigen einmaligen Ausgaben (Einrichtung, Lehrmittel…) ebenso die Zahl der in Aussicht genommenen Lehrkräfte des Klosters und die sich daraus ergebende „Personalexigenz“ festzustellen; und sie hatte ergänzt: „Erst wenn die vom Schulsprengel zu übernehmenden Aufgaben klar sind, die Schulsprengelverwaltung die Übernahme beschlußmäßig erklärt hat, kann Beschluß (über die Errichtung einer Mädchenschule) gefaßt werden.“ Während der Baumaßnahmen waren diese Fragen zunächst in den Hintergrund gerückt.
Am 30. April 1901 erinnerte das Bezirksamt Pfarrer Späth: „Es wird vor allem notwendig sein, … die Personalexigenz der zu berufenden Ordensschwestern festzustellen. Steht die Höhe der Personal- und Realexigenz fest, so wird die Schulsprengelvertretung bzw. die Gemeinde Glonn zur Übernahme derselben zu veranlassen sein.“ Nachdem Wagner am 19.12. noch einmal – diesmal gegenüber der Gemeinde – einen Beschluss zu der ungeklärten Frage angefordert hatte, lehnt diese die Übernahme ab, mit dem Hinweis, dass kein Stiftungskapital vorhanden sei, der Gemeinde aber „fortdauernd sehr bedeutende Last auf gebürdet, die eine Erhöhung der Schulumlagen um ca. 35 % zur Folge hätte.“ In diesem Zusammenhang spielt auch die Übernahme der Schulstiftung ‚ (Schenkung) herein (s.u.). Nachdem diesbezügliche . Unstimmigkeiten durch Vermittlung Wagners beseitigt j waren, stellte das Bezirksamt in seinem Schreiben , vom 23. April 1902 klar, dass für die schulaufsichtliche Genehmigung der Mädchenschule und die damit verbundene Lösung der Glonner Schulprobleme die Übernahme der Personal- und Realexigenz Voraussetzung wäre. Um die entsprechenden Beschlüsse fassen zu können, müsse die Schulsprengelvertretung im Benehmen mit dem Mutterkloster in Augsburg die Höhe der einmaligen und der laufenden Aufwendungen feststellen. * Innerhalb weniger Tage (1. Mai) wurde nun diese Kostenaufstellung ermittelt. Sie sieht vor:
- a) Einmalige Ausgaben
für noch ausstehende Arbeiten (Umzäunung und Anlage des Gartens)
- b) Personalexigenz
für 2 klösterliche Lehrkräfte
jährlich 500.– 1000.-
Für 1 Haushaltsschwester
jährlich 300.— 300.-
1300,-
c) Realexigenz
- Einmalige Ausgaben
Einrichtung der klösterlichen Wohnräume,. Beleuchtung 1300.-
Schuleinrichtungen und Lehrmittel 441.-
1741,-
Jährliche Ausgaben für Heizung, Reinigung und Beleuchtung etc. 783.–
Unter dem Titel Schuleinrichtungen sind die Schulbänke nicht verzeichnet. Man kann also davon ausgehen, dass sie zu dieser Zeit bereits angeschafft waren. Schließlich sollte ja ursprünglich der Unterricht in der neuen Schule bereits zum Anfang des Schuljahres 1902/03 (1. Mai) beginnen.
Zur Finanzierung konnte die Gemeinde nun auf die „Koloman Wenigesche Schulstiftung“ zurückgreifen, die durch Verzinsung auf ca. 7000 Mark angewachsen war. Demgemäß wurde in der Schulsprengelvertretung beschlossen: „Die einmaligen Ausgaben für Einfriedung und Anlage des Gartens wie für Einrichtung der Klosterwohnung und Anschaffung von noch fehlenden Schulutensilien und Lehrmitteln seien aus dem Wenig’sehen Stiftungskapital zu bestreiten, die laufenden Kosten für Real- und Personalexigenz aber seien, so weit nicht die Zinsen aus der restigen Wenig’sehen Stiftung reichen, oder nicht andere zu erhoffende Legate und Zuschüsse vorhanden sind, durch jährliche Umlagen der Schulsprengelmitglieder zu decken.“ .
Schenkung an die Gemeinde
Von Anfang an war klar, dass es bei dem von Pfarrer Späth initiierten Bau einer Mädchenschule nicht darum ging, eine Privatschule im Besitz des Pfarrers oder der Kirche zu errichten. Schon am 12.1.1898 ist in einem Schreiben der Regierung von einer beabsichtigten „schenkungsweisen Überlassung“ die Rede. Gemeint ist aber hier nur der im Besitz von Späth befindliche Acker, der als Bauplatz vorgesehen war. Späth wollte aber nicht nur ein Grundstück zur Verfügung stellen, sondern eine fertige Schule stiften. Mit der Vorlage der Baupläne bekräftigte er dies. Bezirksamtmann Wagner bestätigte das am 16.12.1898, wenn er in seinem Bericht an die Regierung schreibt: „Dekan Späth erklärte darin, daß er fraglichen Bau als Privatmann auf seine Kosten hersteilen und der Gemeinde Glonn zum Geschenk machen wolle.“
Als der Bau dann abgeschlossen war, entwarf Späth eine Stiftungsurkunde, in der es heißt: „Dieses Schulhaus, das zur Zeit noch in meinem Eigenthum steht, bestimme ich als Grundstock einer Stiftung, die ich unter dem Namen „Pfarrer Joseph Späth’sche Schulstiftung in Glonn“ errichten will“. Als Zweck nennt er eine von Klosterfrauen zu leitende Mädchenschule. Weiter heißt es: „Dafür, daß der Gemeinde Glonn das Stiftungsgebäude für die Zwecke der Mädchenschule für alle Zeit zur Verfügung gestellt wird, hat die Gemeinde Glonn die volle Unterhaltspflicht bezüglich des Gebäudes zu übernehmen.“ Er erinnert dabei an die der Gemeinde zugefallene Wenig’sche Erbschaft, die zur Deckung dieser Last herangezogen werden könne. Vorstand der Stiftung solle der jeweilige Glonner Pfarrer sein, dem als beratendes Organ die Gemeindeverwaltung zur Seite stehen solle. Auch für den Fall, dass aus irgendwelchen Gründen die von Klosterschwestern geführte Mädchenschule nicht mehr weiterbestehen könne, das Stiftungsgebäude also dem Stiftungszweck entzogen würde, sorgt Späth vor: Dann solle das Gebäude dem erzbischöflichen Domkapitel zur Verwendung als Priesterhospital zufallen.
Wagner, dem der Entwurf vorgelegt wurde, forderte am 19.12.1901 die Gemeinde Glonn zur Stellung- nähme und ggf. Beschlussfassung über die Annahme der Stiftung auf und verweist dabei auf das Nutznießungsrecht der Gemeinde.
Schulpflegschaft und Gemeinde standen nun vor einer schwierigen Entscheidung. Einerseits wurde ein fertig erstelltes Schulgebäude zur Verfügung gestellt, das die Gemeindeverwaltung der Notwendigkeit enthob, selbst einen Erweiterungs- oder Neubau zu erstellen, um die Schulraumnot zu beheben. Andererseits hatte sie keinen entscheidenden Einfluss auf die Verwaltung der Stiftung. Am 12.1.1902 lehnte die Schulsprengelverwaltung die Übernahme der Stiftung ab, da sie „nur Pflichten und keine Rechte erhalten soll, da die Schulsprengelverwaltung nur beratendes Organ“ sei, und da „eine Stiftung eigentlich nicht existiert, da kein Stiftungskapital ausgewiesen erscheint, der Schulsprengel vielmehr für die gesamte Real- und Personalexigenz …aufzukommen habe.“ Freilich wird angefügt, dass damit nicht gesagt sei, dass die Schulgemeinde zur Klosterschule nichts leisten wolle. Vor allem das Eigentumsrecht und der Vorbehalt bei einer späteres Auflösung der Klosterschule müsse aber anders geregelt werden. – Dass der Unterhalt des Gebäudes sowie die Sorge für die Real- und Personalexigenz auch bei einem von der Gemeinde erstellten Schulhaus hätten getragen werden müssen, wird in dem Beschluss nicht erwähnt.
Vor weiteren Schritten zur Klärung der Angelegenheit ließ sich nun Späth von einem Rechtsanwalt beraten. Rechtsanwalt Rumpf, München, bestätigt im wesentlichen den Standpunkt Späths: Die Tatsache einer Stiftung hänge nicht davon ab, ob Stiftungskapital vorhanden sei, sie könne auch „ausschließlich in Immobilien bestehen“. Auch die Bestimmung für den Fall, dass einmal der Stiftungszweck (Klosterschule) nicht mehr gegeben sei, sei nicht zu beanstanden, da die Gemeinde ja andernfalls selbst hätte ein Schulgebäude errichten und die sonstigen Schullasten tragen müssen.
„Die unentgeltliche Benützung des Schulgebäudes ist für die Gemeinde genügendes Entgelt für die Übernahme der Gebäudeunterhaltung“.
Bedenken äußert Rumpf hinsichtlich der Verwaltung der Stiftung, in der die Gemeinde, bzw. die Schulsprengelvertretung nur mit beratender Stimme vertreten sein sollte. Er hält es deshalb für notwendig, dass vor der Erstellung eines neuen Entwurfs einer Stiftungsurkunde ein persönliches Gespräch mit den Beteiligten, insbesondere dem Bürgermeister und dem Bezirksamt, stattfindet.
Diese Besprechung fand am 11. April 1902 unter der Leitung von Bezirksamtmann Wagner statt. Beteiligt waren neben Pfarrer Späth und Bürgermeister Lanzenberger Rechtsanwalt Rumpf, die Gemeindeausschussmitglieder, sowie Lehrer Strauß als Protokollführer. Es kam zu einer beide Seiten befriedigenden Einigung. Späth erklärte sich bereit, „unter der Bedingung des Anerkenntnisses und der Einhaltung der Bestimmungen der Stiftungsurkunde, das Eigentum an dem von ihm erbauten Schulhause der Schulgemeinde Glonn schenkungsweise“ zu überlassen. Die Gemeinde war einverstanden, „diese Stiftung unter den in der Stiftungsurkunde festgesetzten Bedingungen“ anzunehmen.
Zu den Bedingungen zählten neben dem schon genannten Vorbehalt im Fall, dass der Stiftungszweck nicht mehr erfüllt wird:
-Übernahme der Baulast
-Einfriedung des Schulgrundstücks (mit Garten)
-Einrichtung der Wohnung für die Klosterschwestern
-Unterbringung einer Pfarrbibliothek
-Übernahme der Real- und Personalexigenz der Mädchenschule
Noch aber war der Behördenweg nicht zu Ende. Die Regierung von Oberbayern wies am 25.9.1902 darauf hin, dass von einer „Stiftung mit Rechtspersönlichkeit“ nicht gesprochen werden könne, da Späth das Schulhaus der Schulgemeinde „schenkungsweise zu Eigentum“ überweise, d.h. „der Gemeinde des Schulsitzes eine Schenkung machen wollte, die er irrtümlicher Weise als Stiftung bezeichnete.“
Am 24. Oktober 1902 erfolgte die notarielle Beurkundung der Schenkung durch den Notar Max Kirchgrabner, Ebersberg. Dabei wurde festgestellt, dass auch die „Schulgemeinde“ keine juristische Person sei. Deshalb wurde der Vertrag unter gleichen Bedingungen auf die politische Gemeinde Glonn als Beschenkter ausgefertigt. Nutzen und Lasten sollten aber dem Schulsprengel Glonn zustehen.
Endlich waren alle Voraussetzungen für die neue Mädchenschule und den Beginn des Unterrichts erfüllt. Am 4. November trafen die beiden Lehrerinnen aus dem Kloster Maria Stern in Glonn ein. Am Donnerstag, 6. November 1902, dem Fest des hl. Leonhard, folgte die offizielle Eröffnung der Mädchenschule und die Einweisung der Lehrfrauen durch den Bezirksamtmann, Regierungsrat Wagner. Anwesend waren Geistlicher Rat Pfarrer Joseph Späth, Bezirksamtmann Wagner, Distriktschulinspektor Lochner, Bürgermeister August Lanzenberger und die Mitglieder des Schulpflegschaftsausschusses, sowie die Lehrer und Eltern der Schulkinder. Es war ein großer Tag in der Glonner Schulgeschichte.

Vertrag zwischen Marktgemeinde und Kloster



Die Schule in der Obhut der Klosterfrauen
Der Orden: Kloster Maria Stern in Augsburg
Hinter dem mächtigen Renaissance-Bau des Augsburger Rathauses ragt zwischen zwei gotischen Giebeln ein schlankes, achteckiges Türmchen empor, bekrönt von einem golden strahlenden Stern: äußeres Sinnbild des Klosters Maria Stern, das hier, an der Sterngasse 5, sein Mutterhaus hat.
Wer sind nun diese in Glonn allgemein als „Sternschwestern“ bezeichneten Klosterfrauen, die in Augsburg seit Jahrhunderten wirken – und wie kamen sie zu diesem Namen?
In den mittelalterlichen Städten waren die Häuser nicht durch Hausnummern gekennzeichnet. Nicht nur Gasthäuser {..zum Lamm“, ..zum Adler“…) trugen deshalb Hauszeichen, Hausmarken. An der alten „Reichsstraße“ in Augsburg stand das Haus „zum Stern“. In ihm lebte um die Mitte des 13. Jahrhunderts die verwitwete Bürgerin Canione. 1258 begann sie zusammen mit ihren beiden Töchtern ein Leben des Gebetes und des Dienstes an ihren Mitbürgern. Andere Frauen schlossen sich an, und so entstand in ihrem Haus eine „Sammung“ (Gemeinschaft). Begeistert von der Predigt und vom Wirken der von Franz von Assisi ausgesandten „Minderbrüder“ (Franziskaner), die um diese Zeit in die alte Reichsstadt kamen, versuchten sie nach der Regel des Dritten Ordens des hl. Franziskus ihr Leben nach dem Evangelium zu gestalten, nahmen 1281 die franziskanische Lebensform an und wurden in die Straßburger Ordensprovinz aufgenommen.
2 Bilder
1574 – 76 wurde an das kleine Kloster die der hl. Anna und der hl. Elisabeth geweihte Kirche angebaut. Baumeister war Johannes Holl, der Vater des Erbauers des Augsburger Rathauses Elias Holl. Der Turm ist ein Werk des Jonas Holl, ein älterer Bruder von Elias. Er ist von einer in Augsburg hier zum ersten Mal gebauten .“Welschen Haube“ (Zwiebelkuppeldach) gekrönt, die später Vorbild für die beiden Rathaustürme wurde. Während des Dreißigjährigen Krieges litt auch Augsburg unter den wiederholten Einfällen der verschiedenen Kriegsparteien und ihrer Landsknechtheere. Die Gemeinschaft der Sternfrauen stellte sich deshalb unter den Schutz der Gottesmutter und nannte sich nun „Maria Stern“.In der Zeit der Säkularisation wurde 1802 auch dieses Kloster aufgehoben, der gesamte Klosterbesitz fiel an die Stadt Augsburg. Die verbliebenen Schwestern erreichten durch Eingaben an den Bischof, den Magistrat der Stadt und schließlich an König Ludwig I. die Neubelebung (Wiedererrichtung) des Klosters. Es wechselte nun vom eher kontemplativen zum tätigen Leben und erlebte eine neue Blüter. Neue Aufgabengebiete wurden gesucht in der Erziehungs- und Lehrtätigkeit, in der Behindertenbetreuung, in der Kranken- und Altenpflege. So war es kein Wunder, dass die Augsburger Schwestern bald auch in andere Orte gerufen wurden. 1855 entstand die erste Niederlassung in Legau in Schwaben. Als in Glonn die ersten Überlegungen zur Errichtung einer Mädchenschule angestellt wurden (1883), gab es in Bayern schon 13 Schulen, die von Sternschwestern geleitet wurden. 1936, ein Jahr vor der zweiten „Säkularisation“ des klösterlichen Schulwesens (durch die Nationalsozialisten) gab es in Bayern 125 Niederlassungen. Heute wirken die Franziskanerinnen aus Augsburg auch in der Mission, in Brasilien und in Mozambique, und versuchen dort gerade den Ärmsten in ihren vielfachen Nöten zu helfen. .
Die ersten Lehrkräfte
Mit der Übernahme der neuerrichteten Mädchenschule durch Klosterfrauen von Maria Stern kamen schwäbische Laute nach Glonn. Ein großer Teil der Nonnen des Mutterhauses stammte wohl aus dem Umfeld von Augsburg und aus der Stadt selbst. Das traf auch auf die beiden ersten Lehrkräfte zu, die an der neuen Schule unterrichteten:
Schwester M. Electa Schilling, geboren 1863, stammte aus dem Bezirksamt Günzburg. Im Juli 1882 hatte sie das Studium an der Lehrerbildungsanstalt abgeschlossen, im Oktober 1886 ihre Anstellungsprüfung (heute 2. Lehramtsprüfung) mit der Hauptnote „gut“ abgelegt. Sie blickte also bereits auf eine langjährige Erfahrung in ihrer Lehrtätigkeit zurück.
Schwester M. Irenäa Hell, geboren 1879, stammte aus dem Bezirksamt Schrobenhausen. 1898 hatte sie ihre Seminarausbildung abgeschlossen, im Oktober 1902 ihre Anstellungsprüfung abgelegt. Sie war also noch eine junge Lehrerin, die eben ihre Praktikantenjahre vollendet hatte und nun voller Eifer und Erwartung ihre erste Schulstelle antrat.
Den Haushalt der kleinen klösterlichen Gemeinschaft führte Schwester M. Alverina Heim.
Die beiden Lehrkräfte teilten sich den Unterricht:
- Electa Schilling übernahm die Oberstufe (4. – 7. Schuljahr mit 68 Schülerinnen),
- Irenäa Hell die Unterstufe (1.-3. Schuljahr mit 50 Schülerinnen).
Hinzu kam der Unterricht in der Sonntagsschule, einer Vorstufe der ländlichen Berufsschule. Zu ihrem Besuch waren die Mädchen der 3 Jahrgänge verpflichtet, die die Volksschule hinter sich hatten.
Beispiel eines Zeugnisses zur Anstellungsprüfung im Lehramt um die Jahrhundertwende .
Die Zeit bis zum 1. Weltkrieg
Die jungen Lehrerinnen in klösterlichem Habit kamen in eine neugegründete klösterliche Niederlassung, die noch in einem ziemlich kahlen Umfeld stand. Von der grünen Oase inmitten des Ortes, wie sie älteren Glonner Landsleuten noch in Erinnerung ist, war noch wenig zu sehen, war doch das Schulhaus inmitten eines ehemaligen Getreidefeldes erbaut worden. Erst allmählich und mit viel Mühe, aber wohl auch freudigem Einsatz wurde aus dem Acker ein Garten. Die Gemeinde sorgte für eine teils in schmiedeeiserner Arbeit ausgeführte Umzäunung. Die hohen Bäume am Rand des Gartens, von denen heute nur noch ein Teil steht, sind auf einem Photo aus dem Jahr 1912 noch nicht zu sehen; sie wurden neu gepflanzt und gehegt. In der Mitte des Grundstücks wurden Gemüse- und Blumenbeete angelegt. In einer Ecke stand später im Schatten der Bäume ein Gartenhäuschen, unter Obstbäumen auch ein Bienenhaus. Auf der Nordseite des Grundstücks wurde ein größerer Schuppen errichtet, in dem u.a. auch Hühner gehalten wurden. Gemüse, Obst, Honig, Eier dienten der Eigenversorgung und waren ein Teil der Lebensgrundlage, war doch das gemeinsame „Einkommen“ der Lehrerinnen, die als Nonnen der persönlichen Besitzlosigkeit verpflichtet waren, auch für damalige Verhältnisse sehr knapp bemessen. Haushalt und Garten waren die Aufgabe und das „Reich“ von M. Alverina Hein, die bereits ein Jahr später von M. Arimathäa Birling abgelöst wurde. Schwester Arimathäa war noch in den Sechziger Jahren in Glonn tätig.
In ihren hellen Klassenzimmern saßen die Mädchen jeweils zu vieren in ihren Schulbänken. Das Lehrerpult stand auf einem erhöhten Podest, von wo die Lehrerin ihre Klasse unter strenger Ordnung hielten. Durch Lob und Tadel wurde der Eifer der Schülerinnen angeregt. Bei wiederholten guten Leistungen erhielten sie kleine Bilder („Fleißbilder“) für die damalige Zeit keine Alltäglichkeit, während sie bei zu häufigem Schwätzen vor der Klasse auf dem Boden des Podestes Platz nehmen mussten. Körperliche Strafen („Tatzen“) waren nicht verboten, gab es aber, wie ehemalige Schülerinnen aus jener Zeit erzählen, nur sehr selten.
Die Klassenlehrerinnen unterrichteten ihre Schülerinnen auch in einfachen Handarbeiten (Stricken, Nähen, Häkeln). Um diesen Unterrichtsbereich stärker zu fördern, schickte das Mutterkloster 1908 – ohne Entschädigung – eine eigene Handarbeitslehrerin, die „geprüfte Arbeitslehrerin“, M. Desideria Schilling; sie war 1876 geboren und stammte aus dem Bezirk Memmingen. Um trotz der gleich gebliebenen „Personalexigenz“ zum Unterhalt der kleinen Gemeinschaft beizutragen, führte sie eine zusätzliche freiwillige Handarbeitsschule ein, an der die Mädchen gegen Bezahlung teilnehmen konnten. Natürlich war das Kloster bestrebt, dass möglichst viele Schülerinnen der oberen Abteilung diese Möglichkeit nutzten.

Schulkinder aus Hörmannsdorf um 1910
Neu und anfangs sicher auch ungewohnt war es für die Mädchen, dass sie nun nicht mehr von einem Lehrer, sondern von Lehrerinnen unterrichtet wurden. Manche Glonner, besonders wohl auch Lehrer Strauß von der Knabenschule, der als Organist auch für die Kirchenmusik zuständig war, erhofften sich von den jungen Klosterfrauen eine stimmliche Verstärkung für den Kirchenchor. Darin wurden sie aber enttäuscht: Die Nonnen blieben auch beim sonntäglichen Gottesdienst lieber bei ihren Schülerinnen, um mit ihnen gemeinsam in Gebet und Kirchenlied die Messe mitzufeiern und natürlich auch auf ihr Wohlverhalten zu achten. Auch werktags war es – genauso wie für die Buben der Schulnachbarschaft – üblich, vor der Schule täglich die Messe zu besuchen, und die Lehrerinnen achteten natürlich streng darauf, dass dieser Brauch auch möglichst vollzählig eingehalten wurde. Da mußten sich manche Buben und Mädchen schon recht früh auf den Weg machen, dauerte doch der Schulweg z.B. für die Hermannsdorfer Kinder dreiviertel Stunden. Und natürlich musste – in einer Zeit, in der es noch kaum ein Auto und keinen Schulbus gab – der Weg zu Fuß und in der meisten Zeit des Jahres barfuß zurückgelegt werden. An Schuhen hatte die meisten Kinder nur ein Paar, und das musste für den Winter geschont werden.
Die Zahl der Schülerinnen war inzwischen langsam, aber stetig gestiegen. 1908 saßen in der Oberstufe 79 Kinder. Um den Platzmangel zu beheben, musste die Gemeinde mit Beschluss vom 7. Oktober 1908 „eine zwei- und eine dreisitzige Bank“ anschaffen. Gleichzeitig stellte sie in einem Schreiben an das Bezirksamt fest: „Da sich die Schülerzahl jedoch ständig mehrt, wird in nächster Zeit Beschluss darüber gefasst werden, ob bis zum Beginn des nächsten Schuljahres ein dritter Lehrsaal eingerichtet wird“. Der Raum – und auch ein vierter Saal – waren natürlich längst vorhanden; es fehlte nur die Einrichtung – und die Genehmigung für die zusätzliche Schulstelle. Es gab wieder einen längeren Briefwechsel und die nötigen Beschlüsse von Gemeindeausschuss (Gemeinderat) und Schulpflegschaft. Und nachdem schließlich auch die Gemeindeumlage (Steuer) erhöht worden war (die Erhöhung war auch durch andere Verpflichtungen bedingt), wurde von der Kgl. Regierung von Oberbayern – Kammer des Innern – mit Schreiben vom 24. April 1909 „die Errichtung einer dritten Schulstelle an der Mädchenschule in Glonn von schulaufsichtswegen verfügt, nachdem die Übernahme der hierfür erforderlichen Mittel… ausgewiesen erscheint.“ Das Mutterkloster in Augsburg schickte zunächst zum Schuljahresbeginn 1909 M. Ermelinde Bosch, die bereits am 2. November von M. Pia Oßwald abgelöst wurde. Die Schülerjahrgänge konnten nun in drei „Abteilungen“ eingeteilt werden:
Unterstufe 1./2. Jg. 36 Mädchen
Lehrerin M. Irenäa Hell
Mittelstufe 3./4. Jg. 46 Mädchen
Lehrerin M. Ermelinde Bosch
Oberstufe 5./7. Jg. 53 Mädchen
Lehrerin M. Electa Schilling
Sonntagsschule 53 Mädchen
Lehrerin M. Electa Schilling
In der Schulchronik wird nun erstmals auch eine Praktikantin erwähnt, nämlich Klara Lebsche, die Schwester des späteren Professors Dr. Max Lebsche. Sie wurde der Oberstufe zugeteilt und konnte so die Oberin und Leiterin der Schule entlasten, die zu Beginn des darauffolgenden Jahres zur Hauptlehrerin ernannt wurde.
1910 gab es wieder einen Wechsel in der Lehrerschaft: M. Irenäa Hell wurde als Oberin an die neuerrichtete Filiale in Mering bei Augsburg berufen. Für sie kam die junge M. Bernardine Ausberger, 1988 in Bayersried im Bezirksamt Krumbach geboren, die eben im Oktober 1910 ihre Anstellungsprüfung bestanden hatte. Schwester Bernardine, die später als Oberin nachfolgte, lebte bis zu ihrem Tod 1969 in Glonn. Die Unterrichtsszeiten der Schülerinnen waren anders eingeteilt als heute. Die Mädchen hatten am Vormittag und am Nachmittag, nämlich von 8.00 – 11.00 Uhr und von 13.00 – 15.00 Uhr Schule. Am Samstag Nachmittag war frei. Schulfrei war auch der Donnerstag. In der Mittagszeit gingen die Mädchen natürlich nach Hause. Nur wenn der lange Schulweg das nicht erlaubte, blieben sie in Glonn, bei Verwandten oder Bekannten, oder sie bekamen auch in einer Wirtschaft um ein Zehnerl einen Teller Suppe.
Auch die Klosterschule war natürlich nicht sich selbst überlassen, sondern unterstand der Schulaufsicht. Regelmäßig kam gegen Ende des Schuljahres (30. April) der Distriktschulinspektor Lochner, um in Schluss- und Entlassungsprüfungen die Leistungen der Schülerinnen – und indirekt auch der Lehrerinnen – kennenzulernen. Bei diesen Prüfungen waren in der Regel auch der Bürgermeister und zwei Vertreter des Schulpflegschaftsausschusses anwesend. 1911 wurde Lochner in seinem Amt als Distriktsschulinspektor für den Schulbezirk Ebersberg II von Paul Scherrer, Pfarrer in Zorneding, abgelöst. – In gewissen Abständen kam der Schulinspektor auch zu einer außerordentlichen Visitation, um das Schulleben und den Schulbetrieb zu überprüfen.
Seit 1872 gab es auf der Ebene der Regierungsbezirke (damals Kreise genannt) die Einrichtung der Kreisschulinspektoren. Jedem Kreisschulinspektor waren mehrere Schulbezirke zugewiesen, (ähnlich verhält es sich auch heute in der Schulabteilung der Bezirksregierung). Zu Kreisschulinspektoren wurden ausgewiesene Fachleute berufen. Sie verwalteten ihren Bereich nicht nur vom Schreibtisch, sondern besuchten gelegentlich auch die Schulen vor Ort. So visitierte Kreisschulrat Greisl am 21. Juni 1904 auch die noch junge Schule in Glonn, nachdem bereits einige Monate vorher Bezirksamtmann Wagner zusammen mit dem Distriktschulinspektor der Schule einen Besuch abgestattet hatte. – Ab Mai 1913 war Kreisschulrat Eböck für Ebersberg II zuständig, der bereits am 10. Juli auch Glonn besuchte.
Für die Schülerinnen waren diese Besuche sicher jeweils ein aufregendes Ereignis.
Zum Schuljahresbeginn 1913 erhielten die Schulen in Oberbayern auch eine neue „Schul- und Lehrordnung“ (Lehrplan). Zu ihrer Einführung wurden die Lehrer in den folgenden Monaten zu mehreren Konferenzen in Grafing zusammengerufen – darunter am 25. Sept. auch eine religionspädagogische Konferenz -, an denen erstmals auch die Klosterfrauen aus Glonn teilnahmen.
Im Schulleben spielen natürlich auch besondere Ereignisse eine Rolle. Am 24. Dezember 1909 wurde der Geburtstag von Geistl. Rat Joseph Späth gefeiert. Am Vortag war er 84 Jahre alt geworden. Zwei Wochen später, am 9. Jan. 1910, starb er, betrauert von der Gemeinde. Vier Monate später wurde der neue Pfarrer Bartholomäus Schrall in Glonn empfangen und eingeführt, auch für die Kinder sicher ein frohes Ereignis.
Auch das Leben und Wirken hochgestellter Persönlichkeiten spiegelt sich in der Schulgeschichte. So wurde am 12. März 1911 der 90. Geburtstag „Seiner Kgl. Hoheit, des Prinzregenten Luitpold“ und am 7. Januar 1914 das Geburtsfest von König Ludwig III. gefeiert. Sicher darf man sich dabei wohl keine großen Feierlichkeiten in der Schule vorstellen, aber es wurde in ehrenden Worten, in ein paar Gedichten und Liedern an das Leben und Wirken dieser Männer der Zeitgeschichte erinnert. So war es auch, als 1913 der Hohenzollern-Kaiser Wilhelm II. sein 25-jähriges Thronjubiläum feierte. Im selben Jahr wurde auch der 100. Jahrestag der Völkerschlacht von Leipzig begangen. Es war die Zeit, in der eine patriotische Gesinnung in der Bevölkerung eine Selbstverständlichkeit war. Sie artete freilich manchmal auch in übertrieben national eingefärbten Bekundungen (Sedanfeiern) aus, die aber in der Glonner Schulgeschichte keine Rolle spielten.
Im Schulleben gab es natürlich auch weniger erfreuliche Vorkommnisse. So ist für die Zeit vom 1.-14.Mai 1913 ein vollkommener Unterrichtsausfall vermerkt. Grund war eine Masernepidemie, von der die Mehrzahl der Schülerinnen betroffen war. Schließlich gab es 1914 eine für die Schüler sicher zunächst erfreuliche Maßnahme, die aber einen ernsten Hintergrund mit schwerwiegenden Folgen hatte: Die Sommerferien wurden wegen des Ausbruchs des 1. Weltkriegs bis 1. Oktober verlängert. Der 1. August war für Deutschland der Tag des Kriegsbeginns. Es war der Tag, an dem in Lena-Christis Erzählung „Rumplhanni“ die jungen Männer im Wirtshaus fröhlichen Abschied feiern, um in den Krieg zu ziehen, an dem aber auch daheim die Frauen und Mütter ahnungsvoll und schweren Herzens auf den kommenden Tag warten.
Und es war der Tag. von dem der Schriftsteller Wugg Retzer in seiner Erzählung „Samstag 1914″ (aus: „Der Stier von Pöcking“) schreibt: „Der Samstag, den ich meine, ist ein Tag gewesen wie aus dem Bilderbuch, mit der schönsten Bauernsonne über dem Dorf vom Taganläuten bis in die Nacht hinein.“ Und am Schluss: „Wenn mir damals einer gesagt hätte, dass es nach dieser Nacht nie wieder so sein wird, wie es vorher gewesen ist, hätte mir auch nicht ängstlicher zumut sein können“
Glonn mit Schloß Zinneberg um 1910 .
Die Schule in schwerer Zeit (1. Weltkrieg)
Zunächst war der Schulbetrieb an der Mädchenschule durch den Krieg nicht betroffen. Während die Knabenschule bereits am 1. Kriegstag auf ihren Hilfslehrer Eduard Segmüller wegen dessen freiwilliger Meldung zum Heer verzichten musste und auch später durch Aushilfen und Einberufungen (u.a. 1915 Lehrer Reisacher) ein häufiger Lehrerwechsel die Schule belastete, lief der Unterricht bei den Klosterfrauen wie bisher weiter. Doch schließlich waren auch hier die Auswirkungen des Krieges zu spüren. Seltsamerweise waren es zunächst die eintreffenden Siegesmeldungen, die den Unterricht beeinträchtigten. Für den 20. Februar 1915 meldet die Schulchronik: „Unterrichtsausfall anläßlich des großen Sieges nach der 10-tägigen Winterschlacht in den Masuren“. Die Schüler kamen am Morgen in die Schule, erhielten die Kunde von dem „großen“ Ereignis und nach einer kurzen patriotischen Feier wurden sie nach Hause geschickt. Es war natürlich keine selbstherrliche Entscheidung der Glonner Klosterfrauen, sondern eine von oben verfügte Maßnahme. Kurios mutet uns heute an, wie Schüler und Lehrer damals von dem Ereignis erfuhren. Eine Schülerin jener Zeit, heute eine der ältesten Gemeindebürgerinnen, Nanni Messerer aus Kreuz, erinnert sich: Baron Büssing, der als einer von wenigen bereits ein Telephon besaß, ließ beim Eintreffen einer Siegesmeldung vor seinem Schloss in Zinneberg eine weiß-blaue Fahne hissen. Damals waren die Hänge um das Schloss nicht bewaldet. Wenn die Buben und Mädchen daher auf ihrem Heimweg von der Schule die Fahne sahen, wussten sie, dass am nächsten Tag wieder einmal die Schule ausfiel.
Die schulfreien Tage häuften sich, und ihre Auflistung liest sich beinahe wie ein Tagebuch des Krieges: Sieg Hindenburgs in Rußland (8.5.1915), Rückeroberung der Festung Przmysl (5.6.1915), Rückeroberung von Lemberg (26.6.1915), Eroberung von Nisch (10.11.1915), Eroberung von Gallipoli (14.1.1916), Seesieg am Skagerrak (6.6.1916), Einnahme von Bukarest (9.12.1916).

1./2.Klasse 1916 mit Sr.M.Bernardine Ausberger und Pfarrer Schrall
Danach endet die Liste der „großen Siege“. Dass es sich dabei nicht nur um bei den Schülern sicher willkommene Festgeschenke zur Stärkung der Begeisterung handelte, zeigen weitere Unterrichtsausfälle, die mit den fortschreitenden Kriegsjahren vermerkt sind: 1915 begannen die Sommerferien wegen der vielen Schulversäumnisse bereits am 17. Juli. Erntearbeiten standen an, viele Bauernsöhne und Knechte waren an der Front und so mussten die Buben und Mädchen die harte Arbeit der Erwachsenen leisten. Im Herbst entfiel dann die Nachmittagsschule, im darauffolgenden Schuljahr ist nur noch von Halbtagsschule die Rede, die Sommerferien wurden bis 2. Oktober und die Weihnachtsferien bis 7. Januar verlängert. Im Winter 1918 fiel die Schule an 2 Tagen wegen „heftigen Schneefalls“ aus – kräftige Männer, die die Wege räumen konnten, gab es in der Heimat kaum noch. Und im November blieb die Schule wegen einer Grippeepidemie geschlossen – 75 % der Schülerinnen waren erkrankt, ein Mädchen der Sonntagsschule wurde von der Krankheit dahingerafft.
Bereits 1915 kamen „Kriegskinder“ aus München und wurden in die großen Klassen mitaufgenommen. Es waren wohl Kinder, deren Väter im Krieg gefallen waren und deren Mütter die Kinder kaum noch ernähren konnten. Sie wurden in den kinderreichen Familien auf den Bauernhöfen und bei den Glonner Handwerkern aufgenommen und konnten sich endlich wieder satt essen.
Aber auch mitten im Krieg wurden Feiern zu festlichen Anlässen nicht vergessen: so am 24. Juni 1917 das Silberne Priesterjubiläum von Pfarrer B. Schrall und am 22. Februar 1918 die Goldene Hochzeit „Seiner Majestät des Königs Ludwig III. und I.M. der Königin Maria Theresia von Bayern“. Auch Theater wurde gespielt. Im Dezember 1915 führten die Mädchen das Stück ..Elisabeth von Thüringen“ auf. im folgenden Jahr hieß der Titel „Rosa von Tannenberg“. Auch diese frohen Ereignisse im Schulalltag waren nicht losgelöst von der kriegerischen Wirklichkeit: Der Erlös wurde verwendet, den Soldaten der Heimat Weihnachtsgaben zu schicken. – Schließlich wurden die Schüler auf eine unerwartete Art in die Kriegswirtschaft miteinbezogen: Im letzten Kriegsjahr wurden Brennesseln gesammelt, um aus ihnen Nesselstoffe fertigen zu können. Sie kamen wenigstens Menschen zu Nutzen, nachdem es an anderen Rohstoffen fehlte. Schließlich ist im November 1918 auch in der Schulchronik der Waffenstillstand vermerkt. Von einer Schulfeier ist nicht die Rede. Der Krieg war – endlich – zu Ende. .
Die Zeit der Weimarer Republik
1918 – 1933
Die politischen Wirren nach dem Ende des Ersten Weltkrieges wirkten sich auf den Schulbetrieb in Glonn kaum aus; ganz unbeachtet blieben sie freilich auch auf dem Land nicht. Zunächst war es ein in allem Kriegsund Nachkriegselend froh machendes Ereignis, das auch in der Schulchronik vermerkt ist: Am 15. Januar 1919 beging die Gemeinde im Neuwirts-Saal ein Fest zu Ehren der heimkehrenden Soldaten. Auch die Schulen beteiligten sich an dieser Feier, der Unterricht fiel aus. Einige Wochen danach traf eine schreckliche Nachricht ein: Der bayerische Ministerpräsident Kurt Eisner war auf dem Weg zum Landtag auf offener Straße von dem Leutnant Graf Arco-Valley erschossen worden. In den nun folgenden Unruhen der Räterepublik kamen Trupps der „Roten Armee“ mehrmals auch nach Glonn, um auf dem Gutshof des Baron Büssing in Hermannsdorf Lebensmittel zu requirieren. Eltern waren in Sorge, dass ihren Kindern auf dem Schulweg Gefahr drohen könnte.
Am 1. Januar 1919 wurde in Bayern durch Erlass des Ministers Hoffmann die geistliche Schulaufsicht aufgehoben, die – wie schon erwähnt – bereits in früheren Jahren gelockert worden war. Freilich konnte die nun staatliche Schulaufsicht nicht von einem Tag auf den anderen vollständig organisiert werden. So entfielen die üblichen, bisher vom Distriktschulinspektor geleiteten Schluss- und Entlassprüfungen. Die Entlasszeugnisse wurden von der Lehrerin und dem Bürgermeister unterzeichnet. Est 1920 wurde ein Bezirksschulrat etabliert. Es war der bisherige Hauptlehrer Georg Gstaltmayr aus Grafing, der nun die Zeugnisse statt des Bürgermeisters zu unterzeichnen hatte. 1923 wurde er von Max Stoll, bisher Bezirksoberlehrer in Wasserburg, abgelöst. Stoll wohnte in Griesstätt, einem Dorf am Inn, zwischen Rosenheim und Wasserburg gelegen. Ehemalige Lehrerinnen können sich noch erinnern, wie der Bezirksschulrat mit dem Fahrrad die Schulen in seinem neuen Wirkungskreis besuchte. Am 1. Februar 1923 kam er so auch nach Glonn, um an der Mädchenschule nach dem Rechten zu sehen.

Beispiel von Entlassungszeugnissen
1922 erschien für die „Volksfortbildungsschule“ (die frühere Sonntagsschule) ein neuer Lehrplan, der neben der Vertiefung des Lernstoffes der „Volkshauptschule“ vor allem die „Heimatlebenskunde“ in den Mittelpunkt stellte. Um das Ziel zu erreichen, sollte ein dreistündiger Unterricht an einem Werktag eingerichtet werden. Erst nach längerer Verzögerung und Einsprüchen der Schulpflegschaft konnte diese Reform verwirklicht werden.
Auch für die klösterlichen Lehrerinnen selbst gab es einige Änderungen. Ab 1920 wurde für sie erstmals ein staatliches Gehalt bezahlt. Für die „Personalexigenz“ war nicht mehr die Gemeinde zuständig. Es gab ein Jahresgehalt von 2100 M, sowie eine Teuerungszulage von 1800 M. Ein Jahr später waren es bereits 6500 M, ein Zeichen der beginnenden Geldentwertung. Wieder ein Jahr später wurden die klösterlichen Lehrkräfte in die Beamtenklasse eingestuft. Am 12. April 1923 wurde M. Pia Oswald nach Augsburg Oberhausen versetzt. An ihre Stelle traten in den folgenden Jahren abwechselnd mehrere Lehrkräfte, bis schließlich 1927 erstmals M. Richarda Schwertschlager nach Glonn kam. ln den Jahren nach dem Krieg ging die Schülerzahl vor allem in den unteren Jahrgängen deutlich zurück; der Grund lag wohl darin, dass nicht wenige aus der jungen Vätergeneration im Krieg ihr Leben lassen mussten.
Schülerstand im Schuljahr 1924/25
Unterstufe 1./2. Jg. 23 Mädchen
Mittelstufe 3./4. Jg. 30 Mädchen
Oberstufe 5./7. Jg. 61 Mädchen
Volksfortbildungsschule
1./2. Jg. 42 Mädchen
Jg. 21 Mädchen
Als am 17. Oktober 1924 Bezirksamtmann Dr. Johannes den Glonner Schulen einen Besuch abstattete, schlug er deshalb vor, die Unterstufe beider Schulen zusammenzulegen. In ihren Stellungnahmen erklärten sich Gemeinderat und Schulpflegschaft mit dem Vorschlag einverstanden, unter der Voraussetzung, dass die Führung der Klasse bei der klösterlichen Lehrkraft verbliebe. Hauptlehrer Reisacher von der Knabenschule war aus naheliegenden Gründen gegen diesen Vorschlag. Schließlich verzichtete die Regierung auf die Zusammenlegung, einerseits um die Zahl der „brotlosen weltlichen Lehrer nicht zu vermehren“, andererseits aber auch, um die Stiftungsurkunde der Mädchenschule zu achten. Es war eine Entscheidung, die sicher den Kindern zugute kam.
Im Jahr 1926 waren es 25 Jahre, seit Glonn zum Markt erhoben worden war. Aus diesem Anlass stattete der Regierungsspräsident von Oberbayern der Gemeinde einen Besuch ab. Auch die beiden Schulen standen auf seinem Besuchsprogramm, für die Buben und Mädchen sicher ein aufregendes Ereignis. 1927 erhielt auch die Volkshauptschule (wie die Volksschule damals hieß) einen neuen Lehrplan. Zur Einführungskonferenz in Grafing kam Regierungsschulrat Eiböck, um die Lehrkräfte mit den Intentionen des Planes vertraut zu machen.
Im gleichen Jahr gab es an der Mädchenschule eine innerschulische Veränderung. Die Oberin M. Electa Schilling, die 41 Jahre in der Oberstufe unterrichtet hatte, „wagte es, den Unterricht der Kleinsten zu übernehmen“, wie die Chronik besonders vermerkt. Es war für die 63-jährige sicher eine große Umstellung. Am 6. November wurden es schließlich 25 Jahre, die sie in Glonn unterrichtet hatte. Zu diesem Anlass erhielt sie von der Gemeinde Glonn ein Anerkennungsschreiben mit einem Geldgeschenk von 100 M, nach der Währungsreform von 1924 ein sicher nicht unerheblicher Betrag als Zeichen der Wertschätzung für ihr erzieherisches Wirken.
Die Schülerzahlen verteilten sich nun wie folgt:
Unterstufe 1./2. Jg. 36 Mädchen
M. Electa Schilling
Mittelstufe 3./4. Jg. 21 Mädchen
M. Richarda Schwertschlager
Oberstufe 5.-7.Jg. 41 Mädchen
M. Bernardine Ausberger
Die geburtenschwachen Jahrgänge der Kriegsjahre waren nun in der Mittelstufe. In dieser Zeit kam die wirtschaftliche Blüte, die u.a. durch die Währungsreform eingeleitet worden war, zum Stocken, die Wirtschaftskrise nach 1928 zeichnete sich ab. Der Staat mußte sparen. So kam es, dass am 19.4.1928 die Hiobsbotschaft eintraf: Wegen der geringen Kinderzahl wird die Mittelstufe aufgehoben. Es werden wieder die Jahrgänge 1-3 und 4-7 zsuammenge- fasst. M. Richarda Schwertschlager wurde nach Augsburg-Pfersee versetzt. Die Schulchronik vermerkt an dieser Stelle: „Es ist schon schade, daß das Vaterland auch in dieser Weise einsparen mus.“ Drei Monate später traf auch die Knabenschule das gleiche Schicksal.
Ein erfreulicher Tag für Glonn und für die Klosterschule war der 1. Mai 1930. An diesem Tag wurde in einem der freigewordenen Räume erstmals in der Gemeinde ein Kindergarten eröffnet. Für die Betreuung der Kleinsten kam M. Gunda Lederer, die einige Jahre später von M. Edelinde abgelöst wurde. Bei ihr hatten viele der heutigen Glonner Männer und Frauen ihre Kindergartenjahre erlebt.
Nach den Sommerferien 1931 blieb die Schule wieder einmal geschlossen – für eine ganze Woche. Diesmal war es kein Anlass zur Freude – die Kinderlähmung ging um. Drei noch nicht schulpflichtige Kinder waren erkrankt, von denen eines starb.
In der gleichen Zeit konnte M. Electa Schilling ihre Klasse nicht mehr unterrichten. Sie war erkrankt und wurde für den Rest des Schuljahres von einer Aushilfslehrerin vertreten. Am Schuljahresende 1932 (6. April) trat sie in den Ruhestand. 50 Jahre war sie im Schuldienst gestanden, davon 30 Jahre in Glonn. Die Gemeinde ehrte sie mit einer würdigen und von allen tief empfundenen Abschiedsfeier.
1933 – Am 21. März gedachte man auch in der Mädchenschule der Eröffnung des Reichstages in Potsdam, ein bedeutungsschwerer Einschnitt in der Geschichte unseres Landes. Drohende Unheilswolken zogen am Himmel auf, doch ihr Erahnen wurde zunächst von Trommelwirbel und Fanfarenklang, von flatternden Fahnen und ersten Erfolgsmeldungen überdeckt.

Kindergarten 1932 .
Die Zeit der nationalsozialistischen Diktatur
Schule und Nationalsozialismus
Schon bald nach der Ernennung Hitlers zum Reichskanzler ließen die neuen Machthaber keinen Zweifel daran, dass es im schulischen Bereich ihr wichtigstes Ziel war, die Jugend im Geist des Nationalsozialismus zu erziehen. Man wollte eine gewalttätige, unerschrockene, ja auch grausame Jugend heranwachsen sehen, ihr die Überzeugung geben, auch anderen überlegen zu sein. Die körperliche, athletische Ausbildung stand im Vordergrund, intellektuelle Erziehung wurde als zweitrangig betrachtet. „Mit Wissen verderbe ich mir nur die Jugend“, hieß es in einem der Aufrufe.
Die Schule der Weimarer Zeit war nicht darauf angelegt. diese Ziele zu fördern. Deshalb versuchte man die Jugendlichen für die Jugendgruppen der Partei (NSDAP) zu gewinnen, anfangs freiwillig, später unter sich ständig verstärkendem Druck. Hier galt allein das Führerprinzip, die jeweils Untergeordneten hatten absolut zu gehorchen. Freie Meinung galt als verdächtig, demokratische Entscheidungen waren nicht geduldet.
..Die Schule hat den politischen Menschen zu bilden!“ forderte Innenminister Frick am 9.05.1933. Gemeint war natürlich der politische Mensch im Sinne der NS- Ideologie. Um das zu erreichen, musste die Gleichschaltung allen öffentlichen Lebens auch auf die Schule übertragen werden. Betroffen waren das Kultusministerium, die Lehrerverbände, die Lehrerschaft und der Unterricht. Um Schule und Unterricht zu beeinflussen, wurden besondere Schulfeiern, Gedenktage eingeführt, neue Lehrmittel (Schulbücher) hergestellt, Schüler- und Lehrerbüchereien nach unerwünschten Büchern durchforstet und der Hitlerjugend Einfluß durch Lagererziehung in Schullandheimen gewährt. Im Unterricht bekam das Fach Geschichte eine „Leitfunktion“ mit dem Ziel, ein bestimmtes, von der NS-Ideologie beeinflusstes Geschichtsbild zu vermitteln. In diesem Sinne wurde bereits elf Tage nach der Machtergreifung unter dem Motto „Aufbruch der deutschen Nation“ ein sechswöchiger Geschichtslehrgang eingeführt. In ihm sollte Vaterlandsliebe erweckt werden am Beispiel von ..Helden, denen die Ehre des Vaterlandes mehr als das eigene Leben gilt“ (Zitat Schulchronik). Feiern zum Gedenken des bei der Besetzung des Ruhrgebietes ums Leben gekommenen Albert Schlageter sollten beispielgebend wirken. In einem neuen Lehrplan wurde 1936 der Schwerpunkt auf das Germanentum gelegt, die Geschichte des griechisch-römischen Altertums verschwand aus den Lehrbüchern der 5.-7. Jahrgangsstufe. Ein weiteres Ziel der Gleichschaltung war die Entkonfessionalisierung der Schule. Die bisher vorherrschende Bekenntnisschule wurde von der Simultanschule ersetzt, in der mehr und mehr religiös geprägtes Gedankengut verdrängt wurde. Letztes Ziel war. die Religion ganz aus der Schule hinauszudrängen. Dass schließlich in dieser Schule kirchliche oder klösterliche Lehrkräfte keinen Platz mehr hatten, war eine unausweichliche Folge.
Wie weit nun die einzelnen Ziele erreicht wurden, war örtlich recht unterschiedlich und hing nicht zuletzt von der Überzeugung und der Bereitschaft der Lehrer ab. Offene Ablehnung konnte zu harter Bestrafung oder auch zur Entlassung aus dem Schuldienst führen.
Wie verlief nun die Entwicklung an der Mädchenschule in Glonn?
Anfangs scheint hier durchaus die Bereitschaft vorhanden gewesen zu sein, den Unterricht nach den neuen Gegebenheiten auszurichten. Man war wohl enttäuscht von den politischen Verwirrungen und Intrigen am Ende der Weimarer Republik, von der hoffnungslosen wirtschaftlichen Lage, und sah in dem „nationalen Aufbruch“, wie die neuen Herren ihre Machtübernahme glorifizierend nannten, einen Hoffnungsschimmer für eine bessere Zukunft, zumal die Machthaber ihre Herrschaft mit einem traditionell-konservativen und pseudoreligiösen Mäntelchen umgaben.
In einer Beilage zur Schulchronik heißt es denn: „Ohne Vaterlandsgeschichte keine Vaterlandsliebe! So wurden die Schülerinnen in allen Gesinnungsfächern eingeführt in die Bedeutung und Größe des historischen Geschehens der nationalen Revolution, um in der heranwachsenden Jugend den Sinn für des Volkes Ehre und in jedem Mädchen die Gefühle der Vaterlandsliebe und treuer Pflichterfüllung zu wecken.“ Hehre Worte, die zeigen, dass der Zweck der Maßnahmen, nämlich die idealistische Gesinnung der Jugend, aber auch der Erwachsenen, der Lehrerinnen und Lehrer, für die Ziele der NS-Ideologie zu missbrauchen, noch nicht erkannt wurde. Vom heutigen Kenntnisstand aus zu urteilen – oder auch zu verurteilen – fällt leicht. Wer aber kann von sich guten Gewissens behaupten, er hätte damals von Anfang an Widerstand geleistet? Oder, wie Richard von Weizsäcker in seinem Erinnerungsband „Vier Zeiten“ schreibt: „Wer will über wen den Stab brechen? … Zur Nachsicht gehört die Einsicht, daß die Kenntnis der Geschichte von uns verlangt, damaliges mit heutigem Bewußtsein nicht gleichzusetzen.“
Der sechswöchige Geschichtsunterricht wurde also durchgeführt, der 1. Mai war als „Tag der Arbeit“ erstmals schulfrei, am darauffolgenden Tag beginnt der Unterrricht mit einer „Stunde der deutschen Arbeit“. Im Sommer wurde mit einer Sonnwendfeier altes Brauchtum wiederbelebt, im November war die Schuljugend aufgerufen, sich an der Sammlung für das „Winterhilfswerk“ zu beteiligen: die Sammelbüchsen zeigten „namhafte Beträge. Auch Strickereiopfer für die armen Grenzgebiete der Ostmark sind reichlich“, rühmt die Schulchronik den Opfersinn der Kinder. Die Schulschlussfeier wurde auf Anordnung des Kultusministeriums als „nationale Feierstunde“ mit Liedern, Sprechchören, Volkstänzen gestaltet. 1934 wurde am ersten Schultag nach den Sommerferien (5. September) ein „Staatsjugendtag“ eingeführt. Die Jugendorganisationen der Partei (HJ und BDM) waren nun Staatsjugend, der Druck auf die Jugendlichen zum Eintritt wurde stärker. Andere Jugendorganisationen (auch kirchliche) wurden verboten.
Am 01.10.1934 ging Pfarrer und Dekan Schrall in den Ruhestand. Sieben Wochen später wurde sein Nachfolger Otto Boxhorn in sein Amt eingeführt. Sein erster Besuch in der Schule zeigte „einen väterlichen Kinderfreund“. Pfarrer Boxhorn war vorher fünfzehn Jahre Direktor der Knabenerziehungsanstalt in Grunertshofen (Landkreis Fürstenfeldbruck). Mit ihm hat sich wohl die Abwehr des Einflusses der NS- Ideologie in der Schule verstärkt. Pfarrer Boxhorn war es auch, der in seinen sonntäglichen Predigten mit kräftiger Stimme manch kritisches Wort über die neuen Verhältnisse wagte. Der bereits 1933 staatlich verordnete Hitlergruß wurde in der Schule nur gesprochen, wenn es wegen der Anwesenheit schulfremder Personen nicht zu umgehen war, erinnert sich eine ehemalige Schülerin jener Zeit. Rosa Obermaier (verheiratete Steinbeißer). Das obligatorische Hitlerbild hing nicht in den Klassenzimmern, sondern an unauffälliger Stelle in den Gängen. Und als auch in Glonn der „Bund deutscher Madel” (BDM) gegründet wurde, blieb die Zahl der Mitglieder lange Zeit recht gering. Viele Mädchen blieben der verbotenen Landjugendgruppe ..Agnes“ treu und sie trafen sich heimlich unter der Leitung ihrer Führerin Mathilde Lebsche, der Schwester von Prof. Dr. Max Lebsche. Nach ihrer Schulentlassung hatten Mädchen, die nicht dem BDM angehörten, freilich mitunter Schwierigkeiten, eine Lehrstelle zu finden, wie es Rosa Obermaier bei der Sparkasse erging.
Die Vorboten des Krieges waren recht früh zu spüren. Bereits im Oktober 1934 musste die Schulleiterin, Oberin M. Bernardine Ausberger, an einem Luftschutzkurs teilnehmen. Im darauffolgenden Jahr mussten sich Schüler an einer Altmetallsammlung beteiligen.
Am 01.03.1935 verunglückte Kultusminister Schemm bei einem Flugzeugabsturz tödlich. Er war Gründer des NS-Lehrerbundes (dem sich die meisten Lehrer nur sehr zögernd anschlossen) und seit 1933 der erste nationalsozialistische Kultusminister in Bayern. Zu seinem Gedenken wurden vom Staat Plaketten geprägt. Auch in der Mädchenschule Glonn mussten diese „Schemmplaketten“ verkauft werden.
Am 17.04.1935 bekam auch die Mädchenschule erstmals ein Radio. Natürlich gab es noch keine Schulfunksendungen. Vielmehr sollten die Schülerinnen durch die Übertragung von nationalsozialistisch geprägten Sendungen beinflusst werden. Hilterreden hörten die Mädchen in der Schule freilich nicht. Doch am 02.10.1935 wurde die Feier zur Überführung der Gebeine des 1934 verstorbenen Reichspäsidenten Hindenburg nach Tannenberg (Ostpreußen) angehört. Und eine Woche später wurde die Eröffnung des Winterhilfswerks übertragen.
Am letzten Schultag vor den Weihnachtsferien gab es eine schlichte Weihnachtsfeier, und der Schulschluss im April wurde für alle Jahrgänge gemeinsam im Kindergartensaal gefeiert.
Am 22.07.1936 starb M. Electa Schilling, die als Oberin seit Gründung der Mädchenschule das Kloster geleitet hatte. Die letzten Lebensjahre im Ruhestand hatte sie still und zurückgezogen, aber doch in mütterlicher Verbundenheit mit ihren ehemaligen Schülerinnen gelebt, die nun bewegt von ihr am Grabe Abschied nahmen.
Am 18.02.1937 musste erstmals in der Schule eine Luftschutzübung durchgeführt werden. Nicht wenige sahen darin wohl ein deutliches Signal dafür, dass die politische Entwicklung auf einen Krieg zusteuerte. .
Abberufung der klösterlichen Lehrkräfte und Auflösung der Mädchenschule
Nach dem Tod von Kultusminister Schemm übernahm Gauleiter und Innenminister Wagner 1936 auch das Kulturressort. Unter ihm wurde im Ministerium ein nationalsozialistischer Stab etabliert, der die weitere Gleichschaltung und Entkonfessionalisierung der Schule verstärkt vorantrieb. In diese Zeit fiel das (vorläufige) Ende der Glonner Mädchenschule. Die klösterlichen Lehrerinnen wurden aus der Schule verbannt.
Bereits am 22.05.1936 wurde auf einer Schulungskonferenz des NS-Lehrerbundes im Zirkus Krone der Abbau der klösterlichen Lehrkräfte angekündigt. Am 1. August wurden in Glonn Knaben- und Mädchenschule zusammengeschlossen. Hauptlehrerin M. Bernardine Ausberger verlor ihr Amt. Als Schulleiter wurde Hauptlehrer Max Höllweger von der Knabenschule eingesetzt, sein Stellvertreter wurde Lehrer Max Aichlmayer. Im Oktober war in den Zeitungen zu lesen, dass ab 1.1.1937 mit dem Abbau der klösterlichen Lehrkräfte zu rechnen sei. Am 1. Dezember schied Bezirksschulrat Stoll aus Altersgründen aus seinem Amt, ein Freund und Förderer der Mädchenschule, in der er bei seinen Schulbesuchen immer geordnete Verhältnisse antraf.
Noch glaubten sich die Glonner Klosterfrauen in ihrem Unterrichtsbetrieb in Sicherheit, vertrauten sie doch auf die Bestimmungen des Stiftungsvertrages. Doch am 22.02.1937 traf vom Mutterhaus in Augsburg die Hiobsbotschaft ein: Generaloberin M. Josephine Lederer musste telefonisch mitteilen, was ihr am gleichen Tag von der Regierung von Oberbayern übermittelt worden war: Mit Wirkung vom 01.04.1937 wird der Niederlassung in Glonn die Führung der öffentlichen Volksschule – und damit die Lehrtätigkeit – entzogen. Am Tag vor den Osterferien, am 25. März, war für die Sternschwestern der letzte Schultag. Die Schulchronik schließt: „Der Abschied von der Jugend war bitter. “
Soweit der äußere Ablauf der Entwicklung. Dahinter verbirgt sich ein Ringen um Erhalt oder Abbau der klösterlichen Mädchenschule. Die Sternschwestern glaubten sich durch den Vertrag gegen das drohende Unrecht gesichert. Die örtliche Parteigruppe, die ja seit 1933 auch den Bürgermeister stellte, sah sich durch die Maßgaben von oben gedrängt, vor Ort das Problem „Klosterschule“ zu lösen.
In einer Unterredung von Bürgermeister Georg Lanzenberger bei der Regierung von Oberbayern wurde dieser von Regierungsrat Dr. R. Hindelang gefragt, ob an der Mädchenschule ein Vertrag bestehe, der den Abbau erschwere oder unmöglich mache. Der Bürgermeister verneinte. Kurze Zeit später sprach er beim Domdekan und späteren Weihbischof Dr. A. Scharnagl vor mit der Bitte, das Schulhaus der Gemeinde zu verkaufen. Auf die Frage nach der Kenntnis des zwischen Pfarrer Späth und der Gemeinde geschlossenen Vertrages mußte er einräumen, dass er davon in seiner Jugendzeit gehört habe. Eine telefonische Rückfrage bei der Regierung brachte Dr. Scharnagl die Antwort: „Hätten wir vom Testament gewußt, wären die klösterlichen Lehrerinnen in Glonn die letzten gewesen, die wir abgebaut hätten.“ (Schulchronik der Mädchenschule)

Eintrag in die Schulchronik vom 22.2.1937
In der Glonner Bevölkerung erregten diese Änderungen erhebliches Aufsehen. Am 1. April löste Hauptlehrer Gustav Gehwald seinen Vorgänger Höllweger ab. In der Chronik der Knabenschule ist vermerkt: „Es entstand eine große Mißstimmung. Verschiedene Eltern lassen ihre Kinder aus HJ und BDM ausscheiden. Es entsteht eine Spannung zwischen Schule und Elternhaus. Der größte Teil der Erziehungsberechtigten steht im gegnerischen Lager.“ Als eine „Schulgemeinde“ (eine nationalsozialistisch geprägte Vereinigung der Eltern) gegründet wird, schließen sich nur 27 Erziehungsberechtigte an. Bei einer schriftlichen Abstimmung über die Gemeinschaftsschule stimmen zwar 71% der Erziehungsberechtigten zu, doch als Gegner eine geheime – und natürlich verbotene – Abstimmung durchführen, beteiligen sich sogar Parteigenossen an der Aktion gegen den Abbau der klösterlichen Lehrkräfte.
Mit dem Abbau der Lehrkräfte waren natürlich der Besitzstand an dem Schulhaus und die Benutzung der Schulräume nicht geregelt. Da die Bedingung, im Haus eine klösterliche Mädchenschule zu führen, nicht mehr erfüllt war, fiel das Eigentum laut Schenkungsvertrag dem erzbischöflichen Domkapitel zu. In seinem Schreiben an das Domkapitel vom 3.3.1937 bestätigte dies der Bürgermeister und bat gleichzeitig, die bisher benutzten zwei Schulräume der Gemeinde für den Schulbetrieb zu überlassen, bis ein neues Schulhaus gebaut sei. In seiner Antwort vom 27. März brachte Domdekan Dr. Scharnagl den Gegenvorschlag, die Gemeinde solle sich im eigenen Interesse bei der Regierung dafür einsetzen, dass die Sternschwestern bis zur Fertigstellung des Neubaus an der Schule belassen werden, wie es auch an anderen Orten (Beispiel Zwiesel) geschehe. Gleichzeitig wird um Auflassung der Eigentumsübertragung beim Notariat und Eintrag ins Grundbuch ersucht. Da die Gemeinde auf den Vorschlag nicht reagierte, ließ das Ordinariat die Schulräume sperren. Daraufhin ließ der Bürgermeister am 10. April die Räume durch einen Schlosssermeister gewaltsam öffnen. Dr. Scharnagl legte gegen diese eigenmächtige Maßnahme Protest ein und kündigte den Klageweg an. In diesem Streit entschied schließlich die Regierung von Oberbayern: Die Gemeinde habe die „nicht zu vermeidende Eigentumsübertragung“ an das Metropolitankapitel zu veranlassen, die Schulräume müssten jedoch weiterhin gegen einen angemessenen Mietpreis in Anspruch genommen werden. Am 20. Mai wurde schließlich vor dem Notariat in Ebersberg der Überlassungsvertrag geschlossen. Ein Jahr später, am 30.04.1938 wurde ein Mietvertrag geschlossen. Der Mietpreis wurde auf jährlich 720 Mark festgelegt. Für den Kindergarten, der wie bisher weitergeführt wurde, wurde weiterhin von der Gemeinde ein monatlicher Zuschuß von 50 Mark geleistet, die Elternbeiträge je Kind auf 2 Mark im Monat festgelegt. Der Mietvertrag sollte für zwei Jahre – bis zum Bau eines neuen Schulhauses – gelten. Die jahrzehntelange, fruchtbare Zusammenarbeit zwischen Gemeinde und Kloster Maria Stern war beendet, das Kloster hatte die Schule verloren, die Gemeinde das Haus.
Wie sehr die Glonner Bevölkerung die Erziehungs- und Unterrichtstätigkeit der klösterlichen Lehrkräfte schätzte, zeigt nicht nur die geheime Abstimmung (Unterschriftensammlung). Nicht wenige ehemalige Schülerinnen aus Glonn und Umgebung waren durch das Vorbild ihrer Lehrerinnen zum Eintritt in den Orden angeregt worden. Noch 1972 konnte Bürgermeister Michael Singer in einem Schreiben an das Augsburger Mutterkloster auf elf noch lebende Schwestern hinweisen und sie namentlich nennen. – Und als ab 1937 die Sternschwestern in Glonn plötzlich ohne Aufgabe und damit auch ohne Einkommen waren (sie blieben in Glonn, da ja auch in den meisten anderen Niederlassungen die klösterlichen Lehrkräfte abgebaut worden waren), erhielten sie manche Zuwendungen in Naturalien aus der Bevölkerung, die ihnen den Lebensunterhalt in dieser schwierigen Zeit sichern halfen.

Schwestern vom Haus Maria Stern in Glonn nach 1937 (mit Ruhestandsgeistlichen)
Hintere Reihe von links: M. Sibylle (Küche), M. Edeiinde (Kindergarten). M. Richarda (VS-Lehrerin). M. Arimathäa (Garten), M. Moneta (Haushalt), M. Ingofreda (Pflegerin).
Vordere Reihe: M. Bernardine (VS-Lehrerin/Oberin), M. Emmerich (HA-Lehrerin). Mitte: Domdekan Dr. Anton Scharnagl
Neben den Ruhestandsgeistlichen war in dieser Zeit auch der spätere Weihbischof Dr. Scharnagl häufiger Gast im Haus Maria Stern in Glonn. Als Domdekan war er ja nun Hausherrn der Schule und war um das Wohl der verbliebenen Schwestern besorgt. – In den letzten Kriegsmonaten fand auch sein Bruder, der 1933 abgesetzte Münchner Oberbürgermeister Karl Scharnagl, Zuflucht in Glonn. Nach Kriegsende wurde er hier von den Amerikanern abgeholt und wieder in sein Amt eingesetzt.
In dieser Zeit der Auseinandersetzung um die Mädchenschule spielt auch eine zunächst lustig klingende, doch ernstgemeinte und am Schluss beinahe tragisch endende Episode: der Pfingstlümmel auf dem Glonner (Knaben-) Schulhaus. Den „Pfingstl“ zu setzen war in einigen Gegenden ein alter Brauch. Eine grotesk verkleidete Strohpuppe wurde sitzengebliebenen Mädchen, streitsüchtigen Frauen oder anderen Personen, die man verspotten wollte, aufs Dach gesetzt. 1936 war Max Höllweger Hauptleher (Schulleiter) an der Glonner Knabenschule. Er war ursprünglich ein entschiedener Gegner des Naional- sozialismus und wandelte sich zu einem eifrigen Anhänger des neuen Systems. Als solcher gehörte er wohl auch zu den treibenden Kräften beim Abbau der klösterlichen Mädchenschule. Bei seinen Schülern war Höllweger auch dafür bekannt, dass er eine schlagkräftige Hand hatte. Seine Strafen, besonders auch bei Prüfungssituationen, waren bei den Buben gefürchtet
Ihm setzten nun in der Nacht zum Pfingssonntag junge Leute, die von dem Brauch in einer Rundfunksendung gehört hatten, die Strohpuppe auf’s Dach. Bekleidet war sie mit Braunhemd mit Hakenkreuzarmbinde und einer Nazimütze mit Sowjetstern auf dem Kopf. Die Puppe trug ein Plakat mit der Aufschrift: „Dem lieben Haupt- und Nebenplärrer nach altem deutschem Brauch.“ An verschiedenen Stellen im Ort hingen Plakate mit Aufschriften wie: „Wir lassen unsere Klosterfrauen nicht vertreiben, sonst werden unsere Kinder Heiden“ und an der Kirchentür stand zu lesen: „Wir brauchen keinen Kommunisten als Organisten!” Und am frühen Morgen – um vier Uhr – verkündete der Mesner Frey auf dem Weg zum Gebetläuten an den Häusern von guten Bekannten: „Nach altem deutschem Brauch hängt der Pfingstlümmel am Lehrerhaus.“
Der Vorfall erregte natürlich ein großes Aufsehen. Sonntag war, und auf dem Weg zur Kirche sahen alle diese Zier. Bereits am nächsten Tag war die Kriminalpolizei in Glonn, es kam zu Verhören, und als am Donnerstag die Glonner Wallfahrer nach Tuntenhausen aufbrachen, erfuhren sie, dass in der Nacht die ersten Verdächtigen nach München gebracht worden waren. Nur der Fürsprache von General Karl Koller, dem Nachbarn der „Täter“, war es zu danken, dass die „Brauchtumspfleger“, die Geschwister Huber (Sattler Huber) und der Kirmair Lenz nach einigen Wochen wieder frei waren. Es hätte auch das KZ in Dachau das Ziel sein können. .
Die Schulverhältnisse während des 2. Weltkrieges
Am 18.04.1937 traten die neuen Lehrkräfte, die die klösterlichen Lehrerinnen ersetzen sollten, in Glonn ihren Dienst an. Es waren dies Betty Biederer aus München und Katharina Mitterer aus Mühldorf. Sie übernahmen die beiden Mädchenklassen (1-3 und 4-7) in den bisherigen Schulräumen im Erdgeschoß der Schule.
Die beiden nicht genutzten Säle im Obergeschoß wurden zu Wohnzwecken umgebaut. In ihnen verbrachten Ruhestandsgeistliche ihren Lebensabend, wie es im Späth’schen Schenkungsvertrag für den nun eingetretenen Fall vorgesehen war.
Ein Jahr später wurde Betty Biederer auf eigenen Antrag nach Allach versetzt. Für sie kam als Aushilfe Rosalie Ostermaier aus Forstinning, die später, ab 1944, über drei Jahrzehnte an der Glonner Schule wirkte. Nach ihr unterrichtete für ein halbes Jahr Elisabeth Kühne, bis schließlich 1939 Alice Wittemann die Klasse übernahm; sie blieb bis zum Beginn des letzten Kriegs-Schuljahres (September 1944) Glonn erhalten. Nach dem Abbau der klösterlichen Lehrkräfte blieb es zunächst bei den nach Geschlechtern getrennten Klassen. Ein Antrag des Schulleiters Gustav Gehwald, Mädchen- und Bubenklassen zusammenzulegen, wurde noch am 26.04.1938 abgelehnt. Erst zum Beginn des Schuljahres 1939/1940 (17.04.1939) kam es zur Bildung gemischter Klassen mit jeweils zwei Jahrgängen, die wie folgt unterrichtet wurden:
1./2. Jahrgang Alice Wittemann
5./6. Jahrgang Gustav Gehwald
3./4. Jahrgang Katharina Mitterer
7./8. Jahrgang Karl Kreil
Nun war also die achtjährige Schulpflicht eingeführt. Die letzten beiden Klassen wurden in der ehemaligen Knabenschule (heute steht an ihrer Stelle die Kreissparkasse) unterrichtet.
Am 1.09.1939 brach mit dem Einmarsch der deutschen Truppen in Polen der 2. Weltkrieg aus.
Am 11. September konnte in der Schulchronik noch mit Befriedigung festgestellt werden: „Trotz des Krieges konnte der Unterricht im normalen Umfang aufgenommen werden“. Das blieb jedoch so nicht mehr sehr lange. Häufiger Lehrerwechsel und fehlende Lehrkräfte beeinträchtigten den Unterricht. Noch 1939 wurde Karl Kreil von dem jungen Lehrer Alex Huber aus München abgelöst. Dieser wurde nach einem halben Jahr (15.121939) zum Kriegsdienst einberufen. Zwei Jahre später fiel er an der Ostfront. Einen Monat später wurde Katharina Mitterer nach Egmating abgeordnet, um dort aushilfsweise den gesamten Unterricht zu übernehmen. In Glonn gab es zwei Lehrkäfte für vier Klassen, die in „Abteilungsunterricht“ (Schichtunterricht) geführt werden mussten. 1940 ist von „kriegsmäßiger Klassenbesetzung“ (vier Klassen, drei Lehrkräfte; 3/4 und 7/8 in Abteilungsunterricht bei Katharina Mitterer) die Rede. Schließlich erkrankte am 17.5.1940 auch der Schulleiter; Hauptlehrer Gustav Gehwald konnte den Unterricht nicht wieder aufnehmen, gab am 9. September die Schulleitung ab und wurde zum Jahresbeginn 1941 in den Ruhestand versetzt.
Vorübergehende Aushilfen wechselten sich ab. Zum 1.4.1942 schließlich wurde Hauptlehrer Richard Voi- thenleitner als Schulleiter von Randelsried nach Glonn versetzt. Ein Jahr später freilich wurde auch er zum Kriegsdienst einberufen. Erst 1947 durfte er aus der russischen Kriegsgefangenschaft nach Glonn und zu seiner Familie heimkehren. – Das Aushilfskarussel drehte sich weiter.
Neben diesen schulorganisatorischen Problemen gab es aber auch erhebliche ortsbedingte Nöte, besonders in der nun schon über 100 Jahre alten Knabenschule. Deshalb hatte die Gemeinde noch 1939 den Plan verfolgt, ein neues Schulhaus zu errichten. Über erste Arbeiten in Hand- und Spanndiensten (Aushebung der Kanalisation) kam das Projekt jedoch nicht hinaus – der Kriegsbeginn verhinderte den Fortgang.
1940 stellte Bezirksschulrat Ulrich bei einem Schulbesuch fest: „Die unzureichenden äußeren Schulverhältnisse fallen unangenehm auf.“ Die strengen Winter erschwerten zusätzlich das Unterrichten. Die Öfen taugten nichts mehr und lieferten nicht die nötige Wärme, Reparaturen ließen Monate auf sich warten, das nötige Brennholz wurde erst nach dem ersten Schneefall geliefert und musste in nassem Zustand gespalten werden. So war es nicht verwunderlich. dass im Dezember 1940 bei strengem Frost die Temperaturen in den Schulräumen am Morgen bei 2°-5° Celsius lagen und nur gekürzter Unterricht erteilt werden konnte.
Im Februar 1942 gab es sogar 14-tägige Kälteferien, und im letzten Kriegswinter wurden die sicher knappen Kohlevorräte der Schule vom Landratsamt beschlagnahmt, die Kinder mussten – soweit möglich – das Brennmaterial selbst mitbringen.
Aber nicht nur mit strenger Winterkälte bereitete die Natur dem Schulbetrieb Schwierigkeiten. Im Mai 1940 regnete es vierzig Stunden ohne Unterbrechung, der Kupferbach trat über die Ufer, um die Wiesmühle breitete sich in der Breite des Tales eine Wasserfläche aus, viele Kinder konnten einige Tage nicht zur Schule kommen.
Bei all diesen Nöten und Problemen versäumte es „die Partei“ nicht, „Begeisterung“ für alles zu wecken und wachzuhalten, was mit Krieg und zweckentfremdetem und verfläschtem Patriotismus zu tun hatte. Nach den Ferien gab es vor dem Schulhaus zu Schulbeginn eine feierliche Fahnenhissung, auf dem Marktplatz NS- Schulfeiern mit Liedern, Sprechchören, Ansprachen, zum Schuljahresende wurde die Hakenkreuzfahne ebenso feierlich eingeholt. Als sich die Nachrichten vom „Heldentod“ von Soldaten der Heimat häuften und immer mehr Frauen um ihre gefallenen Ehemänner oder Söhne trauerten, wurden vor dem Kriegermahnmal „Heldengedenkfeiern“ veranstaltet, zu denen auch die Schuljugend antreten musste.
Mit dem Fortschreiten der Kriegsereignisse wurden ihre unmittelbaren Auswirkungen immer mehr spürbar. Der Mangel an Arbeitskräften konnte durch den Einsatz von Kriegsgefangenen in der Landwirtschaft nur zum Teil ausgeglichen werden. Und so gab es im Herbst 1940 im Anschluss an die Sommerferien „Kartoffelferien“ bis zum 6. Oktober, und auch danach wurden einzelne Klassen zum Kartoffelklauben geschickt. In den Sommermonaten wurden Schulklassen des öfteren zum Einsammeln von Kartoffelkäfern eingeteilt, um die Felder vor diesem Schädling zu schützen.
In der Nacht zum 18.7.1940 zog eine aus Frankreich heimgekehrte Trainkolonne in Glonn ein und nahm hier Quartier. Beim nächtlichen Einzug stand die Schuljugend Spalier, der Unterricht am Morgen fiel aus, da die Kinder bis drei Uhr früh unterwegs waren, um den Soldaten ihre Quartiere zu weisen. Ähnlich war es ein Jahr später, als eine Erholungskompanie von Flaksoldaten aus dem Raum Leningrad in Glonn einrückte. Im Mai 1941 kamen 33 Kinder aus Westfalen, um sie vor drohenden Kriegseinwirkungen in Sicherheit zu bringen. Die Schülerzahlen der einzelnen Klassen stiegen immer mehr an, besonders auch, als in den letzten Kriegsjahren mehr und mehr Familien aus der nahen Großstadt nach den Bombennächten auf das Land evakuiert wurden. Schließlich gab es auch tagsüber und auch auf dem Land Fliegeralarm. Der Unterricht musste unterbrochen werden, Glonner Kinder wurden nach Hause geschickt, Buben und Mädchen aus den umliegenden Dörfern eilends in den Keller der Mädchenschule oder des Rathauses geführt. An eine Fortsetzung des Unterrichts nach dem Alarm war meistens nicht zu denken. Am 24.8.1944 wurde das Knabenschulhaus von einer Genesungskompanie belegt, der Unterricht konnte für einige Zeit nur noch wechselweise im Mädchenschulhaus gehalten werden. Und am 20.3.1945 wurde schließlich ein Saal im Mädchenschulhaus von zurückweichenden Soldaten, zwei Wochen später auch der zweite Schulsaal von Flüchtlingen belegt. Die Schule musste teilweise in Gasthäuser (z.B. zum Huberwirt) verlegt werden, an einen auch nur halbwegs geregelten Unterricht war nicht mehr zu denken.
In all diesen Sorgen und Nöten des Schulbetriebes gab es auch ein paar froh machende Ereignisse. Am 6.8.1940 heiratete die Lehrerin Katharina Mitterer den Glonner Musikmeister Franz Xaver Faßrainer. Trotz der Ferien kamen viele Kinder zu der kirchlichen Feier und brachten dem jungen Paar viele Blumen.
Ähnlich war es, als am 24.8.1944 Rosa Ostermeier den Glonner Schneider-Obermeister Ludwig Hintermair, ein Vorbild für viele Glonner Turner, heiratete. Doch das Glück dauerte in beiden Fällen nicht lange. Franz X. Faßrainer kam im August 1944 in Rumänien in russische Kriegsgefangenschaft und starb in einem sibirischen Gefangenenlager. Ludwig Hintermair hatte aus dem Krieg nach einer Verwundung eine schwere Erkrankung nach Hause gebracht und starb am 4.7.1945 in einem Münchner Krankenhaus. – Ein Schicksal, das die beiden beliebten Lehrerinnen mit vielen Frauen teilten.
Die Leistungen der Lehrerinnen und Lehrer in diesen Kriegsjahren können nicht hoch genug geschätzt werden. Große Klassen, immer wieder steigende Schülerzahlen, Doppelführung von Klassen mit Schichtunterricht, Aushilfe in Nachbardörfern, fehlende Lehr- und Unterrichtsmittel (neue Bücher gab es nicht), beengte Raumverhältnissse, dazu die Ungewissheit, ob man durch seine eigene Überzeugung bei der Partei Anstoß erregen und den Verhören der Gestapo ausgeliefert werden könnte, und vieles mehr belasteten und erschwerten die Erziehungs- und Unterrichtsarbeit in einem Maße, wie man es sich heute kaum vorstellen kann. Trotzdem sind aus diesen Schülerjahrgängen Männer und Frauen hervorgegangen, die die schwierigen Jahre der Nachkriegszeit mit Herz und Verstand, mit Fleiß und Einsatzbereitschaft gemeistert haben, und aus deren Reihen tüchtige Bauern und Handwerker, um das Wohl der Gemeinschaft besorgte Gemeinderäte, ja sogar ein Abgeordneter, kamen.
Am 1.5.1945 war auch für Glonn das „Tausendjährige Reich“ zu Ende. Die Glocken läuteten zur Maiandacht. Doch sie entfiel – um 19.30 Uhr zogen die Amerikaner in den Ort ein. .
Neuanfang 1945 Schwierige Nachkriegsjahre
Nach Ende des Krieges war zunächst jede staatliche Ordnung gelähmt. Die Macht lag bei der Militärregierung und ihren Gouverneuren. Die weitgehend von nationalsozialistischem Einfluss geprägten Behörden wurden durchkämmt und auf ihre Zuverlässigkeit für einen demokratischen Neuanfang überprüft, viele Beamte, die – aus Überzeugung oder unter Druck – Mitglied der Partei waren, verloren ihre Stellung. – Das wirkte sich auch auf die Schule aus. Der Schulbetrieb war eingestellt, monatelang gab es keinen Unterricht.
Im Laufe des Sommers wurden erste Schritte zur Wiedereröffnung des Schulbetriebes unternommen. In Ebersberg wurde ein neuer Schulrat eingesetzt, der für den Landkreis zuständige Captain Horvath erhielt von der in Frankfurt residierenden amerikanischen Militärregierung die Zusage, dass nach den Ferien der Unterricht wieder eröffnet werden sollte. Am 22.8.45 kam vom Regierungspräsidenten die Weisung, dass den religiösen Genossenschaften (Orden), die vor dem 30.1.33 an Volksschulen tätig waren, der Unterricht wieder übertragen werden kann.
Am 14. September schließlich wurde die Schule wieder eröffnet. Für die beiden Glonner Schulen standen je zwei Lehrkräfte zur Verfügung. In der Mädchenschule unterrichteten nun wieder die klösterlichen Lehrkräfte:
- – 4. Jg. 92 Schülerinnen M. Petra Holland
- – 8. Jg. 70 Schülerinnen M.Bernardine Ausberger
Die Lehrerinnen, die bisher in den Räumen der Mädchenschule unterrichtet hatten, übernahmen nun den Unterricht in der Knabenschule:
- – 4. Jg. 92 Schüler Katharina Faßrainer
- – 8. Jg. 84 Schüler Rosa Hintermair
Rosa Hintermair musste allerdings in den ersten Monaten den gesamten Unterricht in Egmating übernehmen. Für sie kam aushilfsweise Anna Maier.
Für den Unterricht standen zunächst keinerlei Bücher zur Verfügung. Erst im Oktober wurden die ersten Bücher (Lesebuch, Naturkunde, Geschichte) für die 5. Jahrgangsstufe geliefert. Für die übrigen Klassen hatte Schulrat Clären Lesebogen erstellt. – Natürlich konnten 80 oder 90 Schüler nicht in einem Raum untergebracht werden. So wurden sie in täglich wechselndem Abteilungssunterricht (1/2, 3/4 und 5/6, 7/8) mit jeweils 15 Wochenstunden an 3 Tagen unterrichtet.
Im Oktober 1945 erhielt die Schule Wolle, um daraus in Strick- und Häkelarbeit „Kindersachen“ für notleidende Frauen herzustellen. Die Wolle war von minderer Qualität, der Handarbeitsunterricht noch nicht wieder eingeführt. So erhielt schließlich die Handarbeitslehrerin M. Emmerich Wunder die Genehmigung, eine private Nähschule zu führen. Erst ein halbes Jahr später wurde ihre Arbeit wieder vergütet.
Große Schülerzahlen, beengte Raumverhältnisse, täglich wechselnde Klassen, sehr begrenzte Lehrmittel: diese Schulverhältnisse erschwerten die Unterrichtsarbeit sehr und zehrten an den Kräften und der Gesundheit der Lehrkräfte. Das erkannten auch die zuständigen Behörden. So zeigte sich Captain Horvath bei einem Besuch der Schulen sehr anerkennend über die geleistete Arbeit und versprach „Schwerarbeiterzulage“ an alle Lehrer. Die Lebensmittelversorgung war noch immer rationiert und sehr knapp, Hunger auf dem Speiseplan,eine Zulage deshalb hochwillkommen.
Auch Schulrat Clären sprach bei seinem Besuch am 13.12.45 seinen Dank für die Aufbauarbeit an den Schulen aus. Im Juni 1946 wurde das Knabenschulhaus für einige Wochen mit Flüchtlingsfamilien belegt. Auch die Buben mussten nun im Mädchenschulhaus unterrichtet werden, jeweils 4 Gruppen in einem Klassenzimmer, so dass für jede Gruppe nur 9 Wochenstunden Schule blieben.
1946 wurden 34 Buben und 42 Mädchen als Anfänger für das neue Schuljahr eingeschrieben, unter ihnen viele Kinder von Flüchtlingen und Heimatvertriebenen. Für beide Schulen wurde deshalb jeweils eine dritte Lehrkraft genehmigt. An die Mädchenschule kam nun Rosa Decker, eine Tochter des späteren Glonner Bürgermeisters Anton Decker, die ein Jahr später von Maria Gröbmayr abgelöst wurde.
1947 wurde die Mädchenschule vierteilig, zwei Jahre später auch die Knabenschule.
Klassen- und Schülerzahlen September 1947:
| 1/2 | 75 Mädchen | Maria Gröbmayr |
| 3/4 | 50 Mädchen | M. Petra Holland |
| 5/6 | 47 Mädchen | M. Koller |
| 7/8 | 55 Mädchen | M. Bernardine Ausberger |
Als Nachfolge für die Sonntags- bzw. spätere Volksfortbildungsschule war nun eine „Ländliche Berufsschule“ eingeführt worden. Für den Unterricht wurden zunächst die Lehrer der Volksschule verpflichtet. Für die Mädchen übernahm diese Aufgabe M. Emmerich Wunderer, in der Knabenschule Rosa Hintermair.
Am 28.11.1947 bestätigte Schulrat Berleb die eigenständige Schulleitung an der Klosterschule, die sein Vorgänger Clären – er war 1946 in seine westfälische Heimat zurückgekehrt – 1945 eingeführt hatte. Zum Schuljahresbeginn 1950 wurde M. Emmerich Wunderer als Oberin an ein Kinderheim bei Kissingen versetzt. Mit ihr verlor die Schule eine tüchtige Lehrerin und mütterliche Freundin ihrer Schülerinnen. Mit einer prächtigen Ausstellung der gefertigten Handarbeiten dankte ihr die Schule zum Abschied für ihre Arbeit. – Ihr folgte M. Gertraud Vogg aus Schwabmünchen, deren Stelle jedoch kurze Zeit später wieder abgebaut wurde. Erst nach einem Gesuch der Gemeinde wurde ihr von der Regierung am 15.12.1950 wieder die Genehmigung für die Erteilung des Handarbeitsunterrichts erteilt.
1952 wurden bei der Schuleinschreibung nur 9 Mädchen eingetragen;es war der Nachkriegsjahrgang 1946 – viele Väter waren aus Krieg oder Gefangenschaft nicht heimgekehrt.
Hunger und Not in den ersten Nachkriegsjahren waren auch auf dem Land, besonders unter den Flüchtlingskindern, zu spüren. So war es eine sehr willkommene Hilfe, als 1947 mit Hilfe amerikanischer Lebensmittelspenden die Schulspeisung eingeführt wurde. Sie war kostenlos, nur für entstandene Unkosten (Zubereitung, Transport…) mussten je Tag 6 Pfennige bezahlt werden. 1946 nahmen 75 Kinder, davon 38 Mädchen, daran teil; drei Monate später waren es bereits 120 und 1948 200 Kinder. Verbunden mit der Schulspeisung war die Verpflichtung, die Kinder jeden Monat zu wiegen und zu messen, um ihren Ernährungszustand festzustellen. Erst 1950 wurde die Schulspeisung eingestellt. 1951 konnte Bezirksarzt Dr. Müller bei einer Untersuchung feststellen, dass die Kinder nun wieder besser genährt waren. Trotzdem wurde nun für besonders bedürftige Kinder die Schulspeisung im Pfarrsaal fortgesetzt, organisiert durch die örtliche Caritas. 35 Kinder wurden so mit einer warmen Mahlzeit versorgt. – Inzwischen war die Währungsreform: Sie hatte viele Menschen, gemessen an Geldbeträgen, scheinbar ärmer, aber an Aussichten für eine bessere Zukunft reicher gemacht. Namen wie Konrad Adenauer und Ludwig Erhard, aber auch der amerikanische General Clay, sind mit dieser Entwicklung eng verbunden. .

1./2.Klasse 1950/51
Das Schulleben blüht wieder auf
Diese Entwicklung weg von diktatorischer Gängelung und hin zu mehr Freiheit in einer demokratischen Ordnung wirkte sich auch auf das Schulleben aus. Das Schuljahr wurde wieder statt mit Fahnenhissung mit einem gemeinsamen Gottesdienst begonnen, und auch am Ende des Schuljahres füllten die frohen Stimmen von 400 Kindern mit deutschen Liedern den Kirchenraum. Und als am 14.9.1947 bei der Einweihung eines neuen Saales im ehemaligen „Pfarrstadl“ (alter Pfarrsaal) auch die Schulen gemeinsam ihre Lieder beitrugen („VomAufgang der Sonne“, „Wir sind die Jugend“, „Dona nobis pacem“, u.a.) kam wohl die Freude über die Überwindung einer schweren Zeit hörbar und sichtbar zum Ausdruck.
Zum Schuljahresbeginn 1947 war Wolfgang er die Knabenschule in Glonn versetzt worden. Unter s ner Anregung wurden viele Projekte und Schulte1 von beiden Schulen gemeinsam durchgeführt, n Schönau (bei Tuntenhausen) hatte er ein Jahr vor er sein Krippenspiel geschrieben und aufgeführt. Als er nun auch in Glonn, zusammen mit den Kolleginnen, das Schönauer Krippenspiel mit den Buben und Mädchen aufführte, gab es im Neuwirtssaal 14 Vorstellungen. Die Menschen spürten die Aussage des Spiels, dass die Liebe unter den Menschen am Ende stärker ist als alle Not und aller Hass. Unter den Gästen waren Staatsminister Dr. Hundhammer, Landrat Dr. Keßler, Schulrat Berleb. sowie der Glonner „Doktor-Max“, Prof. Dr. Lebsche.
Der Reinerlös (ca. 5000 M) kam bedürftigen Kindern j esonders Flüchtlingskindern) im Kindergarten, durch nterstützung der Schulspeisung und durch Weihnachtsbescherungen zugute.
Als Anerkennung für die vielen Mühen bei den Proben und den vielen Aufführungen wurden die Spieler und die freiwilligen Helfer im Frühjahr zu einer zweitägigen Bergfahrt auf die Hochries eingeladen. Voll Freude über die Erlebnisse kehrten sie nach Hause zurück.

Bergerlebnisse auf der Hochriess – Schulchronik
Angeregt durch das Schönauer Krippenspiel wurden nun auch in den kommenden Jahren in der Adventszeit Elternabende mit weihnachtlichen Spielen oder Lesungen (u.a. Thomas „Heilige Nacht“) durchgeführt.
Die Schuljugend war mit Liedern und Gedichten dabei, als Geistlicher Rat Boxhorn 1950 sein goldenes Priesterjubiläum feierte und als er im darauffolgenden Jahr sich in den Ruhestand verabschiedete. Koller würdigte die enge Verbundenheit dieses 39. Pfarrers von Glonn mit der Schule; er nannte ihn einen hervorragenden Katecheten, der sich immer um das Wohl der Jugend mühte.
Im gleichen Jahr ehrte die Gemeinde zu seinem 65. Geburtstag Prof. Lebsche mit der Verleihung der Ehrenbürgerwürde. Natürlich waren auch jetzt die Schulen dabei, mit einem von der Lehrerin Martha Pfarr geschriebenen Gratulationsgedicht, mit einem dreistimmigen Lied „Dahoam is dahoam“, mit der Ballade vom Grafen Douglas mit dem passenden Vers
der ist in tiefster Seele treu, wer die Heimat liebt
wie du“ und mit dem dichterischen Gleichnis vom Brunnen: „Wer zum Brunnen ist bestimmt, darf sich nicht bewahren…“ (Koller).
Im April 1951 kam die Wanderausstellung „Du und die Schule“ nach Glonn. Im Neuwirts-Saal war sie eindrucksvoll gruppiert, ergänzt durch eine Schau von Schülerarbeiten der Glonner Schulen. Besonders letztere sorgte für reges Interesse bei den Eltern. Der Tag wurde abgeschlossen mit einem festlichen Abend für die Eltern, der zugleich der Feier des 50. Jahrestages der Markterhebung galt.
Erinnerungen aus ferner Schulzeit wurden aufgefrischt, junge Lehrer aus der näheren und weiteren Umgebung sangen alpenländische Lieder, der Schulchor war zu hören, aber auch ein dringend erforderlicher Erweiterungs- oder Neubau der Knabenschule wurde angesprochen. Bereits ein paar Wochen später wurden für eine erstmals durchgeführte Jugendschutzwoche namhafte Referenten für verschiedeneThemen und Altersgruppen gewonnen. In der gleichen Woche sahen die Schüler der oberen Klasse im Lanzenberger Saal (dem ehemaligen Kinosaal) einen Film zur Verkehrserziehung; sie war eine notwendige Folge des nun langsam ansteigenden Kraftfahrzeugverkehrs.
Zum Schuljahresbeginn1952 verließ Wolfgang Koller die Glonner Schule; er wurde zum Schulrat im Kreis Erding ernannt. Am 8. November hielt ihm die Gemeinde im Neuwirts-Saal eine würdige Abschiedsfeier. Nach dem Bürgermeister sprach auch Dr. Leopold Thoma im Namen der Heimatvertriebenen; der in Glonn lebende Kunsthistoriker Prof. Kiener hob Kollers besonderen Einsatz für Musik- und Kunsterziehung hervor.
Am gleichen Tag konnten die Sternschwestern auf ihr 50-jähriges Wirken in Glonn zurückblicken. Die Gemeinde sprach ihnen bei der Feier ihren Dank und ihre Anerkennung für die jahrzehntelange und segens-
reiche Erziehungsarbeit im Dienst an der Heranwachsenden weiblichen Jugend aus. Zwei Wochen danach feierte zu diesem Anlass Weihbischof Dr. Scharnagl einen Pontifikalgottesdienst in der Klosterkapelle, der mit Liedern und Gedichten von Mädchen der oberen Klassen umrahmt wurde.
Die Schulraumnot in beiden Schulhäusern war nach wie vor drückend. Für die vier Klassen der Mädchenschule standen zwei Klassenzimmer im Erdgeschoß sowie ein Handarbeitssaa! im 2. Stock zur Verfügung. Auch in der Knabenschule gab es nur drei Schulräume. Auf einer Bürgerversammlung am 1. März 1953 war deshalb dieses Problem das Hauptthema. In einer Resolution wurde die Gemeinde aufgefordert, in Verhandlungen mit dem Domkapitel auf Rückgabe der beiden Schulsäle im 1. Stock zu drängen. Schon zum Beginn des neuen Schuljahres trug dieses Bemühen Früchte: Die Mädchenschule hatte wieder 4 Schulsäle, jede Klasse ein eigenes Schulzimmer, eine „Wohltat für Kinder und Lehrerinnen!“ wie die Schulchronik vermerkt. – Die Schulraumnot an der Knabenschule freilich war damit nicht behoben.
Auch in den folgenden Jahren wurde das Schulleben durch eine Reihe von besonderen Veranstaltungen bereichert. So organisierte 1954 die Schulpflegschaft im Neuwirts-Saal eine Abschiedsfeier für die EntlassSchüler. Zum Tag des Baumes pflanzten Buben und Mädchen im damals noch gut erschlossenen und zugänglichen Quellgebiet der Glonn ein paar Bäume. Und am Frühlingsfest gibt es vor großem Publikum ein Wettsingen aller Glonner Schulklassen; auch die Oberstufe der Bairer Schule in Netterndorf ist dabei. .

Das Glonner Mädchenschulhaus, das zugleich die Schwestern des Kloster Maria Stern beherbergte
Wem gehört die Mädchenschule?
Nachdem sich in den ersten Nachkriegsjahren der Schulbetrieb – wenn auch unter großen Schwierigkeiten – langsam wieder konsolidiert hatte, ergab sich in Glonn die Frage, wem denn nun das Eigentum an der Klosterschule zustehe. Die eigenständige Mädchenschule war wieder eingerichtet, der Unterricht wurde von klösterlichen Lehrkräften gehalten, die Leitung der Schule war der Oberin übertragen. Waren da nicht die Bedingungen des Schenkungsvertrages von Pfarrer Späth aus dem Jahr 1902 wieder erfüllt?
Die Gemeinde wandte sich deshalb am 10. September 1948 an das Metropolitan-Kapitel mit dem Wunsch, wieder Besitzerin des Gebäudes zu werden. Sie wies auf den ursprünglichen Zweck der Schenkung, eine klösterlich geleitete Mädchenschule, hin, der nun wieder erfüllt sei. Sie erinnerte daran, dass die Bevölkerung die Erhaltung dieser Schule wünschte, was sich auch in der Unterschriftenaktion gegen die von der NS-Herrschaft veranlasste Auflösung gezeigt habe. Und sie verwies auf die misslichen Schulverhältnisse: Für über 400 Schüler stünden der Gemeinde neben den beiden in der Klosterschule zur Verfügung gestellten Klassenräumen nur zwei Schulzimmer und ein Behelfsraum in der schon mehr als hundert Jahre alten Knabenschule zur Verfügung. Das Metropolitankapitel lehnte eine Änderung der Eigentumsverhältnisse ab. Es verwies in seiner Antwort vom 31.11.1948 auf die klare Rechtslage, wonach gemäß der Absicht des Stifters das Gebäude zum freien und unbeschränkten Eigentum an das Metropolitankapitel fallen sollte, um es als Rekonvaleszentenheim für Priester oder, wenn die Verhältnisse es wieder ermöglichen, als klösterliche Schule zu nutzen. Die Wiedererrichtung der klösterlichen Mädchenschule aber sei nur möglich gewesen, weil die klösterlichen Lehrkräfte der Gemeinde in der Zwischenzeit durch das Metropolitankapitel erhalten blieben: Sie konnten in Glonn nur deshalb verbleiben, weil das Haus nicht mehr im Gemeindebesitz war. Trotzdem wurde die Bereitschaft angedeutet, bei weiter gleichbleibend hoher Schülerzahl „gemeinsam mit der Gemeinde Glonn geeignete Maßnahmen… zu treffen“. Gemeint war, zwei weitere Schulräume (im 1. Stock) zur Verfügung zu stellen, die immer noch für Ruhestandsgeistliche Vorbehalten waren.
Die Gemeinde gab sich mit dieser Antwort nicht zufrieden. Sie wollte die Streitfrage auf juristischem Wege klären lassen und wandte sich an die Wiedergutmachungsbehörde. Doch auch hier standen die Aussichten schlecht, und so wurde das Verfahren durch Zurücknahme des Antrags eingestellt. Die gegensätzlichen Standpunkte hatten sich jedoch durch das Verfahren verhärtet, einen Kompromiss zu finden war schwieriger geworden.
In dieser Lage wandte sich die Gemeinde an den Glonner Pfarrer und die Kirchenverwaltung mit dem Anliegen, beim Domkapitel vermittelnd tätig zu werden. Geistlicher Rat Otto Boxhorn, der sich bis dahin in dem schwebenden Verfahren zurückhaltend verhalten hatte, ließ über die Rechtsstelle des Klerusverbandes ein Rechtsgutachten über die Streitfrage erstellen. Oberregierungsrat Dr. Kapfhammer kam in seinem Gutachten zu dem Ergebnis, dass durch die seinerzeitige, durch das NS- Regime betriebene Auflösung der Mädchenschule der „Eintritt der Ersatzbestimmungen des Schenkungsvertrages vom Jahre 1902… als endgültig rechtswirksam erachtet werden“ müsse. Aus einem reichsgerichtlichen Urteil in einem anders gelagerten Fall aus der Filmbranche leitete er aber eine rechtliche Wirkung ab, die „nach Treu und Glauben… zum Abschluss einer neuen, den Verhältnissen angepassten Vereinbarung verpflichtet“. Mit dieser Erklärung wandte sich Pfarrer Boxhorn an den inzwischen (1943) zum Weihbischof ernannten damaligen Domdekan Dr. Scharnagl, dem das Haus und die Klosterschule immer ein großes Anliegen war. In seiner Antwort wies Dr. Scharnagl zunächst darauf hin, dass nach 1945 der Gemeinde zwei Schulräume (und der Handarbeitsraum) unentgeltlich und zeitlich unbeschränkt überlassen worden waren. Gleichzeitig stellte er in Aussicht, dass trotz des Versuchs der Gemeinde, auf dem Gerichtswege wieder in den Besitz des Schulhauses zu kommen, der Weg zu weiteren Verhandlungen offen sei. Dabei müssten jedoch „beide Teile verständiges Entgegenkommen zeigen“, die Gemeinde könne nicht erwarten, bei einem Vergleich alles durchsetzen zu können. Zu diesem Vergleich kam es schließlich, nachdem von Seiten des CSU- Kreisvorsitzenden (Peter Wimmer, Kreuz) auch der Landtagsabgeordnete des Kreises Ebersberg, Kultusminister Dr. Hundhammer, in dieVerhandlungen eingeschaltet worden war, und nachdem auch die Notwendigkeit für das Priestererholungsheim geringer geworden war: In einem neuen Vertrag (20.2.52) zwischen Metropolitankapitel und Gemeinde wurden dieser neben den bereits bisher benutzten Schulräumen auch die so dringend notwendigen Schulsäle im 1. Stock zur Verfügung gestellt (s.o.). Die Vereinbarung sollte so lange gelten, so lange klösterliche Lehrkräfte an der Mädchenschule tätig sind. Damit war endlich eine tragfähige Grundlage für den Fortbestand der klösterlich geleiteten Mädchenschule gefunden. .
Endlich: Die Gemeinde baut ein neues Schulhaus
Der Streit um die Mädchenschule und das Bemühen der Gemeinde, wieder in ihren Besitz zu kommen, hing auch eng mit der Notwendigkeit eines Neubaues der Knabenschule zusammen. Wenn die Gemeinde über alle Schulräume der Mädchenschule verfügen könnte, würde sich ein Neubau vielleicht erübrigen oder wenigstens auf spätere Jahre verschieben lassen, hoffte man. Schon in ihrem ersten Ansuchen vom 10.9.1948 hatte die Gemeinde deshalb ihren Wunsch auch damit begründet, dass ansonsten „der Bau eines Schulhauses in Betracht gezogen werden müßte“. Im gleichen Jahr hatte man in der alten Knabenschule einen dritten, behelfsmäßigen Schulraum durch Wegnahme zweier Räume der Lehrerdienstwohnung geschaffen.
Doch es war nicht nur die fehlende Zahl an Schulräumen, sondern vor allem auch die sanitären und sonstigen räumlichen Verhältnisse (Beheizung…), die einen Unterrichtsbetrieb in der nun bereits 110 Jahre alten Knabenschule auf Dauer nicht mehr tragbar erscheinen ließen und bereits 1940 Bezirksschulrat Ulrich zu der Beurteilung veranlasst hatten: „Die unzureichenden äußeren Schulverhältnisse fallen unangenehm auf. Bereits 1939 waren Pläne für einen Schulhausneubau gemacht worden. Doch während damals der Kriegsbeginn ihre Verwirklichung verhindert hatte, waren es nun in den Nachkriegsjahren die Not und die darniederliegende Wirtschaft, die die Gemeinde zunächst davor zurückschrecken ließen, dem Thema Schulhausbau wieder näherzutreten. Im Jahr 1950 wandte sich die Gemeinde an die Regierung von Oberbayern mit dem Anliegen, die Gemeinde aufgrund der schwierigen Verhältnisse bei der Planung, sowie der Gewährung von Zuschüssen oder Darlehen zum Bau eines Schulhauses vordringlich zu unterstützen. Doch es sollte noch weitere sieben Jahre dauern, bis das Vorhaben verwirklicht wurde.
Im darauffolgenden Jahr wurde – wie schon erwähnt – eine Jugendschutzwoche organisiert. Zu einer Vorbesprechung lud der Schulleiter der Knabenschule, Wolfgang Koller. Vertreter der Gemeinde, der Kirche, der Schulpflegschaft ein. Einen breiten Raum nahm bei dieser Zusammenkunft die Erörterung der „mißlichen Schulverhältnisse“ und die Notwendigkeit einer baldigen Lösung ein. Doch man stellte fest, dass der unbedingt erforderliche Neubau einer Schule aus Kostengründen nicht durchführbar sei. Zwei Jahre später, am 1.3.1953, musste Bürgermeister Eichmeier der Bürgerversammlung eingestehen, dass die Verhältnisse an den Glonner Schulen nicht mehr tragbar seien. In der Schulchronik heißt es lapidar: „Schulhausproblem im Kreuzfeuer der Meinungen“. Von da an gab es nur noch wenige Gemeinderatssitzungen und kaum eine Bürgerversammlung, bei denen das Thema Schule nicht zur Sprache kam.
1954 befasste man sich mit ersten Plänen: Der Neubau sollte auf den Fundamenten des alten Hauses (Knabenschule), mit einer Erweiterung nach Süden, errichtet werden.
Am 24.10.1955 wurde schließlich der Neubau einer Schule beschlossen. Der Plan eines An- und Umbaues an der alten Stelle war inzwischen verworfen, als Standort wurde das gemeindeeigene Sportgelände am Klosterweg gewählt, das die Gemeinde schon vor dem Krieg, etwa 1930, erworben hatte. In einer Bürgerversammlung erläuterte der Bürgermeister die Pläne, eine gemeinsame Schule für Knaben und Mädchen zu errichten. Der erste, vordringliche Bauabschnitt, die Knabenschule, war mit 490 000 DM veranschlagt.
Am 12.8.1956 war feierliche Grundsteinlegung. In der eingemauerten Urkunde heißt es u.a.:
„Als nach dem Weltkrieg 1939/45 der Flüchtlingsstrom aus den Ländern Polen, Tschechoslowakei, Ungarn, Rumänien, Jugoslawien und den besetzten Ostgebieten des Deutschen Reiches einsetzte, wuchs die Einwohnerzahl der Marktgemeinde Glonn auf nahezu 3000 Personen an. Entsprechend dem Anwachsen der Einwohnerzahl ist auch die Schülerzahl angestiegen und die schulischen Verhältnisse in der über 110 Jahre alten Knabenschule zwangen den Marktgemeinderat, den Neubau eines Schulhauses in Angriff zu nehmen… Schwierig war die Frage, ob nur ein Erweiterungsbau an der Knabenschule oder ein Neubau eines Schulhauses, dem später auch einmal die Mädchenschule angeschlossen werden kann, ausgeführt werden soll. Erst der Marktgemeinderat in seiner Regierungsperiode von 1952 bis 1956 beschloss, dass ein großzügiger Schulhausneubau auf dem gemeindlichen Sportplatz, Plannummer 210 1/4, mit insgesamt 13 Schulräumen, einer Turnhalle und allen notwendigen Nebenräumen in mehreren Bauab schnitten gebaut werden soll.
Diese Gesamtplanung war zunächst noch Zukunfts musik. Es ging um einen ersten Bauabschnitt, den Neubau der Knabenschule. In 68 Arbeitstagen wurde der Rohbau erstellt. Nach den Plänen von Architekt Herbert Walter wurde der Bau mit 5 Klassenräumen davon einer für die damals in Glonn noch existierende Landwirtschaftliche Berufsschule -, einem Werkraum, einer Schulküche, einem Lehrer- und einem Schulleiterzimmer, sowie verschiedenen Nebenräumen errichtet. Die Baukosten betrugen insgesamt 535 854 DM. Die Maurerarbeiten wurden von der Firma Landthaler ausgeführt. Daneben waren noch 30 weitere Firmen am Bau beteiligt.
Am 8.12.1957 konnte schließlich die Einweihung gefeiert werden. Nach einem festlichen Gottesdienst versammelten sich die Festgäste in der neuen Schule, unter ihnen Regierungspräsident Dr. Mang, MdB Freiherr von Feury. Landrat Dr. Streibl und Schulrat Wolfgang Koller, ln den Festreden, vor allem auch in den Beiträgen der Schüler, klang die Freude über das gelungene Werk durch. Man war stolz auf eine schöne Schule, die nicht zuletzt auch durch die Arbeiten des Glonner Malers Georg Lanzenberger (heimische Tier- und Planzenwelt im Treppenhaus, ..Hans im Glück“ an der südlichen Fassade) ihr eigenes Gepräge erhalten hatte. Mit der Fertigstellung der neuen Schule war die Zeit des Schulhauses gegenüber der Kirche abgelaufen. Fast 120 Jahre war sie die Schulheimat Glonner Kinder gewesen.
Die Kreuze für die Klassräume wurden von Glonner Familien gestiftet, nämlich von Prof. Dr. Max Lebsche Farn. Abinger, Kreuz Farn. Esterl. Reisenthal Farn. Sigl. Reinstorf Farn. Winhart, Ursprung und der Glonner Landjugend.
In der Schulchronik ist dazu unter denn Datum 10.12.1957 vermerkt:
„Sollten diese Kreuze – wie ehedem – einmal ihren Platz in der Schule durch staatliche Verfügung nicht mehr behalten dürfen, so haben sich die Stifter für diesen Fall das Recht vorbehalten, ihre Kreuze wieder zurückzuholen.“
Hoffen wir. dass dieser Fall nie eintritt und unserem Land eine an christlichen Werten orientierte Schule erhalten bleibt! .

Treppenhaus der neuen Schule Neue Knabenschule 1957
Die beiden Schulen wachsen zusammen
Mit der Fertigstellung der neuen Knabenschule hatte nun endlich jede Klasse ihr eigenes Klassenzimmer. Beide Schulen verfügten über je 4 Klassräume, beide Schulen waren inzwischen vierteilig: Nur noch zwei Jahrgänge mussten von einer Lehrkraft unterrichtet werden.
Insgesamt besuchten also 1957 256 Schüler die beiden Schulen. 1950 waren es noch 390 Buben und Mädchen gewesen, davon etwa ein Drittel Kinder von Heimatvertriebenen. Nicht wenige von ihnen waren inzwischen von Glonn weggezogen und hatten anderswo Arbeit und Wohnung gefunden.
Bereits ein Jahr vorher waren die Lehrkräfte von einer zusätzlichen Belastung befreit worden. Für die Landwirtschaftliche Berufsschule in Glonn waren erstmals Fachlehrkräfte eingesetzt worden. Die Mädchen wurden nun von Gabriele von Heuß unterrichtet, die Buben von Herrn Gebhart. Auch die Schülerinnen aus den Gemeinden der heutigen Verwaltungsgemeinschaft wurden nun der Glonner Berufsschule zugeteilt.
Klassenbildung und Schülerzahlen im Schuljahr 1957/58 bzw. 1950/61:
| Mädchenschule | 57/58 | 60/61 | Lehrkräfte |
| I 1./2.Jg. | 39 Mädchen | 33 Mädchen | Maria Gröbmayr |
| II 3./4.Jg. | 41 “ | 43 | Katharina Faßrainer |
| III 5./6.Jg. | 22 “ | 32 “ | M. Richarda Schwertschlager |
| IV 7./8.Jg. | 22 “ | 32 “ | M. Bernardine Ausberger, HL |
| Knabenschule | |||
| I 1./2. Jg. | 40 Buben | 46 Buben | Rosa Hintermair |
| II 3./4.Jg. | 31 “ | 35 “ | Hermann Eberle |
| III 5./6.Jg. | 32 “ | 22 “ | Josef Seidl, ab 1960 Rudolf Gerer |
| IV 7./8.Jg. | 29 “ | 31 “ | Richard Voithenleiner, HL |
Als in den frühen Sechzigerjahren auch in Glonn eine rege Bautätigkeit, besonders in der Zinneberger Siedlung, einsetzte, stieg die Schülerzahl wieder rasch an. Gleichzeitig machte sich ein starker Lehrermangel bemerkbar. Bei längerer Erkrankung einer Lehrkraft konnte der Unterricht häufig nur durch Aufteilung einer Klasse auf zwei Nachbarklassen aufrecht erhalten werden. Auch wurden Lehrkräfte, die nicht mehr im Dienst oder bereits im Ruhestand waren, ermuntert, wieder vorübergehend in den Schuldienst einzutreten. In Glonn waren so die in Frauenreuth wohnende Lehrerin Frau Regner und der nach Glonn übergesiedelte pensionierte Rektor Hornig wertvolle Stützen für den Unterrichtsbetrieb.
Im Jahr 1960 beging die Schulleiterin der Mädchenschule, Oberin M. Bernardine Ausberger, ihr Goldenes Profess- und ihr 50-jähriges Ortsjubiläum. Schulrat Koller rühmte, dass ihre wahre Freude immer ihr Dienst an anderen Menschen sei. Die Oberin wollte mit diesem Jubiläum in den Ruhestand gehen. Doch ihr Orden bewog sie, noch ein weiteres Jahr an der Schule zu unterrichten. 1961 wurde sie von der noch jungen M. Salesia Wolf abgelöst, die mit ihrer Begeisterungsfähigkeit rasch die Herzen der ihr anvertrauten Schülerinnen gewann. Bereits drei Jahre später wurde sie nach Augsburg-Pfersee abberufen. Ihr folgte M. Ferdinanda Fischer.
In diesen Jahren wurden immer mehr schulische Veranstaltungen von beiden Schulen gemeinsam durchgeführt:Lehrerkonferenzen, allgemeine Elternabende mit erziehlichen Themen (z.B. 1957 über die Gefahren, die von Schundliteratur ausgehen, verbunden mit einer Umtauschaktion gegen wertvolle Jugendbücher), aber auch Sportfeste.Gemeinsam wurden ab 1960 die Bundesjugendspiele durchgeführt, seit 1964 gab es auf Anregung der Glonner Schulen zusätzlich ein gemeinsames Sportfest mit allen umliegenden Schulen aus dem Bereich der heutigen Verwaltungsgemeinschaft. Eine Glonner Schülerin, Kathi Keller aus Schlacht, erreicht bei dem ersten Treffen die höchste Punktzahl unter allen Teilnehmern. 1967 wurde dieses Sportfest durch ein Landkeis-Schulsportfest in Ebersberg abgelöst, bei dem die Glonner Mädchen im Staffellauf den 1. Platz belegten.
1962 wurden für die Buben und Mädchen der beiden oberen Jahrgänge zusätzliche Wahlfächer in Maschinenschreiben und Kurzschrift eingerichtet: 1964 gab es eine vielbeachtete Handarbeitsausstellung, mit der die Mädchen zeigen konnten, was sie bei ihrer Fachlehrerin M.Maximiliane Fölsl. (die leider ein Jahr später an einem Herzinfarkt starb) und ihrer Vorgängerin M. Friedmunda Grimminger, gelernt hatten. – Im gleichen Jahr (1964) beteiligten sich die Mädchen der 7. und 8. Klasse an einem Wettbewerb des Bundesministeriums für Ernährung und Landwirtschaft zu dem Thema: ..Wie ernähre ich mich richtig?“ Unter den bayerischen Schulen errangen sie einen 7. Preis, wohl auch ein Ergebnis des Unterrichts in der neuen Schulküche. Die Belohnung war eine gemeinsame Fahrt nach Ulm. .
Landschulreform
Durch die weiter steigenden Schülerzahlen konnten 1964 nicht mehr alle Schulanfänger in den bisherigen Eingangsklassen (jeweils 1./2. Jahrgang) untergebracht werden. An der Knabenschule wurde deshalb eine zusätzliche Klasse errichtet. Die beiden ersten Jahrgänge waren nun Jahrgangsklassen. In die 1. Klasse wurde aber auch ein Teil der Mädchen eingegliedert, um die Mädchenschule zu entlasten. Erstmals wurde so wieder eine geschlechtlich gemischte Klasse gebildet; die Erfahrungen konnten als sehr gut bezeichnet werden.
1957 war Schulrat Wolfgang Koller aus Erding in seinen Heimatlandkreis Ebersberg versetzt worden, von den jüngeren Lehrkräften, die ihn noch als Seminarleiter kennengelernt hatten, freudig begrüßt.
Koller setzte sich nun besonders auch für die weitere schulische Entwicklung an seinem Heimatort ein.
Beim erzbischöflichen Ordinariat erreichte er die Zustimmung, dass auch an der Mädchenschule gemischte Klassen gebildet werden konnten. So gab es nun 1965 für alle 4 Jahrgänge der Unterstufe gemischte Klassen, nämlich:
Knabenschule
1.Jg. 31 Kn + 8 Mä Edith Meissl
2.Jg. 20 Kn +15 Mä Rosa Hintermair
4.Jg. 27 Kn +21 Mä Erich Mündel
Mädchenschule
1./2.Jg. 35 Mä Maria Gröbmayer
3.Jg. 25 KN + 22 Mä Katharina Faßrainer
ln der Oberstufe blieb es bei der bisherigen Einteilung. 1967 konnten an der Knabenschule bereits 6 Klassen gebildet werden; zusammen mit der Mädchenschule waren es nun 10 Klassen. Inzwischen war durch die Auflösung der Landwirtschaftlichen Berufsschule ein Raum frei geworden. Ein weiteres Klassenzimmer wurde im Tiefparterre durch den Umbau von zwei Nebenäumen gewonnen.
Eine erhebliche Veränderung der Schulsituation brachte das Jahr 1969 mit der Landschulreform
Gleichzeitig wurde die 9. Klasse eingeführt: auch die Schüler aus den Nachbargemeinden (Baiern, Bruck, Egmating, Moosach, Oberpframmern) besuchten die 9. Jahrgangsstufe in Glonn. So waren es nun 12 Klassen, von denen eine im Lehrerzimmer, eine im Pfarrheim unterrichtet wurde. Im darauffolgenden Jahr, 1970, wurden auch die Schüler der 7. und 8. Jahrgangsstufe aus den umliegenden Schulen, sowie die 5. und 6. Klasse aus Baiern nach Glonn integriert. .
Vereinigung der beiden Schulen 1. Erweiterungsbau
Erstes Ziel der Reform war es, auch auf dem Land an allen Schulen reine Jahrgangsklassen zu bilden. Bei der bisherigen Trennung von Knaben- und Mädchenschule war das nicht erreichbar. So wurden mit dem 1. August 1969 die beiden Schulen unter einer Leitung vereinigt. Schulleiter wurde der bisherige Leiter der Knabenschule, Hauptlehrer Erich Mündel, der nun zum Rektor befördert wurde. Mündel war 1965 nach Glonn versetzt worden und hatte im darauffolgenden Jahr Richard Voithenleitner in der Schulleitung abgelöst, der im Alter von 66 Jahren in den wohlverdienten Ruhestand ging.
Die Volksschule wurde nun in Grundschule (1-4) und Hauptschule (5-9) gegliedert, die jedoch meist unter einem Dach und einer Leitung vereint blieben. Für die Hauptschule war das Ziel, für jeden Jahrgang zwei (oder auch mehr) Klassen zu bilden, um den nun einsetzenden Unterricht in Wahlpflichtfächern und Kursen organisieren zu können. Mit insgesamt 15 Klassen, davon 9 in der Hauptschule, wurde dieses Ziel in Glonn erreicht.
Die Schulreform brachte jedoch für Glonn die Notwendigkeit, die erst 12 Jahre alte Schule zu erweitern. Zwar konnten zunächst noch einige Klassen behelfsweise in Nachbarschulen unter gebracht werden, was aber nicht unerhebliche organisatorische Schwierigkeiten brachte. So entschloss sich der Gemeinderat unter Bürgermeister Anton Decker in relativ kurzer Zeit zu dem notwendigen Schritt. Architekt Otto Weinert aus München, der die Gemeinderäte in seinem Schulhausbau in Sauerlach durch sparsame Bauweise überzeugt hatte, wurde mit der Planung beauftragt. Im August 1969 wurde mit den Bauarbeiten begonnen. In zwei Baulosen – Schulhaustrakt und Turnhalle (mit Schwimmhalle) – wurde das Vorhaben von den Glonner Firmen Landthaler und Braun, verwirklicht. Am 10.7.1970 war Richtfest. Im darauffolgenden Jahr, am 4.12.1971, war es endlich so weit, der Erweiterungsbau konnte bezogen werden. Unter den Ehrengästen der Einweihungsfeier waren Staatssekretär Franz Sackmann, MdL Freiherr von Feury, Landrat Dr. Streibl, die Bürgermeister der Nachbargemeinden, Schulrat Guido Scheller und sein Vorgänger Wolfgang Koller.
Mit einem Kostenaufwand von rund 2 470 000 DM war das Bauvorhaben verwirklicht worden. Fünf neue Klassenzimmer, ein Fachraum für Physik, eine geräumige Aula und – zur großen Begeisterung der Schüler – eine Schulturnhalle und Schwimmhalle standen nun zur Verfügung. Insgesamt umfasste das Schulhaus nun 11 Klassenzimmer. Inzwischen bestand die Schule aber aus 17 Klassen, 1972 waren es 18. Es war klar, dass die 4 Räume der alten Mädchenschule auch weiterhin dringend gebraucht wurden und auch Klassen nach Egmating und Baiern ausgelagert werden mussten. Der Erweiterungsbau war schon bei seiner Fertigstellung zu klein.
1975 wurde auch die noch selbständige Grundschule Baiern aufgelöst und in die Volksschule Glonn eingegliedert. Die 4 Schulzimmer des Schulhauses in Antholing wurden (und werden) natürlich auch weiterhin genutzt; das Haus gehört heute als weiteres, schön gelegenes Schulhaus zur Glonner Schule. .
Abschied von den klösterlichen Lehrkräften
Nach dem Zusammenschluss der beiden Schulen wurde es für das Mutterhaus Maria Stern in Augsburg immer schwieriger, seine schulische Niederlassung in Glonn aufrecht zu erhalten. Im letzten Schuljahr der eigenständigen Mädchenschule (1968/69) unterrichteten noch 3 Ordensfrauen an der Schule:
- Ferdinanda Fischer Oberin in Glonn seit 1964
- Richarda Schwertschlager Lehrerin in Glonn seit 1948
- Friedmunda Grimminger Handarbeitslehrerin
Oberin Ferdinanda, der nur sieben Jahre in Glonn beschieden waren, war den Kindern eine frohe Lehrerin, die sich als Ordensfrau gut mit den Mädchen der Hauptschule verstand und später den Kleinen in der Grundschule eine gütige Mutter war. Sie passte sich auch gern den Erfordernissen der Schulreform an und leistete Verzicht auf die traditionell gewordene und durch die Stiftungsurkunde gesicherte klösterlich geleitete Mädchenschule. Ihren Einsatz in Glonn rang sie durch all die Jahre einer schmerzhaften Krankheit ab. Zuletzt blieb ihr der Weg ins Krankenhaus nicht erspart. Nach 40 Lebensjahren verstarb sie 1971 in Augsburg und wurde dort begraben.
Das Mutterhaus konnte wegen Mangels an jüngeren Ordensfrauen keine Nachfolgerin schicken. Als im darauffolgenden Jahr die beiden noch verbliebenen Lehrerinnen in den Ruhestand traten – Schwester Richarda nach 50 Dienstjahren, sie hatte ihr Jubiläum am 22.4.1972 gefeiert! – blieb dem Orden nichts anderes übrig, als die Filiale im Haus Maria Stern in Glonn aufzulösen. Für viele Glonner, vor allem für Mütter, die einst selbst in der Klosterschule die Schulbank gedrückt hatten, war das eine schmerzliche Nachricht. Deshalb versuchte die Gemeinde, diesen Schritt noch einmal abzuwenden, ln seinem Schreiben vom 25. Juli 1977 an die Generaloberin in Augsburg begründete Bürgermeister Michael Singer seine Bitte um Aufrechterhaltung der Ordensniederlassung u.a. auch damit, dass aufgrund des segensreichen Wirkens der Glonner Ordensfrauen „noch heute elf Schwestern aus Glonn und der nächsten Umgebung dem Orden Maria Stern angehören.“ Und er führt sie namentlich auf. Bürgermeister Singer und Pfarrer Josef Schneider sprachen auch persönlich im Mutterhaus vor. Doch dem Kloster blieb nichts anderes übrig, als die Kündigung aufrecht zu erhalten, so schwer dieser Entschluss der Generaloberin auch fiel.
Am 1. August 1972 war für die noch verbliebenen klösterlichen Lehrkräfte der letzte Schultag. Zusammen mit ihren Kolleginnen Katharina Faßrainer und Maria Gröbmayr wurden Schwester Richarda und Schwester Friedmunda in der Schule von Oberschulrat Guido Scheller und Rektor Magnus Wimmer feierlich verabschiedet.

Verabschiedung verdienter Lehrerinnen – Juli 1972
Nach diesem letzten Tag in der Schule kam für die Sternschwestern einige Monate später auch der Abschied von Glonn, das ihnen über 70 Jahre zur Heimat geworden war. Pfarrgemeinde und politische Gemeinde hielten ihnen eine „rühmliche Letzte“, wie 100 Jahre vorher Johann B. Dunkes einst seinen Abschied genannte hatte, und luden am 7. Januar 1973 in den Neuwirts-Saal zur Abschiedsstunde. Pfarrer Josef Schneider konnte neben den Ehrengästen, unter ihnen die Ehrenbürger Klara Lebsche, Geistlicher Rat Boxhorn und Altbürgermeister Decker, sowie Oberschulrat Scheller und Rektor Wimmer eine große Zahl von Eltern und ehemaligen Schülerinnen begrüßen.
Zwischen den einzelnen Grußworten und Dankesreden gab es musikalische Beiträge.
Und schließlich würdigte Wolfgang Koller in seiner Festrede in nachdenklichen Worten und humorvollen Anekdoten „Siebzig Jahre Glonner Weltgeschichte“, Jahre, in denen die Klosterfrauen von Maria Stern in Glonn in Schule und Kindergarten für die Gemeinschaft segensreich gewirkt haben. Es war ein bewegender Abschied.
Verabschiedung der Sternschwestern

Artikel in der Ebersberger Zeitung am 7.1.1973 .
Erwerb der Klosterschule durch die Gemeinde
Zweiter Erweiterungsbau
Nach der Auflösung der klösterlichen Niederlassung erhob sich die Frage, wie das Gebäude in Zukunft genutzt werden solle. Für die Schulräume war weiterhin dringender Bedarf. Für die Wohnräume bestand der Wunsch, sie für die Unterbringung kirchlicher Angestellter der Pfarrei Glonn (Organist, evtl. Kindergartenpersonal…) zu nutzen. Pfarrer Josef Schneider bewog die Kirchen Verwaltung zum Verzicht, um der Gemeinde den Erwerb des gesamten Gebäudes zu ermöglichen. Die klösterliche Mädchenschule bestand nicht mehr und auch für ein Priesterhospital gab es keinen Bedarf; so war das Metropolitankapitel zum Verkauf bereit. In der Sitzung vom 21.8.1972 konnte Bürgermeister Michael Singer den geforderten Kaufpreis mitteilen: für das Gebäude 329 000 DM, für das Grundstück (5620 qm) 337 000 DM, was einem Quadratmeterpreis von 60 DM entsprach. In einer weiteren Verhandlung mit dem Domkapitel (am 14.12.1972 im Glonner Rathaus), an der neben dem Bürgermeister auf Seiten der Gemeinde auch 2. Bürgermeister Richard Gürteier und Gemeinderat (und Elternbeiratsvorsitzender) Martin Sigl teilnahmen, konnte der Kaufpreis auf insgesamt 500 000 DM gesenkt werden. Der Gemeinderat war sich einig, dass man diese sehr günstige Gelegenheit ergreifen müsse, und beschloss am 18.12. den Kauf. Am 1.3.1973 wurde im Notariat Stühler, Ebersberg, der Kaufvertrag geschlossen. Unterzeichnet wurde er von Domdekan Dr. Heinrich Eisendorfer und 2. Bürgermeister Richard Gürteier in Vertretung des erkrankten Bürgermeisters. Als Verpflichtung wurde vereinbart, das Haus für schulische Zwecke zu nutzen, bzw. bei einem evtl, späteren Verkauf den Erlös für schulische Zwecke zu verwenden.
Auf Jahre hinaus blieb nun die ehemalige „Klosterschule“ ein unverzichtbarer Teil der Volksschule Glonn. Der Erweiterungsbau von 1970 war ja – da noch vor der Landschulreform geplant – bereits bei seiner Fertigstellung zu klein. Inzwischen waren die Schülerzahlen weiter gestiegen, geburtenstarke Jahrgänge waren ins Schulleben eingetreten, 1975 zählte man 737 Schüler und 22 Klassen. Im Gemeinderat wurde die Notwendigkeit eines zusätzlichen Erweiterungsbaues festgestellt, ein Raumprogramm sah 8 weitere Klassenzimmer vor. Nach langwierigen Verhandlungen über Zuschussfragen und einer behördlicherseits verfügten Verkürzung des Raumprogrammes auf 5 Schulsäle plus Nebenräume (Werken, Kunsterziehung u.a.) konnte Architekt Carl Behmer aus Grafing mit der endgültigen Planung des nach Westen anschließenden Erweiterungsbaues beauftragt werden. Im Sommer 1977 war Baubeginn. Über viele Monate war der Schulbetrieb im sog. Altbau durch die Baumaßnahme beeinträchtigt, bis schließlich im Herbst 1978 die neuen Räume bezogen werden konnten. Noch waren verschiedene Nebenarbeiten (Pausenhof…) zu erledigen, und so verzögerte sich die offizielle Eröffnung. Am 11. Mai 1979 konnte schließlich der Erweiterungsbau eingeweiht werden. Unter den Ehrengästen waren Baron von Feury, MdL Richard Gürteier, Landrat Hermann Beham, Reg.Schuldirektor Sebastian Gruber und Oberschulamtsdirektor Guido Scheller. Dekan Josef Schneider eröffnete die Weihehandlung mit einem Satz aus dem Alten Testament: „Die Weisheit hat sich ein Haus gebaut“.
Mit einem Kostenaufwand von 2.3 Mill. DM hatte der Markt Glonn ein Haus gebaut, das nun die wesentlichen Bedürfnisse der Schule befriedigte. Trotzdem mussten ein paar Klassen zunächst noch in Fachräumen (Zeichensaal…) untergebracht werden.
Die Schulräume in der alten Mädchenschule aber wurden nun nicht mehr gebraucht. Mehr als 75 Jahre hatten sie Mädchen – und später auch Buben – als schulische Heimat gedient.

Zweiter Erweiterungsbau 1978 .
Die Klosterschule bleibt ein Haus der Kultur
Die Frage nach der weiteren Nutzung der ehemaligen Mädchenschule war bald gelöst. Verschiedene Vereine und Organisationen meldeten ihren Bedarf für die Nutzung einzelner Räume an. Zunächst aber war es die Gemeinde selbst, die froh war, ein Ausweichquartier für die Verwaltungsräume zur Verfügung zu haben. Zum 1. Mai 1978 stand die Bildung der Verwaltungsgemeinschaft an, die wenigen Räume im alten Rathaus reichten nicht mehr aus. Fast gleichzeitig mit der Schulhauserweiterung musste deshalb ein neues Rathaus gebaut werden. Zusammen mit der durch den Schulhausneubau notwendigen Neuanlage des Schulsportplatzes hatte die Marktgemeinde damals zur selben Zeit drei größere Bauprojekte zu bewältigen und finanziell zu verkraften.
Von 1977 bis 30.9.1978 war nun die Gemeindeverwaltung in der Mädchenschule untergebracht, die zu dieser Zeit auch noch schulisch genutzt wurde. Deshalb konnten nur zwei Räume im 2. Stock (heute Heimatmuseum) und ein Nebenraum im Erdgeschoß bezogen werden, gerade in der schwierigen Phase der Gemeindegebietsreform ein auch für die Angestellten der Verwaltung sicher nicht leichter Zustand. Im Miteinander von Schule und Rathaus wurde auch diese Zeit überstanden. Ein Jahr später (1978) – die Schule war inzwischen aus dem Haus ausgezogen – konnten der Kreissparkasse während eines Umbaus in ihrer Glonner Zweigstelle Geschäftsräume in der Klosterschule zur Verfügung gestellt werden. Auch ein Glonner Kaufhaus fand bis zur Errichtung eines neues Gebäudes an der Bahnhofstraße vorübergehend Unterkunft am Klosterweg. .
Kultur- und Vereinsleben in der Klosterschule
Schulbetrieb anderer Art blühte wieder seit 1980 in den alten Räumen auf. Immer mehr Bürger auch aus Glonn nützten die Angebote der Erwachsenenbildung, die durch die Volkshochschule Grafing – Ebersberg auf den Weg gebracht wurden. So war es nur folgerichtig, dass der Volkshochschule auch ein Raum zur Verfügung gestellt wurde. Vor allem waren es Sprachkurse, aber auch Basteln mit Kindern, die in Glonn angeboten wurden.
Seit 1989 wurde durch die VHS auch die Musikschule in Glonn heimisch. Bald hörte man Klänge verschiedener Instrumente, von der Blockflöte bis zur Trompete und zum Tenorhorn aus dem Schulraum. Der Glonner Stefan Ametsbichler, sowie Frau Kluge-Rauscher sorgten für den guten Ton auf den Instrumenten, während Thomas Pfeifer in einem Raum über der Turnhalle den Kleinen die Geheimnisse der Tastatur am Klavier beibrachte.
Aber auch die leiseren Töne der Stubenmusik (Zither. Gitarre und Hackbrett) werden seit einigen Jahren im Rahmen der Musikschule von Roman Messerer und Thomas Huber vermittelt, drüben im Schulungsraum des Feuerwehrhauses.
Auch für Glonner Vereine boten sich nun Räume in dem großen Haus an. Zunächst wurde die Idee einer Begegnungstätte für ältere Gemeindebürger verwirklicht. Im Gemeinderat war dieser Plan von Dr. Peter Kreutzer und Walter Weigert vorgeschlagen worden. In einer von Bürgermeister Martin Sigl am 28. November 1978 anberaumten Besprechung einigten sich die vier in Glonn tätigen sozial- caritativen Verbände
Arbeiterwohlfahrt
Caritas
Innere Mission
Sanitätskolonne des BRK
darauf, gemeinsam eine Altenstube in einem der ehemaligen Schulräume zu betreiben. Für erste Anschaffungen brachten sie ein Startkapital von 1400.— DM auf. Verschiedene Sachspenden, u.a. von der Brauerei Widmann, erleichterten den Anfang. Am 31. Januar 1979 wurde im Beisein von Bürgermeister Sigl, Dekan Josef Schneider und dem evangelischen Pfarrer Dr. Millauer die Altenstube eröffnet.
Seit dieser Zeit treffen sich regelmäßig an jedem Mittwoch alte Leute zur Unterhaltung, zu geselligen Spielen, zu Meinungs- und Erfahrungsaustausch in dieser Einrichtung. Mit Kaffee und Kuchen und Getränken werden sie dabei versorgt von einem Helferkreis, der sich gleichmäßig aus Mitgliedern der vier Verbände zusammensetzt. Von Anfang an herrschte unter ihnen eine gute Zusammenarbeit und eine harmonische Gemeinschaft. Viele von den Helfern der ersten Stunde sind auch heute noch in der Altenstube tätig. Und von Anfang an waren es vor allem zwei Personen, die sich um den organisatorischen Ablauf und ein gedeihliches Miteinander kümmerten -. Rosa Hintermair, die einst selbst als Lehrerin in der Schule unterrichtet hatte, und Walter Weigert. Zusammen mit den übrigen Helfern führen sie auch zweimal im Jahr eine Fahrt durch, an der sich die alten Leute immer rege beteiligen.
In einem weiteren Raum bekam die Glonner Sanitätskolonne des Roten Kreuzes eine neue Heimstatt. Hier treffen sich die Mitglieder nicht nur zu geselligen Abenden, sondern auch zur Weiterbildung in ihrem wichtigen Bereich der Nächstenhilfe. Für zahlreiche Glonner Gemeindebürger, FührerscheinAnwärter ebenso wie junge Sportler und viele andere, wurden hier auch Kurse für „Erste-Hilfe“ durchgeführt. Und schließlich trug der Raum auch wesentlich zum Aufbau einer Jugend-Rotkreuz-Gruppe bei.
Ein weiterer Schulsaal wurde dem Wintersportverein zur Verfügung gestellt. Die Skisportler richteten sich hier einen Konditionsraum ein, in dem sie über 20 Jahre lang an verschiedenen Geräten ihre Muskelkräfte für den Winter stärken konnten. Vor zwei Jahren wurde diese „Folterkammer“ durch das vereinseigene „Topfit“ an der Bahnhofstraße ersetzt. In einem Nebenraum, der vorher dem VDK zur Verfügung gestellt war, hatte der WSV über viele Jahre auch seine Geschäftsstelle.
Seit 1986 haben auch die Fotofreunde Glonn ihr Domizil in der Klosterschule. In den ehemaligen Wohnräumen im Erdgeschoß und der ehemaligen Kapelle führen sie jährlich Ausstellungen der besten Bilder der Clubmitglieder durch, die jeweils unter einem bestimmten Motto stehen. Um Erfahrungen auszutauschen und gemeinsame Vorhaben vorzubereiten, treffen sich die Fotofreunde zweimal im Monat (1. und 3. Mittwoch) in der Altenstube. Neben den Jahresausstellungen wurden seit 1986 eine Reihe von zusätzlichen Veranstaltungen durchgeführt, z.B.:
1988 Fotowettbewerb „Mein Freund, der Baum
1989 Diavortrag „Die Entwicklung des Lichtbildes
1991 Ausstellung „Plus/Minus“ im Rahmen der Glonner Umwelttag
1993 Ausstellung „Bekannte / unbekannte Toscana“
1995 Ausstellung der Fotogruppe „Diaphane“ aus St. Marcellin (Frankreich)
1996 Ausstellung „Panoramafotografic“ (R.Pelz / P.Wieczosek)
2000 Ausstellung „Mysteres diombres“ – Geheimnisvolle Schatten mit Pascal Pinato und FFG- Mitgliedern
2002 Im Februar wurden die neugestalteten Ausstellungssäume mit einer gemeinsamen Ausstellung der FFG und des Kultur- und Verschönerungsvereins wiedereröffnet .
Kultur- und Verschönerungsverein und Heimatmuseum
Ganz wesentlich zur Belebung des historischen Gebäudes der ehemaligen Mädchenschule trägt auc der Kultur- und Verschönerungsverein Glonn el- Nach der Wiederbelebung des ehemaligen „Verke rs und Verschönerungsvereins“ – er war für mehr als ein Jahrzehnt in einen „Dornröschenschlaf“ gesunken stellten sich die Initiatoren, Josef Kleeberger un Hans Kotzinger, das Ziel, auch die PfleSe Förderung der heimatlichen Kultur in das Aufgabengebiet des Vereins zu integrieren. Der Verein erhielt einen neuen Namen, neue Mitglieder, vor allem auch bildende Künstler und Kunsthandwerker schlossen sich an.
Nachdem schon1974 anlässlich der 1200-Jahr-Feier eine Kunstausstellung mit Werken namhafter Künstler der Glonner Umgebung – damals organisiert vom CSU-Ortsverband – in der Aula der Knabenschule durchgeführt worden war, lud nun seit 1982 der Kultur- und Verschönerungsverein zunächst Hobby Künstler und Kunsthandwerker zu jährlichen Ausstellungen ihrer Werke ein. Hierzu wurden die nichtschulischen Räume im Erdgeschoß renoviert, die später auch dem Fotoclub zur Verfügung gestellt wurden (siehe oben). Die Ausstellungen – meist in der Vorweihnachtszeit durchgeführt – fanden – und finden – reges Interesse bei Ausstellern und Besuchern. Da es sich dabei um Verkaufsausstellungen handelt, konnten wohl schon viele Glonner und auch Besucher von auswärts passende und künstlerisch gestaltete Geschenke erwerben.
Neben diesen Jahresausstellungen wurden seit 1983 vom KVV in den Räumen der Klosterschule nicht weniger als 32 zusätzliche Veranstaltungen durchgeführt: Kunstausstellungen, Vorträge, Gedächtnisausstellungen…, darunter u.a.:
1985
10.Glonner Kunstausstellung mit Werken von Georg Lanzenberger, Brigitte Brauser, Wilhelm Kaiser. Hans Friedmann u.a.
1986
Ausstellung über König Ludwig II. und die Zeit der Wittelsbacher im 19. Jahrhundert
1990
Ausstellung „Glonn im Wandel der Zeit“ in Verbindung zu dem 1988 von der Marktgemeinde unter Martin Sigl herausgegebenen Bildband
1980
„Die Entwicklung der Tracht in unserem Landkreis“ Dia-Vortrag von Kreisheimatpfleger Markus Krammer
1994
Schützenscheiben und Landschaften an der Glonn Ölbilder des Münchner Malers Sepp Wilhelm
1995
Offizielle Eröffnung des Heimatmuseums mit Ausstellung: Gemälde aus der Zeit der bayerischen Könige
1997
Gedächtnisausstellung Georg Lanzenberger (1897 – 1989)
1998
Gedächtnisausstellung Prof. Dr. Max Lebsche (1896 – 1957) mit Vortrag über sein Leben und Wirken, von Hans Obermair
1998
Dia-Vortrag.- „Der Leidensweg des hl. Koloman“
1999
Gedächtnisausstellung zum 25. Todestag von Wolfgang Koller (1904 – 1974) mit Vortrag über sein Leben und Wirken, von Rudolf Gerer
2000
„Von Herzog Tassilo III. bis König Ludwig IV. Ausstellung zur bayer. Geschichte zur Jahrtausendwende mit Einführungsvortrag von Hans Kotzinger
2000
„Die Überflüssige“ -Lena Christ: ein Frauenschicksal Lesung aus der Autobiographie der Schriftstellerin von Elisabeth und Hermann Eberle
2002
Wiedereröffnung der neugestalteten Ausstellungsräume Ausstellung der Gruppe „Spectrum- des KW
Viele dieser Ausstellungen fanden Interesse weit über den engeren Glonner Bereich hinaus. Manche erinnern sich wohl noch an die Ausstellung zum 100. Geburtstag des Glonner Malers Georg Lanzenberger, der in seinen Landschaftsbildern die engere Heimat ebenso wie den sonnigen Süden in Italien und die Bergwelt der Alpen dargestellt hat. Eine Erinnerung an einen bedeutenden Glonner war die Ausstellung zum Gedenken an Prof. Lebsche. in der viele Zeugnisse zum Leben und Wirken dieses Arztes und Menschenfreundes aus seinem Elternhaus der Öffentlich keit präsentiert wurden. Ein lebendiges Bild seines vielseitigen Einsatzes für die Menschen seiner Heimat zeichnete der in der Glonner Chronik bestens bewanderte Hans Obermair. – Viele Gäste aus dem Umland, ehemalige Kollegen und Freunde kamen auch zur Ausstellung zum 25. Todestag von Wolfgang Koller, des in Glonn beheimateten Schulmannes, Heimatforschers und Schriftstellers, der als Kunstkenner auch viele persönliche Beziehungen zu Malern hatte und ein Freund und Förderer bodenständigen bayerischen Liedgutes war. Bei den Vorbereitungen zur 1200-Jahr-Feier seiner Heimatgemeinde (1974) hatte er sich „verschwendet“, wie er fast visionär einst in seinem Gedicht ..Der Brunnen“ geschrieben hatte..
Dem Kultur- und Verschönerungsverein ist auch die Pflege des Klostergartens ein Anliegen. Nach dem Kauf der Klosterschule vor einer Bebauung vom damaligen Bürgermeister und dem Gemeinderat bewahrt, sollte hier eine kleine grüne Oase inmitten des Ortes für seine Bewohner, vor allem auch für ältere Leute, erhalten bleiben. Am Tag der deutschen Einheit, am 3. Oktober 1990, pflanzte der Kulturverein in diesem Garten eine Linde zur Erinnerung an diese glückliche Stunde in der Geschichte unseres Volkes. Sie wurde zwar einige Zeit später von uneinsichtigen und blindwütigen Fanatikern, denen dieses lebendige Mahn- und Erinnerungsmal offenbar ein Dorn im Auge war, zerstört. Doch ein neuer Baum wurde geplanzt, der inzwischen blüht und gedeiht. – Auf der Wiesenfläche wurde vom Gartenbauverein eine große Menge Blumenzwiebeln gesteckt, die nun im Frühling den Garten in eine Krokuswiese verwandeln. Und am Rand wurde ein „Marterlstein“ aufgerichtet, mit dem Bild der Muttergottes mit Kind. – Leider wird in letzter Zeit der Klostergarten von manchen teilweise als zusätzlicher Rummelplatz auf gefasst. Die Ergebnisse sind für die Gartenanlage nicht gerade eine Zier.
Neben den Räumen im Erdgeschoß wurden bei verschiedenen Veranstaltungen auch Räume im 2. Stock (Dachgeschoß) genutzt. Vor allem aber dienen diese Räume seit nunmehr 20 Jahren als Unterkunft für das Glonner Heimatmuseum.Vor allem Hans Kotzinger war es, der keine Mühe scheute und keine Gelegenheit ausließ, für die Idee eines der Glonner Ortsgeschichte gewidmeten Museums zu werben. Bald fanden sich Spender, die Zeugnisse des Glonner Handwerks, Erinnerungsgaben aus dem Leben bedeutender Persönlichkeiten, vergessene Kulturgüter u.a. der neuen Einrichtung zur Verfügung stellten. Heute stellt das Museum einen Querschnitt durch Glonner Kulturgeschichte dar, der dem Besucher vieles in Erinnerung bringen oder neu vermitteln kann. Manches wäre ergänzungsbedürftig oder ausbaufähig.
Die wichtigsten Bereiche des Museums:
Fundstücke aus Frühgeschichte und Mittelalter Nachbildungen von Originalen aus dem Nationalmuseum
Alte Dokumente
Dokumente religiöser Kultur
Alte Möbel
Haushaltsgeräte
Arbeitsgeräte aus Landwirtschaft und Handwerk
Zeugnisse aus Schloss Zinneberg Jugendstil-Kachelofen, Leuchter, u.a.
aus der Schulgeschichte
Glonner Persönlichkeiten: Lena Christ, Prof.Max Lebsche, Wolfgang Koller. Prof. Bialas…
Alte Fotoaufnahmen, Gemälde

Blick in einen der Museumsräume
Unter den Sammlungsgegenständen sind besonders auch die vielen Arbeitssgeräte aus dem handwerklichen und bäuerlichen Leben – vom Flachsbrechen bis zum Getreidereinigen – zu erwähnen. Vom einstigen Seilermeister Hans Eichmeier wurde eine komplette Seilerwerkstatt gestiftet. Und natürlich ist auch das Mühlenhandwerk vertreten, das früher in Glonn eine wichtige Rolle gespielt hat. Eine richtige Mühle zu erleben, wäre freilich in einer der alten Mühlen, in denen die Einrichtung noch erhalten ist, eher möglich. Von Interesse sind sicher auch einige Zeugnisse der vorgeschichtlichen Besiedlung Glonns, die u.a. in den ehemaligen Tuffsteinbrüchen(Steinbruchweg) gefunden wurden. Die Originale freilich sind im Bayerischen Nationalmuseum zu finden.

10 Jahre Glonner Heimatmuseum 1982-1992
In einem ehemaligen Schulhaus sind natürlich auch Unterrichtsgegenstände aus der Schulgeschichte zu sehen. Ihre Auswahl ist freilich gering. Es liegt aber nicht daran, dass sie nicht mehr vorhanden wären, wie eine Ausstellung anlässlich eines Schuljubiläums der jetzigen Glonner Schule (1997) gezeigt hat. Sie in einem eigenen Raum unterzubringen und zu dokumentieren, wäre sicher auch eine sinnvolle Einrichtung in einem historischen Schulhaus.
Dass das Heimatmuseum nicht nur ausgestaltet sondern auch mit Leben erfüllt wurde, ist nicht zuletzt das Verdienst von Hans Kotzinger. Zusammen mit den Vorstandsmitgliedern des Kulturvereins war er bemüht, in vielen Führungen Idee und Gehalt des Museums den Besuchern zu vermitteln. Viele Schulklassen, auch von auswärts, haben inzwischen das Glonner Heimatmuseum besucht, aber auch Gruppen von Lehrern, u.a. vom Gymnasium Garching oder aus Vaterstetten. Und vor wenigen Monaten kamen sogar zwei Schülerinnen aus Neu-Ulm. um für eine Facharbeit über Lena-Christ im Museum – und auch im Lena-Christ-Stüberl – weiteres Anschauungs- und Informationsmaterial zu erkunden. So kann das Museum auch weiterhin den Unterricht gerade im heimatkundlichen Bereich ergänzen und befruchten – eine Verbindung zur Schule, die gerade in diesem Haus sinnvoll erscheint.

Besuch im Museum: Heimatgeschichte hautnah .
Schulkinder beleben wieder das Haus
Seit zwei Jahren hört man des öfteren auch wieder das Lachen von Kindern in dem alten Haus; lauscht man vor der Tür des ersten Raumes im Erdgeschoß, hört man die Stimme einer engagierten und ihren Schülern mütterlich zugetanen Lehrerin. Eine Klasse der Grundschule wurde in die ehemalige Klosterschule „ausgelagert“. – Wie kam es dazu?
Seit einigen Jahren war an der Volksschule Glonn ein Anwachsen der Schülerzahl und damit verbunden auch eine Vermehrung der Klassen festzustellen. Waren es 1996 noch 18 Klassen, so stieg ihre Zahl 1998 auf 20. Für das Schuljahr 2000/01 mussten 21 Klassen gebildet werden. Dafür reichte der Platz in dem jetzigen Schulgebäude nicht mehr, war doch schon seit ein paar Jahren eine Klasse in einem Behelfsraum untergebracht. Die Schulleitung stellte daher den Antrag, eine Klasse in einem Raum der Klosterschule unterzubringen. Die Gemeinde war zwar der Meinung, das Problem könnte durch Auslagerung einer Klasse in ein Schulhaus einer benachbarten Gemeinde (z.B. Moosach) gelöst werden. Da aber in keiner der Nachbarschulen ein Raum frei war, eine Auslagerung außerdem erhebliche organisatorische Nachteile (Schulbus, Stundenplangestaltung, mangelnde Integration der Klasse in das Schulleben) gebracht hätte, ließ sich die Gemeinde schließlich davon überzeugen, dass eine ortsinterne Lösung (Klosterschule) die einzig sinnvolle wäre. Seither lernen die Kinder dieser Klasse in der alten Schule, sie fühlen sich in ihrem Klassenzimmer wohl, auch wenn einige Eltern anfangs Bedenken äußerten, und sie sind nicht vom Leben ihrer Schule abgeschnitten.
Ob in Zukunft noch weitere Klassen in die Klosterschule verlegt werden müssen, hängt einerseits von der weiteren Entwicklung der Schülerzahlen ab, andererseits aber auch davon, ob in der Gemeinde die Notwendigkeit einer Schulhauserweiterung gesehen, bzw. mit welcher Priorität diese einer Verwirklichung entgegengebracht wird.
Der nun 100 Jahre alten Klosterschule, die auch heute noch in charakteristisches Bauwerk in der Glonner Hauslandschaft darstellt, ist zu wünschen, dass sie auch weiterhin – ob mit oder ohne Schulklassen – mit einem regen kulturellen und gesellschaftlichen Leben erfüllt bleibt – zum Wohl der Gemeinde und ihrer Bürger.

Klasse 1a im Schuljahr 2001/02 – wieder in der Klosterschule .
Auf Seite 92 und 93 der Broschüre sind die Lehrerinnen der Mädchenschule bis 1969 verzeichnet. Aus Datenschutzgründen verzichtet das Archiv Markt Glonn vorerst auf Wiedergabe der Seiten.
Oberinnen des Glonner Hauses Maria
Oberin M. Electa Schilling
Die Entwicklung der Mädchenschule in den ersten Jahrzehnten ist eng mit der ersten Leiterin des Hauses „Maria Stern verbunden. M. Electa Schilling stammte aus einer Lehrersfamilie und wurde am 10. Oktober 1863 in Echlishausen, Bezirksamt Günzburg, geboren. 1882 absolvierte sie das Lehrerinnenseminar in Dillingen, 1886 legte sie die Anstellungsprüfung für das Lehramt ab. Sie unterrichtete zunächst im schwäbischen Raum, u.a. in Wertingen (bei Dillingen), 1902 kam sie als Oberin des kleinen Konvents nach Glonn und übernahm die Leitung der Schule. Hier unterrichtete sie fast die ganze Zeit ihres Wirkens die Oberstufe (5. – 7. Jahrgang) mit Milde und Strenge, wie es die Situation erforderte. Ein Anliegen war ihr, dass alle Mädchen soweit als möglich gleich behandelt wurden. Ein Beispiel ist in der Erinnerung ehemaliger Schülerinnen das Pausebrot. Es war üblich, dass die Kinder von daheim unbelegte Brote und vielleicht einen Apfel mitbekamen. Wenn dann ein Mädchen – weil es sich die Eltern leisten konnten – in der Pause ein Wurstbrot hervorholte, gab es heftige Zurechtweisungen – die meisten Eltern konnten sich damals die tägliche Wurst auf’s Brot nicht leisten.
Persönlich sehr bescheiden, verstand sie es, die Schule mit Willensstärke und Tatkraft aufzubauen. Dass das Haus für die Klosterfrauen ebenso wie für die Schülerinnen wohnlich und freundlich wirkte, dass sich der Schulhof mit der Zeit zu einem fest parkähnlichen Garten entwickelte, war besonders ihrer Initiative zu danken. In ihre Erziehungsarbeit brachte sie Klug ß* und Lebenserfahrung ein. Schulrat Stoll nannte sie ßine „mit Klosterfrauenfleiß arbeitende Lehrerin . ,e in ihrem mütterlichen Verhältnis zu ihren Schülerinnen ein Vorbild ihrer Schule war.
Am 11. Mai 1932, kurz nach ihrem Eintritt in den Ruhestand (6. April), konnte sie ihr 50-jahrige Lehrerjubiläum feiern; gleichzeitig war sie 30 Jahre in Glonn. Nach einem feierlichen Dankamt in der Kirche trafen sich Ehrengäste, Lehrer und Schüler in der rni Girlanden und goldenen Bändern festlich geschmückten Schule. Zwischen den Ansprachen (Schulrat, Bürgermeister, Dekan Schrall, Hauptlehrer Höllweger von der Knabenschule, u.a.) brachten die Mädchen der verschiedenen Altersstufen heitere und auch besinnliche Gedichte, Lieder, Spiele, z.B. ein Spiel mit dem „Nullerl“, dem „Fünferl“ und dem „Dreierl“, eine festige Anspielung auf das doppelte Jubiläum (50/30 Jahre). Die Gemeinde aber schenkte der Jubilarin als Zeichen ihrer Dankbarkeit und Wertschätzung einen bequemen Lehnstuhl, verbunden mit dem Wunsch, sie möge ihn noch in vielen Jahren des wohlverdienten Ruhestandes nützen.

Gedicht zum Jubiläum
„Stark und mutig trotz des Hohngelächters“ – wie es in einer der Strophen heißt – wollte sie die Mädchen erziehen; bei nicht wenigen Glonner Frauen sollte sich dies in den darauffolgenden Jahren zeigen.
In den weiteren Jahren bildeten die stille Klosterkapelle, deren Schmuck ihr immer ein Anliegen war und der Klostergarten mit seinen ländlich geprägten Anlagen ihre liebsten Aufenthaltsplätze.
Bescheiden und freundlich und anteilnehmend, wo sie von Freud und Leid einer Familie hörte, wanderte sie auf kleinen Spaziergängen durch den Ort und die umliegenden Fluren der Gemeinde, die ihr zur Heimat geworden war. 1936, am 22. Juli, starb sie, betrauert von der großen Zahl der ehemaligen Schülerinnen – Die Auflösung der Mädchenschule zu erleben, blieb ihr erspart. .
Oberin M. Bernardine Ausberger
Die Lehrerin, die am längsten die Glonner Schulgeschichte mitbestimmt hat, war Schwester M Bernardinge Ausberger. 51 Jahre wirkte sie an der Mädchenschule, 59 Jahre, bis zu ihrem Tod, lebte sie in Glonn.
Geboren am 12.10.1888 in Bayersried bei Ursberg im schwäbischen Kreis Kulmbach kam sie nach ihrer Anstellungsprüfung 1910 als junge Lehrerin von Beilngries nach Glonn. Hier wußte sie in den verschiedenen Klassen, die sie unterrichtete, mit pädagogischem Geschick Wissen zu vermitteln. Mindestens genau so wichtig war ihr aber die Charakterbildung der ihr anvertrauten Schülerinnen, die sie mit mütterlichem Verständnis und Einfühlungsvermögen förderte. Als Oberin stand sie 31 Jahre dem Haus „Maria Stern“ in Glonn vor. Viele Jahre – von 1933 – 1961 – leitete sie mit Umsicht die Mädchenschule und war immer um eine gute Zusammenarbeit mit der benachbarten Knabenschule bemüht.
Als sie 1961 in den Ruhestand trat, hatten einige tausend Mädchen bei ihr die Schulbank gedrückt. M. Bernardine Ausberger kannte 3 Generationen Glonner Familien; „sie war eine lebendige Chronik“,
wie die Lehrerin Maria Gröbmayr, selbst einst ihre Schülenn, in einer Ansprache ausführte Als Oberin war sie verehrt in der Bevölkerung und respektiert von ihren Schülerinnen.
1968 feierte M. Bernardine Ausberger ihren 80. Geburtstag. Zunächst überbrachten die Schulkinder ihre Glück- und Segenswünsche. Am darauffolgenden Sonntag lud dann die Gemeinde zu einer offiziellen Feier ins Gasthaus „Glonntal „.In seiner Laudatio betonte Bürgermeister Anton Decker: „Persönlichkeiten, die den Herzschlag eines ganzen Gemeinwesens beeinflußt haben und im Blickfeld der Gemeinde stehen, gehören zu einem Gutteil nicht mehr sich selbst allein.“ Mit dieser Begründung bat er sie, die Ehrenbürgerschaft anzunehmen, die ihr der Gemeinderat als Zeichen des schuldigen Dankes einstimmig verliehen hatte.
Ein Jahr später kam sie in geistiger Frische, aber geschwächt durch eine fiebrige Erkrankung, nach einem Urlaub in ihrer schwäbischen Heimat nach Glonn zurück. Nach wenigen Tagen verstarb sie, betrauert von der ganzen Gemeinde. .
Chronologie der Klosterschule (Haus „Maria Stern“)
1902
Eröffnung der Mädchenschule (6.11.) unter Leitung klösterlicher Lehrkräfte
1908
Die Schule wird dreiteilig
1928
Die Schule wird wieder zweiteilig
1932
Oberin Electa Schilling tritt nach 50 Lehrerjahren in den Ruhestand
1936
Knaben- und Mädchenschule werden unter einer Schulleitung zusammengefasst
1937
Auflösung der klösterlich geführten Mädchenschule Das Schulhaus geht in den Besitz des Domkapitels über
1945
Wiedererrichtung der Mädchenschule
1947
Die Schule wird vierteilig
1957
Bau der neuen Knabenschule
1969
Zusammenschluss von Knaben- und Mädchenschule
1971
Erweiterungsbau I, mit Turn- und Schwimmhalle
1972
Abschied von den klösterlichen Lehrkräften
1973
Erwerb der Klosterschule durch die Gemeinde
1978
Erweiterungsbau II bezogen Beendigung des Unterrichts in der Klosterschule
2000
Wiederaufnahme des Unterrichts in der Klosterschule (Raumnot in der Volksschule)
Erinnerungen an meine Kindergarten- und Schulzeit in Glonn
von Rosa Koop
Geboren wurde ich am 1.9.1927 in Glonn. Ab 1930 war ich im Kindergarten bei Schwester Gunda. Gut in der Erinnerung sind mir da die Theateraufführungen zu Weihnachten und die lustigen Faschingstage. Spielhalle und Sandkasten standen uns schon damals bei schönem Wetter zur Verfügung. Ein Erlebnis waren die Kindergartenspaziergänge im damaligen Klostergarten und das Gebet an der Hl.- Josef-Säule zur Mittagszeit vor dem Nachhausegehen.
Meine ersten Schuljahre von 1934 – 37 waren geprägt von Schwester Amata, eine besonders für uns Mädchen einfühlsame Lehrerin.
Ab 1937 wurden die Klosterschwestern aus dem Schuldienst abgesetzt, auf Anordnung der damaligen Regierung. Als Ersatz kamen nun weltliche Lehrerinnen in die Glonner Volksschule.
Im 4. Schuljahr unterrichtete uns Frau Biederer, eine große stattliche und fast gefürchtete Lehrkraft. Sie war auch gefürchtet wegen ihres Zeigestabs. Auch ich habe dies zweimal zu spüren bekommen, sicher nicht unberechtigt (schwätzen).
Die vierte Klasse war auch geprägt von der damaligen Läuseplage. Wir lernten ihnen während des Unterrichts das Laufen auf dem Lineal, sehr zum Unmut unserer Lehrkräfte, besonders des Herrn Pfarrer Boxhorn während der Religionsstunde.
Die fünfte Klasse habe ich ohne besondere Aufregungen abgeschlossen, mit einigen Aushilfslehrkräften, Frau Rosa Hintermair, die ich heute noch sehr schätze, und Fräulein Kühne.
Jetzt begann die lebhafte Zeit im 6. Schuljahr. Mädchen und Knaben wurden in einem Schulzimmer unterrichtet. Lehrer war Herr Gehwald, genannt der Barte“, wegen seines Spitzbarts. Die Unter- richsstunden verliefen selten langweilig. Mit Prügelstrafen (Übergelegte) war er bei den Knaben nicht kleinlich. Dabei ergaben sich sportliche Wettrennen im Klassenzimmer. Voraus der Schüler, hinterher der Lehrer mit dem Stock unter lebhafter Anfeuerung durch die Klassenkameraden.
Herr Gehwald war wirklich kein Freund der Kirche. Er verbot uns sogar das tägl. Morgengebet vor dem Unterrichtsbeginn, und drohte bei Nichtbefolgen seiner Anordnung mit dem Jugendgericht.
Eine ganz andere Atmosphäre des Unterrichts herrschte im siebten Schuljahr bei Frau Faßrainer, einer Lehrerin von Format. Großen Wert legte sie auf das kaufmännische Rechnen, was für manchen Schüler für den späteren Berufsweg sehr von Nutzen war.
Nach Abschluss der siebten Klasse haben dann mit mir fünf Schülerinnen die Volksschule in Glonn verlassen und wechselten nach München in eine Schule. Erinnerungen an Kindergarten und Volksschule wecken auch manche schöne Episoden in der Kinder- und Jugendzeit, die ich nicht vermissen möchte. Anmerken möchte ich, dass damals 4 Klassen in einem Raum unterrichtet wurden. Mich hat aber der Unterrichtsstoff der anderen Klassen nicht in meiner Lernfähigkeit gestört. Besonders bewundern und fast beneiden musste ich manche Schülerinnen von andern Klassen, die den Lernstoff so spielerisch geschafft haben.
Ich ging gern in Glonn zur Schule, aber die Schulaufgaben. damals sagte man Proben, schafften mit immer unruhige Stunden.
Erinnerungen aus meiner Schulzeit
von Michael Singer (Bürgermeister 1972-1978)
Im April 1927 begann für mich die Schulzeit. Schuljahresbeginn war in jener Zeit immer nach den Osterferien. Es gab damals noch keine Schultüte, auch ist die Mutter am ersten Schultag nicht mitgegangen. Wir wurden einfach mit den anderen Dorfkindern auf den Schulweg geschickt. Wir hatten damals Ganztagsschule, also auch am Nachmittag Unterricht. Dafür war der Donnerstag schulfrei. Wir Kinder von auswärts hatten daher keine Möglichkeit, mittags daheim zu essen. Wir bekamen deshalb jeden tag zwei Stück trockenes Brot mit, eines für die Vormittags- und eines für die Mittagspause.
Vor der Schule mussten wir täglich in die HL. Messe gehen. Dabei waren jeden Tag mehr Kinder in der Kirche wie heutzutage bei der Schumesse. Einen besonderen reiz hatten für uns im Advent die Engelämter. Diese haben schon um 6 uhr früh begonnen. Nach dem Engelamt konnten wir uns bis zum Schulbeginn eine ganze Stunde lang im Schulraum aufhaleten. Da war es noch stockdunkel. Wir haben dann natürlich noch fest eingeheizt, damit es schnell warm wurde, und dabei auch noch allerhand Unfug getrieben.
In den Sommermonaten gingen wir immer barfuß zur Schule, auch sonntags zur Kirche. Dabei konnte es passieren, daß wir im Herbst bei schönem Wetter in Westerndorf weggingen. Als wir dann zur Zinneberger Kapelle kamen, war alles weiß vor lauter Reif. Umkehren konnten wir nicht mehr, weil wir ja rechtzeitig zur Schule kommen mußten. Es sit auch vorgekommen, daß wir in der Früh bei schönstem Wetter weggingen, beim Heimweg hat es dann geschneit, und wir waren barfuß!
Auf dem Schulweg gab es aber auch immer etwas Neues zu sehen und zu entdecken, wie z.B. der große Holzabschlag in den Jahren 1928 – 1931, wo das ganze Waldgebiet um Zinneberg – Sonnenhausen bis nach Weiterskirchen abgeholzt wurde, dann auch der Bau der Zinneberger Mauer und vieles andere.
Wie bereits schon gesagt, hatten wir auch nachmittags immer Schule. Die Glonner Kinder mussten mittags heimgehen zum Essen, wir Auswärtigen trieben uns dann meist eine Stunde lang in Glonn herum. Dabei wurde auch allerhand angestellt. Gern gespielt wurde dabei „Räuber und Schandi“. Ausgangspunkt war meist der damalige Turnplatz, das Gelände der heutigen Schule. Der Turnplatz war damals noch von hohen Fichtenbäumen eingesäumt. Bei dem Räuber- und Schandispiel kamen wir oft bis zum Winhart- Weiher, auf den Grottenberg oder zur Wolfgangsruh. Dass wir dabei ganz Glonn unsicher machten ist selbstverständlich. Wenn wir es gar zu laut getrieben haben, haben uns die Glonner Bürger oft auch ausgeschimpft. Wir haben uns dafür wieder auf andere Weise gerächt. Da fällt mir gerade so ein Streich ein. Beim Schreibwaren Hintermaier waren im Schaufenster auch „Mensch ärgere dich nicht“-Spiele ausgestellt. Einer von uns ging in den Laden und fragte, was so ein Spiel kostet; da er aber kein Geld bei sich hatte, ging er wieder. Nach ein paar Minuten kam der Nächste von uns und fragte dasselbe. Das ging einige Zeit fort, bis die Leute merkten, dass wir sie nur tratzen wollten. Sie haben es dann dem Lehrer erzählt und zum Schluss waren wir wieder die Ausgeschmierten.
Die Schulstrafen waren ja damals hart. Neben schriftlichen Strafarbeiten waren Tatzen, Übergelegte und Nachsitzen ein alltägliches Ereignis. Das Schlimmste war natürlich immer das Nachsitzen. Die Eltern haben schon immer auf uns gewartet, dass wir von der Schule heimkommen, um in Haus und Feld nützlich zu sein. Wenn wir nicht rechtzeitig da waren, mussten wir natürlich den Grund sagen.
Gefürchtet waren alljährlich die Prüfungen vor dem Schuljahrsabschluss. Ein Jahreszeugnis gab es allerdings nicht. Die Noten wurden nur für den Schülerbogen gemacht. Das Zeugnis erhielten wir erst bei der Schulentlassung, nach der 7. Klasse. Bei den vorerwähnten Prüfungsarbeiten hat unser damaliger Hauptlehrer Höllweger oft zugeschlagen wie ein Wütender. Da gab es oft Splitter vom Tatzenstock in den Köpfen, verschwollene Hände und verschwollenes Sitzfleisch. Bei den Übergelegten hat uns der Lehrer meist über das Knie gelegt.
Nach den sieben Jahren Volksschule mussten wir noch 3 Jahre die Fortbildungsschule besuchen, was in etwa der heutigen Berufsschule entspricht. Die Fortbildungsschule war nur einmal in der Woche. Die Feiertagsschule und die Christenlehre habe ich nicht mehr erlebt. Ich weiß davon nur von Erzählungen meiner älteren Geschwister: Nachdem die Kinder nach der Entlassung aus der Volksschule bereits schwer zur Arbeit herangezogen wurden, hat man die Fortbildungsschule auf den Sonntag gelegt. Die Schüler und Schülerinnen waren durch die schwere Arbeit die ganze Woche über natürlich müde und sind oft in der Schule eingeschlafen. Da gab es natürlich wieder entsprechende Strafen.

„Das Mädchenschulhaus lebt im Herzen weiter“ – Leserzuschrift in der Ebersberger Zeitung von 1979. (Bezieht sich auf dieses Klassenfoto)
Literaturverzeichnis
Karl Dickopf
Der Landrichter, Bezirksamtmänner, Landräte seit 1800 in: Der Landkreis Ebersberg – Geschichte und Gegenwart, Bd. 1 – 1986 – herausgegeben von der Kreissparkasse Ebersberg
Johann B. Dunkes
„Lagerbuch der Gemeinde Glonn“ 1867 – im Besitz der Marktgemeinde Glonn
Benno Hubensteiner
Bayerische Geschichte 1980 – Süddeutscher Verlag, München
Wolfgang Koller
1200 Jahre Glonn – Geschichte und Geschichten 1974 – Festschrift zum Jubiläum
Willibald Kneißl
500 Jahre Schule Markt Schwaben 1990 herausgegeben von der Volksschule Markt Schwaben
Johann B. Niedermair
Glonn und Umgebung in Vergangenheit und Gegenwart 1939 – 2. Aufl. Salesianer-Verlag, München
Johann Obermair
Beiträge zur Schulgeschichte Glonns bis 1814, in: „Glonner Geschichte und Geschichten“ 1999 – herausgegeben von CSU Glonn
Laszlo Schwarzenberger
Festschrift zur Schuleinweihung 1979
Maria Sedlmair
Glonn – Meine Heimat 1991 – Glonns Häuser in Vergangenheit und Gegenwart
Kilian Witzei
Dichter und Schriftsteller in: Der Landkreis Ebersberg – Raum und Geschichte 1982 – herausgegeben von der Kreissparkasse Ebersberg
Rudolf Gerer
Volkschule Glonn – Vergangenheit und Gegenwart 1997 – herausgegeben von der Volksschule Glonn
Quellen
Bayer. Staatsarchiv
Bauakt der Mädchenschule Glonn. 1 – 104
Kathol. Pfarramt Glonn Pfarrarchiv
Marktgemeinde Glonn
Gemeinderatsprotokolle und Schriftverkehr zur Mädchenschule. 1898/1902/1937/1950/1968/1973
Schulgeschichtliche Aufzeichnungen:
Chronik der Knabenschule, 1914 – 71
Chronik der Mädchenschule, 1902 – 72
mit Briefwechsel m. Ordinariat. 1937/1950/1965
Chronik der Volksschule Glonn, 1971-2000
Die Familie Wenig
von Hans Obermair
In der Glonner Chronik von Pfarrer Niedermair lesen wir, dass der Privatier Koloman Wenig testamentarisch verfügt hat, dass ein Nachlass von 6 032.63 Mark zu Gunsten einer von Klosterfrauen geleiteten Mädchenschule in Glonn verwendet werden sollte. Ein Wertvergleich: Das Klostergrundstück wurde 1899 mit 10.- Mark je Quadratmeter bewertet.
Woher kommt nun dieser Koloman Wenig bzw. seine Familie. Schon im Kuchelbuch von 1517 gibt es einen Wenig in Mattenhofen. Damals war der Haus- und Familienname identisch. Die Familie Wenig gab es in Mattenhofen bis 1875. Den Hausnamen zum Wenig gibt es heute noch.
Seit 1742 gibt es die Wenigs auch in Glonn. Damals heiratet der aus Mattenhofen gebürtige Josef Wenig die Müllerstochter (Waslmühle) Ursula Rieder. Sie übernehmen beim Huber (Huberwirt), dem damals einzigen Anwesen in Glonn, das nur Landwirtschaft hatte. Ihr Sohn Josef, geb. 1754, übernahm 1784 das Anwesen. 1810 war er Glonns Gemeindevorsteher (Bürgermeister). Sohn Josef, geb. 1792. übernimmt 1830 das Anwesen. Dessen Tochter heiratet 1859 Michael Schmied. 1876 wird wegen Platzmangel ein neues Anwesen (neben Bäcker Winhart) erbaut. Die ..Althofstelle“ kauft der Wirtssohn Johann Wagner und eröffnet eine Gastwirtschaft mit Metzgerei.
Nikolaus Wenig aus Mattenhofen heiratet 1859 Elisabeth Kuchler vom ..Both“ in Glonn (heute Schwaiger). Neben dem Botengeschäft betreibt er eine kleine Landwirtschaft. 1860 stellt er den Antrag zur Eröffnung eines Wirtshauses; dieser wird abgelehnt. Erst 1867. als er einen Neubau verspricht, bekommt er die Genehmigung. Der Neubau ist das heutige Gasthaus Glonntal (Hochwimmer). Er übernimmt sich finanziell und verkauft 1873 das noch nicht fertige Wirtshaus an Josef Härtl, der es fertigstellt und eröffnet. Durch die Eröffnung der Bahnlinien (Westerham / Grafing) geht auch das Botengeschäft schlechter. 1882 musste das Anwesen dann versteigert werden.
Der Bruder von Nikolaus, Koloman Wenig, übernimmt 1851 das elterliche Anwesen in Mattenhofen.
Im gleichen Jahr heiratet er Maria Zistl, Wagnerstochter aus Adling. Zwischen 1852 und 1860 werden den Eheleuten 5 Kinder geboren. Vier verstarben im Säuglingsalter. Das Jüngste, die 1860 geborene Cäcilia, verstirbt im 10.Lebensjahr. Wohl wegen des fehlenden Nachfolgers verkauft Wenig 1875 sein Mattenhofener Anwesen. Im gleichen Jahr erwirbt er vom Apotheker Birzer das Glonner Melberanwesen (heute Lebsche). Mit dem Rest der Landwirtschaft – der Vorgänger hat die Baugrundstücke in der heutigen Niedermairstrasse veräußert – lebt das Ehepaar als Privatiers in Glonn. 1887 verstirbt Maria und Koloman lebt nun allein im Anwesen. Im Herbst 1895 kauft Sanitätsrat Lebsche und eröffnet dort seine Praxis. Koloman Wenig ist inzwischen 77 Jahre alt. Die Entscheidung, sein Anwesen einem Arzt zu verkaufen, hängt wohl auch mit seinem durch hohes Alter bedingtem Gesundheitszustand zusammen. Koloman verstirbt am 5.September 1896 an Altersschwäche. Eine Gedenktafel an der Glonner Kirche erinnert an den großen Wohltäter der Schulgemeinde.

Gedenkstein des Koloman Wenig an der Pfarrkirche Glonn. Das Todesjahr wurde vom Steinmetz offenbar versehentlich falsch eingesetzt. Wenig starb am 5.9.1896 .
Das Grundstück zur Klosterschule
von Hans Obermair
Stand man 1812 vor dem Südeingang der Glonner Kirche, so konnte man die Wiesmühle sehen. Außer dem kleinen Bachbinderhaus (Haas) war das Gelände zwischen dem Kupferbach und dem Balkhamer Berg unbebaut. An der heutigen Münchner Straße gab es lediglich den Metzger (heute Bredenhöller), den Bäck (heute Winhart), den Wirt (Gasthaus zur Post) und das Gerichtsdienerhaus (Gürteler).
Das Gerichtsdieneranwesen hatte, wie eigentlich alle Glonner Anwesen dieser Zeit, eine eigene Landwirtschaft. Das Ökonomiegebäude stand an der Stelle des heutigen Meßneranwesens (Versicherungsbüro Raig). Der Maler Magnus Meßner hatte es zu einem Wohnhaus mit Werkstatt um- bzw. neu gebaut.
Das Grundstück, auf dem sich heute die Kreissparkasse, das Lehrerwohnhaus, das Feuerwehrhaus und die Klosterschule (incl. Klostergarten) befinden. war Teil der Landwirtschaft des Gerichtsdieneranwesens. 1838 wird dieses Grundstück als „Mitterederacker“ bezeichnet. Dieser Name kam daher, weil sich 1821 der Gerichtsdiener Mittereder schrieb. In diesem Jahr heiratet Andreas Bauer die Mitteredertochter Theres.
Der Mitterederacker hatte eine Fläche von 256 Dezimalen, das sind 0.8722 ha. Davon wird vordere Teil (heute an der Prof.- Lebsche-Straße) 0,75 Tagwerk (75 Dezimale oder 2555 qm) etwa 1837 zum Schulhausbau „abgetreten“, wie es heißt. Das abgetretene Grundstück wurde mit 175 Gulden taxiert. Es stand im Obereigentum der Glonner Kirche. Ein Kaufpreis ist nicht geflossen. Statt dessen musste die Gemeinde jährlich 7 Gulden Bodenzins, das sind 4%, an die Kirche oder an den Staat bezahlen. Wahrscheinlich ging das Eigentum 1848 an die Gemeinde über. 1838 wird dann auf dem erworbenen Grundstück das neue Schulhaus für 8000 Gulden von Baumeister Sarreiter aus Ebersberg gebaut. Ab Bezug der Klosterschule (Mädchenschule) im Jahr 1902 war dies dann die Knabenschule.
Das Anwesen selbst ging 1841 an den neuen Gerichtsdiener Anton Diemer aus Grafing. Er hat es wohl verkauft. Wann der Rest des „Mitterederackers“ aus dem Gerichtsdieneranwesen heraus in andere Hände kam, ist nicht genau bekannt. Es könnte 1840/41 gewesen sein, denn 1840 verstarb der alte Gerichtsdiener Franz Mittereder mit 77 Jahren. Sein Wohnrecht düfte bis zu seinem Tod eine Verwertung blockiert haben. Ein Eigentumsübergang ist nicht nachzuweisen, wohl auch deswegen, weil der alte Obereigentümer, die Kirche, nun das Grundstück durch die PfarrhofÖkonomie selbst bewirtschaftete. Jedenfalls ist 1899 das Grundstück Pfarrvermögen. Die Grundstücksfläche hat sich inzwischen auf 0.5620 ha durch den Bau der heute „Klosterweg“ genannten Straße reduziert. Durch den einen pfarrinternen Tausch (Pfarrpfründe/Pfarrwiddum) mit einem dreimal so großen Grundstück in Richtung Moosach, konnte Pfarrer Späth das Baugrundstück zum Bau der Mädchenschule bereitstellen. Laut Attest des Johann Beham, Zimmermeister aus Glonn und des Balthasar Killi (sen.), Schätzmann aus Münster, wurde das Schulgrundstück mit 10.–Mark und das Moosgrundstück mit 4.– Mark je Quadratmeter veranschlagt.
In der Stiftungsurkunde legte Pfarrer Späth, er war zunächst Eigentümer der Schule, fest, dass, falls eine klösterliche Mädchenschule nicht mehr möglich sein sollte, das Eigentum an das erzbischöfliche Domkapitel zur Verwendung als Priesterhospital, bzw. Rekonvaleszentenhaus „ohne weiteres“ übergehen soll. Dies war 1937 der Fall. Und so kam es zu einem neuen Eigentümer. Unter Bürgermeister Singer und mit Unterstützung des damaligen Zweiten Bürgermeisters Gürteler und des Elternbeiratsvorsitzenden Martin Sigl, sowie von Pfarrer Josef Schneider, konnte die Gemeinde Grundstück (0.4960 ha) samt Gebäude zu einem Vorzugspreis von 500.000 DM zurückkaufen.

Lageplan des „Mitterederackers“ (1812)
Nachwort
Als ich vor mehr als 40 Jahren als junger Lehrer nach Glonn kam, gab es in dem Marktort zwei Schulen, die Knaben- und die Mädchenschule. Äußerlich zwar voneinander getrennt – durch je eigene Schulleitungen, durch den Zaun, der den Klostergarten einfasste, und durch die Straße – herrschte zwischen den beiden Schulen in dieser Zeit weit mehr ein Miteinander als ein Nebeneinander. Vieles, was über den reinen Unterricht hinausging, wurde gemeinsam gesehen, überlegt und durchgeführt. Und wir von der Knabenschule, Lehrer wie Eltern, sahen immer auch mit großem Respekt auf die pädagogische Arbeit in der Nachbarschule.
Historisches Interesse und die Verbundenheit mit der Schule in Glonn, mit dem Schulort und den Glonner Landsleuten haben mich bewogen, zum 100-jährigen Bestehen der „Klosterschule“ deren Geschichte, ihrer Entstehung und Entwicklung nachzugehen. Um 100 Jahre Schulgeschichte darzustellen, ist man auf vielerlei Hilfe angewiesen. Da waren zunächst schriftliche Quellen zu erschließen. Im Archiv des Landratsamtes Ebersberg fand ich durch Frau Ingrid Golanzki und ihre Mitarbeiterin Frau Riederer Unterstützung, um die im Bayer. Staatsarchiv lagernden Bauunterlagen einzusehen. Max Schmid, Geschäftsstellenleiter im Rathaus in Glonn, gewährte mir Einblick in Gemeinderatsprotokolle und das relevante Schriftwesen, durch Frau Maria Gruber (einstmals Schülerin im Haus St. Elisabeth bei den Sternfrauen in Augsburg) erhielt ich Unterlagen über den Orden und die Gründung des Mutterhauses in der Sterngasse in der Fuggerstadt. Und Dekan Josef Schneider öffnete mir bereitwillig und mit freundschaftlicher Hilfestellung das Pfarrarchiv.
Natürlich gibt es aus der Erbauungszeit keine Augenzeugen mehr. Um so wertvoller sind daher Erinnerungen ehemaliger Schülerinnen aus den ersten Jahrzehnten der Schule, in denen auch noch manches. was aus der Bauzeit überliefert wurde, nachklingt. Neben den schriftlich niedergelegten Erinnerungen waren mir die mündlichen Erzählungen zweier alteingesessener Glonnerinnen eine wertvolle Hilfe: Nanni Messerer aus Kreuz und Rosa Steinbeißer aus Glonn.
Wertvolle Hinweise aus der für die Mädchenschule kritischen und leidvollen Zeit des Nationalsozialismus erhielt ich von meinen ehemaligen Kolleginnen Katharina Faßrainer und Rosa Hintermair. Manche Anregungen bekam ich auch in Gesprächen mit Hans Obermair dem profunden Glonner Heimatkundler. Und auch von den ehemaligen Schulräten, Hans Obermayr und Berthold Schäfer, erhielt ich Auskünfte in allgemeinen schulgeschichtlichen Belangen.
Ihnen allen, die mich beim Entstehen dieser Chronik unterstützten, gilt mein herzlicher Dank!
Gewidmet aber seien diese schulgeschichtlichen Rückblicke den klösterlichen Lehrkräften vom Haus Maria Stern“, allen übrigen Lehrkräften der Schule, die zusammen über viele Jahrzehnte an der Erziehung und Bildung der Glonner Mädchen gearbeitet haben, sowie allen ehemaligen Schülerinnen, heute Mütter und Großmütter hoffnungsvoller Buben und Mädchen!
Rudolf Gerer
Impressum
Herausgeber: Kultur- und Verschönerungsverein Glonn
Verantwortlich f.d.Inhalt : Rudolf Gerer
Fotos: Die Bilder wurden aus dem Privatbesitz von einstigen
Schülern und Schülerinnen zur Verfügung gestell
Ein Teil der Bilder stammt von L. Schwarzenberger und H.Wohner
Allgäuer-Druck, 84489 Burghausen, Mehringer Straße 12
Alle Rechte beim Verfasser
Für die finanzielle Unterstützung bei der Herausgabe dieser Chronik
bedanken wir uns bei:
Marktgemeinde Glonn
Raiffeisenbank Glonn-Aßling-Steinhöring
Fa. Hans Brunner
Fa. Ettenhuber Busreisen
Fa. Georg Empl, Coiffeur
Fa. Glonntaler Fleisch- und Wurstwaren
Fa. Autohaus Maier
Fa. Autohaus Jehl
Fa. Autohaus Steinbeißer
Fa. Obermaier Moden
Fa. Hotel Schwaiger
Fa. Bäckerei Winhart





