• Aktuell
  • Glonn
    • Soziales
      • Für Menschen mit Behinderung
      • Jugendliche
      • Familien
        • Kindertageseinrichtungen
      • Senioren
        • Caritas Marienheim Glonn
        • Pflegeberatung in Glonn
        • Seniorenwegweiser
        • Angebote des Caritas Zentrums Grafing
      • Glonner Tisch
      • Kleiderherz Glonn
    • Einrichtungen
      • Schulen
      • Kindertageseinrichtungen
      • Spielplätze in Glonn
      • Kirche
      • Gemeindebücherei
      • Volkshochschule Grafing
      • VHS Musikschule
      • Hallenbad
      • Sportanlagen
    • Verkehrsanbindung
    • Vereine und Initiativen
      • Vereine & Initiativen
      • Ökomodellregion VG-Glonn
      • Leitfaden Feste&Feiern
    • Gesundheit
      • Ärzte
      • Zahnärzte
      • KVB-Bereitschaftspraxis
    • Kultur
    • Geschichte
      • Unsere Ortschronisten
        • Chronist Hans Obermair
        • Chronist Hans Huber
        • Konstanze Kilger
          • Hochwasser in Glonn
          • 100 Jahre Stegmühle – von Konstanze Kilger
        • Johannes B. Niedermair
          • Niedermair Chronik Teil 1
          • Niedermair Chronik Teil 2
          • Niedermair Chronik Teil 3
          • Inhaltsverzeichnis Niedermair Chronik
        • Lehrer Dunkes
      • Bildarchiv Leonhard Huber
      • Geschichte Diverses
        • Bekannte Glonner
          • Bürgermeister seit 1945
          • Goldenes Buch
          • Glonner Persönlichkeiten
            • Günter Bialas
            • Lena Christ
            • Blasius Gerg
            • Wolfgang Koller
            • GEORG LANZENBERGER
            • DR. MAX LEBSCHE
            • JOHANN B. NIEDERMAIR
            • Wolfgang Wagner sen. / jun.
        • Alte Ansichten
        • Die Glonner Mühlen
        • Glonner Baudenkmäler
        • Denkmalatlas
    • Freizeit/Tourismus
      • Hotels/Gaststätten
      • Unsere Märkte
        • Weihnachtsmärkte
      • Gastgeber Ebersberg
      • Interaktive Karte EBE
      • Natur
        • Panoramabilder von Glonn und Umgebung
        • Impressionen
        • Kupferbachtal/ Reisenthal
      • Wanderungen
        • Ruhebankerl
        • Wandern mit GPSies
        • Von Aying nach Glonn
        • Von Eglharting nach Glonn
        • Von Glonn nach Unterelkofen
        • Handy-Weg 1
      • Fahrradtouren
        • Bayernnetz für Radler
        • Radeln mit GPSies
        • Radeln im Landkreis
        • Loibersdorf Tour
        • Die Kloster Altenburg Tour
        • Die Igeltour
        • ADFC Touren
      • Das Glonner Skigebiet
      • Feiern
        • Glonner Dorffest
        • Nachtflohmarkt
  • Gemeinde
    • Gemeinderat
    • Termine und Protokolle
    • Rathaus
      • Trauungen
      • Bürgerbüro Info
      • Satzungen und Gebühren
      • Bauleitplanung
        • Bauleitplanung
        • Grundsatzbeschluss Baulandmodell
      • Wertstoffhof/ Abfallbeseitigung
      • Wasser, Abwasser
      • Vorsorgen für Krisen und Katastrophen
    • Bürger- und Ratsinformationssystem
    • Gemeindeentwicklung
    • Glonn in Zahlen
    • Gewerbe
      • Gewerbeverband Glonn
      • Branchenbuch VG Glonn
      • Beratungsnetzwerk für Selbständige und die gewerbliche Wirtschaft
      • Steuerrechtliche Hinweise
    • Diverses
      • Vorsorge/ Blackout
      • Alles über Desinformation und Verschwörungstheorien auf einer Webseite
      • Verkehrs- und Straßensicherheit
        • Kommunale Verkehrsüberwachung
        • Hinweise zum Winterdienst
        • Überhängende Bäume schneiden
        • Freihalten von Sichtdreiecken
      • Hochwasser/Gewässer
        • Oberflächenabfluss und Sturzflut
        • Hochwasserschutzfibel
        • Hochwasser.Info.Bayern
        • Informationsdienst Überschwemmungsgefährdete Gebiete
        • Tipps für Gewässeranlieger
      • Hitze und Gesundheit
      • Hundetoiletten nutzen
      • Sachgemäße Entsorgung Ihrer Abwässer
      • Schulden-Insolvenz-Beratung
      • Wespen und Hornissen
    • Mietspiegel
    • Energie
  • Rathaus online
  • Veranstaltungen
  • Archiv

Markt Glonn

Springe zum Inhalt
  • Aktuell
  • Glonn
    • Soziales
      • Für Menschen mit Behinderung
      • Jugendliche
      • Familien
        • Kindertageseinrichtungen
      • Senioren
        • Caritas Marienheim Glonn
        • Pflegeberatung in Glonn
        • Seniorenwegweiser
        • Angebote des Caritas Zentrums Grafing
      • Glonner Tisch
      • Kleiderherz Glonn
    • Einrichtungen
      • Schulen
      • Kindertageseinrichtungen
      • Spielplätze in Glonn
      • Kirche
      • Gemeindebücherei
      • Volkshochschule Grafing
      • VHS Musikschule
      • Hallenbad
      • Sportanlagen
    • Verkehrsanbindung
    • Vereine und Initiativen
      • Vereine & Initiativen
      • Ökomodellregion VG-Glonn
      • Leitfaden Feste&Feiern
    • Gesundheit
      • Ärzte
      • Zahnärzte
      • KVB-Bereitschaftspraxis
    • Kultur
    • Geschichte
      • Unsere Ortschronisten
        • Chronist Hans Obermair
        • Chronist Hans Huber
        • Konstanze Kilger
          • Hochwasser in Glonn
          • 100 Jahre Stegmühle – von Konstanze Kilger
        • Johannes B. Niedermair
          • Niedermair Chronik Teil 1
          • Niedermair Chronik Teil 2
          • Niedermair Chronik Teil 3
          • Inhaltsverzeichnis Niedermair Chronik
        • Lehrer Dunkes
      • Bildarchiv Leonhard Huber
      • Geschichte Diverses
        • Bekannte Glonner
          • Bürgermeister seit 1945
          • Goldenes Buch
          • Glonner Persönlichkeiten
            • Günter Bialas
            • Lena Christ
            • Blasius Gerg
            • Wolfgang Koller
            • GEORG LANZENBERGER
            • DR. MAX LEBSCHE
            • JOHANN B. NIEDERMAIR
            • Wolfgang Wagner sen. / jun.
        • Alte Ansichten
        • Die Glonner Mühlen
        • Glonner Baudenkmäler
        • Denkmalatlas
    • Freizeit/Tourismus
      • Hotels/Gaststätten
      • Unsere Märkte
        • Weihnachtsmärkte
      • Gastgeber Ebersberg
      • Interaktive Karte EBE
      • Natur
        • Panoramabilder von Glonn und Umgebung
        • Impressionen
        • Kupferbachtal/ Reisenthal
      • Wanderungen
        • Ruhebankerl
        • Wandern mit GPSies
        • Von Aying nach Glonn
        • Von Eglharting nach Glonn
        • Von Glonn nach Unterelkofen
        • Handy-Weg 1
      • Fahrradtouren
        • Bayernnetz für Radler
        • Radeln mit GPSies
        • Radeln im Landkreis
        • Loibersdorf Tour
        • Die Kloster Altenburg Tour
        • Die Igeltour
        • ADFC Touren
      • Das Glonner Skigebiet
      • Feiern
        • Glonner Dorffest
        • Nachtflohmarkt
  • Gemeinde
    • Gemeinderat
    • Termine und Protokolle
    • Rathaus
      • Trauungen
      • Bürgerbüro Info
      • Satzungen und Gebühren
      • Bauleitplanung
        • Bauleitplanung
        • Grundsatzbeschluss Baulandmodell
      • Wertstoffhof/ Abfallbeseitigung
      • Wasser, Abwasser
      • Vorsorgen für Krisen und Katastrophen
    • Bürger- und Ratsinformationssystem
    • Gemeindeentwicklung
    • Glonn in Zahlen
    • Gewerbe
      • Gewerbeverband Glonn
      • Branchenbuch VG Glonn
      • Beratungsnetzwerk für Selbständige und die gewerbliche Wirtschaft
      • Steuerrechtliche Hinweise
    • Diverses
      • Vorsorge/ Blackout
      • Alles über Desinformation und Verschwörungstheorien auf einer Webseite
      • Verkehrs- und Straßensicherheit
        • Kommunale Verkehrsüberwachung
        • Hinweise zum Winterdienst
        • Überhängende Bäume schneiden
        • Freihalten von Sichtdreiecken
      • Hochwasser/Gewässer
        • Oberflächenabfluss und Sturzflut
        • Hochwasserschutzfibel
        • Hochwasser.Info.Bayern
        • Informationsdienst Überschwemmungsgefährdete Gebiete
        • Tipps für Gewässeranlieger
      • Hitze und Gesundheit
      • Hundetoiletten nutzen
      • Sachgemäße Entsorgung Ihrer Abwässer
      • Schulden-Insolvenz-Beratung
      • Wespen und Hornissen
    • Mietspiegel
    • Energie
  • Rathaus online
  • Veranstaltungen
  • Archiv
Markt Glonn

22 (1)

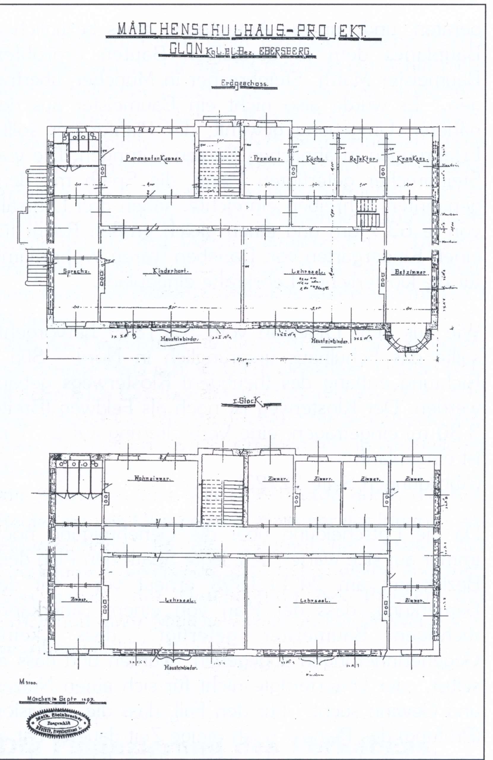
Veröffentlicht am 26. Januar 2022 bei 1662 × 2560 in 100 Jahre Klosterschule Glonn 1902-2002 Vergangenheit und Gegenwart.
← Zurück Weiter →
Download Artikel als PDF

DATENSCHUTZ   IMPRESSUM

Barrierefreiheits-Anpassungen

Unterstützt von OneTap

Wie lange möchten Sie die Barrierefreiheits-Symbolleiste ausblenden?
Symbolleiste-Ausblenddauer
Wählen Sie Ihr Barrierefreiheitsprofil
Sehbehinderten-Modus
Verbessert die visuellen Elemente der Website
Anfallssicheres Profil
Entfernt Blitze und reduziert Farben
ADHD-freundlicher Modus
Fokussiertes Browsing, ablenkungsfrei
Blinden-Modus
Reduziert Ablenkungen, verbessert den Fokus
Epilepsie-sicherer Modus
Dämpft Farben und stoppt Blinken
Inhaltsmodule
Schriftgröße

Standard

Zeilenhöhe

Standard

Farbmodule
Orientierungsmodule